[35坪 2LDK] 繋がる玄関土間でホームパーティー対応、LDKから庭までが一体空間になる家の間取り
全国の建築家から間取りが集まるmadree(マドリー)で集まった35坪、2LDKの間取りです。外とつながるLDKやアウトドアリビングが特徴の注文住宅の間取りです。
繋がる玄関土間でホームパーティー対応、LDKから庭までが一体空間になる家はこのような方におすすめです
・共働き夫婦(子どもは1-2人の予定)
・趣味:車、料理、ガーデニング
・家族や仲の良い仲間を呼んでホームパーティーをしたい。
・庭でBBQやガーデニングを楽しみたい。
繋がる玄関土間でホームパーティー対応、LDKから庭までが一体空間になる家の間取りアイデア
- 屋外で非日常感楽しむ
- 趣味に夢中になれる部屋
- 子どもが自由に遊べるスペース
- ダイニング学習スペース
- 見守るワークスペース
- 安心して遊べる庭
- プライバシー守る脱衣洗面室
- 身支度に便利な2ボウル洗面台
- テラスとしても過ごせるサンルーム
- 天気も視線も気にせず物干し
- 部屋干しスペースで家事効率UP
- 物をLDKに持ち込まない動線
- 景観を損ねない部屋干しスペース
- 一列に並んだ水廻り
- 屋内外が繋がる回遊動線
- 風が抜ける窓の配置
- 家中を心地よく風が抜ける
- 大きな吹抜で採光確保
- 吹抜で家族が繋がる
- 廊下なしコンパクトな生活動線
- 玄関近くのファミクロ
- 適所収納で使いやすく片付ける
- 壁面収納で収納量確保
- 片付けが苦手でもスッキリ魅せる
- 隠せるパントリー
- 大人数に対応できるLDK
- 庭の緑に癒されるLDK
- 緩やかに区切られたLDK
- 開口窓で開放的なリビング
- 来客対応しやすい客間配置
- 土間の自転車/バイク置き場
- 吹抜でつながる子ども部屋
- 来客が気軽に宿泊できる
全国対応になりました
建築家・デザイナー
からのコメント
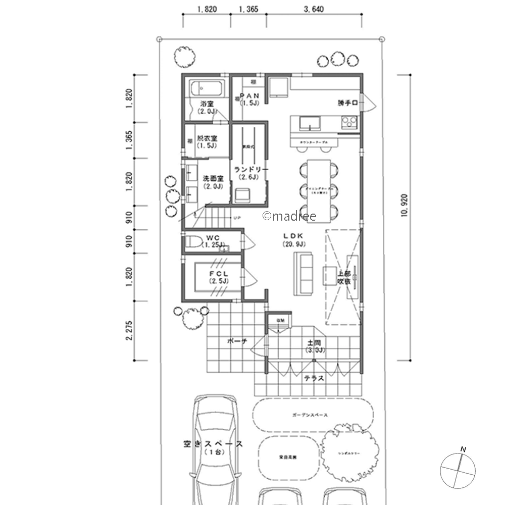
【全体のコンセプト】
・LDKからの開放感がある家。
【こだわりのポイント】
■1階
・土間の開口部を開け放つと、庭とLDKが一体的空間となります。
・室内干しのできるランドリールームを設けました。
・2ボウルの洗面室の隣に、ランドリールームと脱衣室を配置しました。
・キッチン内部が見えないセミオープンタイプなので、来客の際も安心です。
・キッチン前に、気軽に食事ができるカウンターテーブルを設けました。
・ダイニングは6人掛けテーブルを無理なく置ける広さです。
・土間からリビングに直接アクセスできます。
・リビングからテラスや庭を眺めることができます。
■2階
・主寝室にWICと小ぶりな収納を設けました。
・子ども室は、将来的に間仕切りが可能です。
・子ども室は吹抜に面しているので、リビングの気配が伝わります。
35坪 2LDK関連の間取り
マドリー開発の『住宅営業支援ツール』
madreeデータバンク
マドリーの人気間取り4,800プランを接客・提案に活用できる営業支援ツール
- 競合他社と差がつく、スピード提案
- トレンド間取りで、集客・受注数UP
- 建築家のアイデアを参考に、質の高い提案ができる









