一列に並んだ水廻りの間取り一覧
家族や自分の”好き”を叶える注文住宅の間取りが見つかる!暮らしの要望をもとに全国の建築家が作成した一列に並んだ水廻りの間取りを401件公開しています。毎日更新中!
-
- 33坪
- ワンルーム
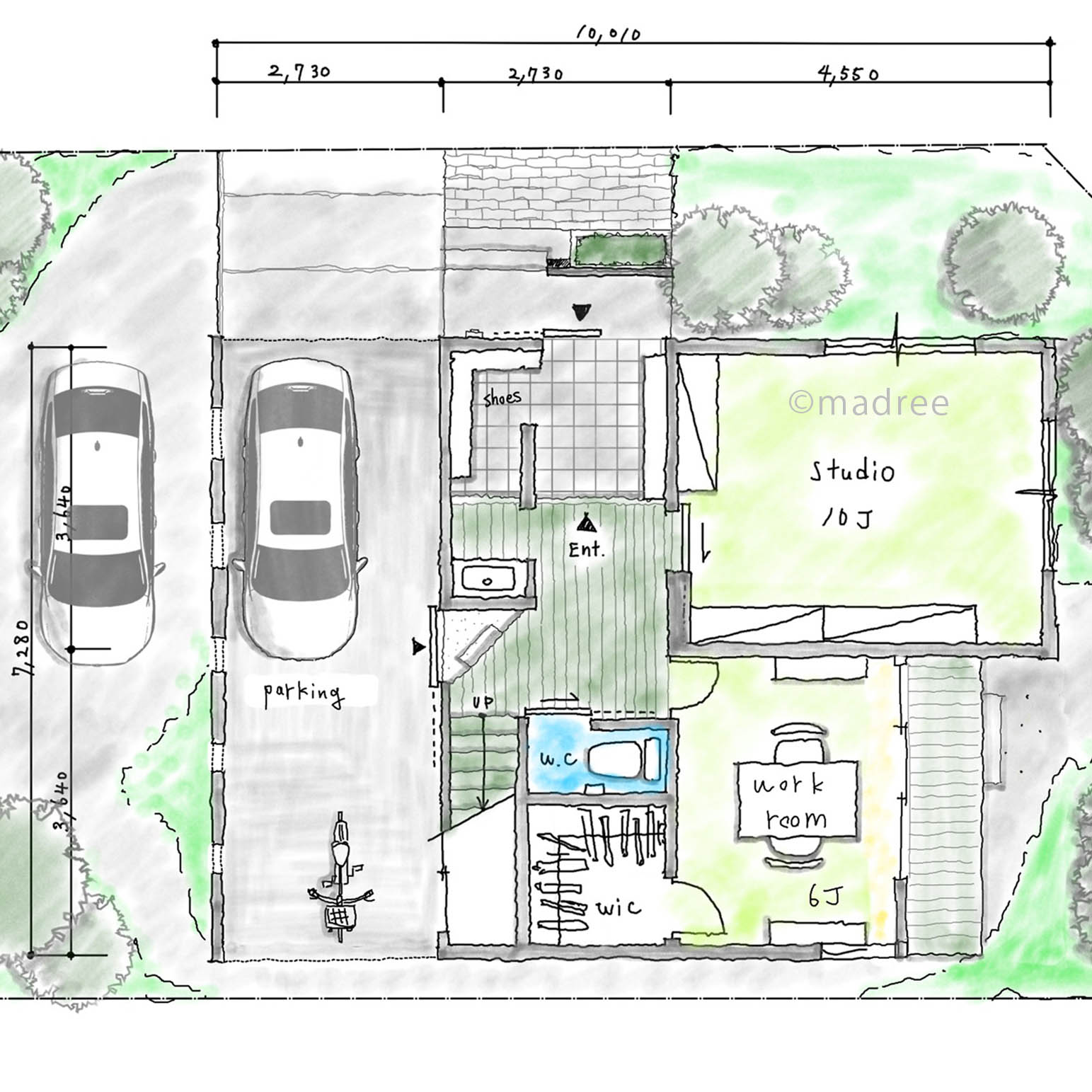
キッチンから家事育児に目配りしやすい、裏動線に生活感を隠した快適な家
-
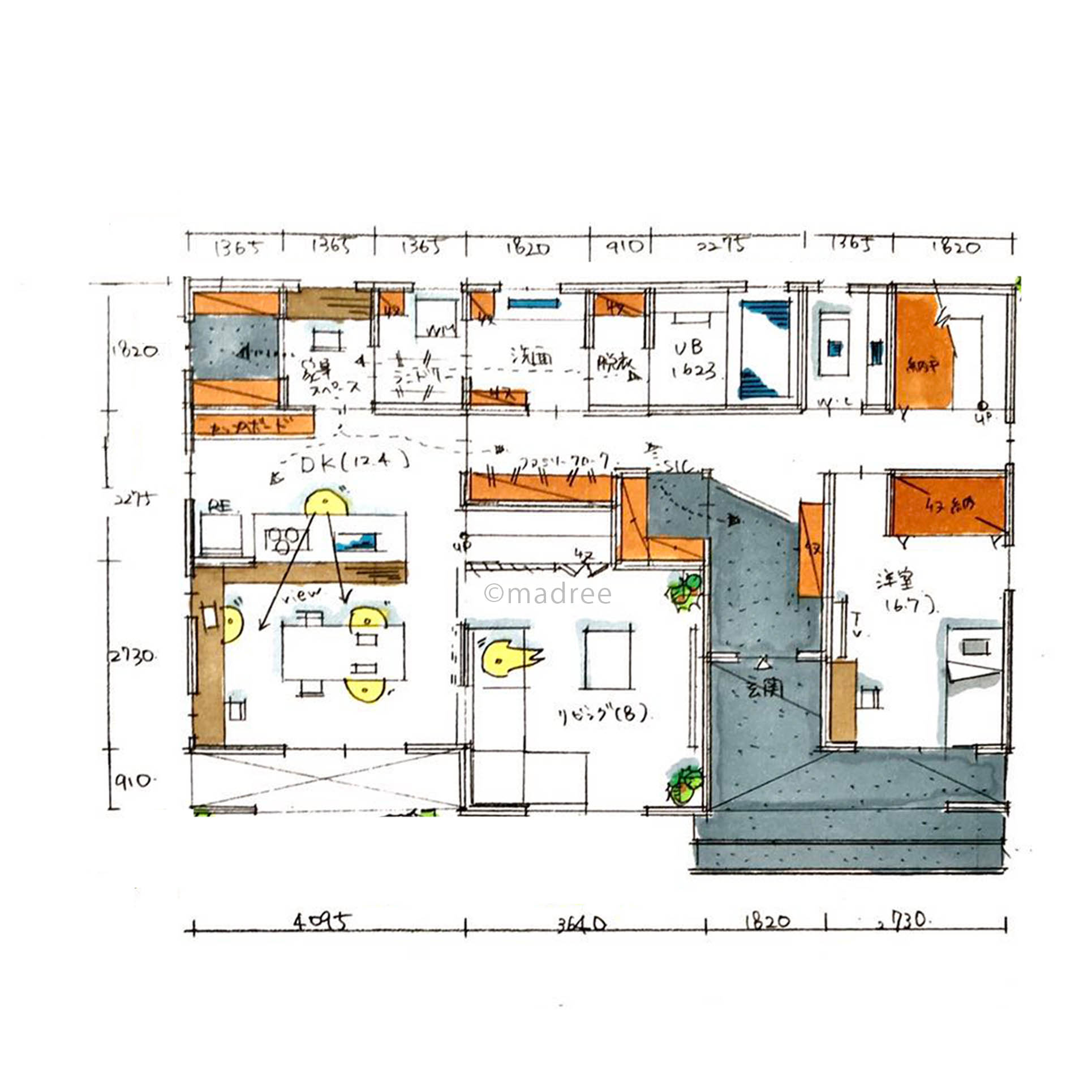
- 42坪
- 5LDK
家族間のプライベートを守りつつ、アウトドアリビングで団らん楽しむ二世帯住宅
-
- 45坪~49坪
- 3LDK
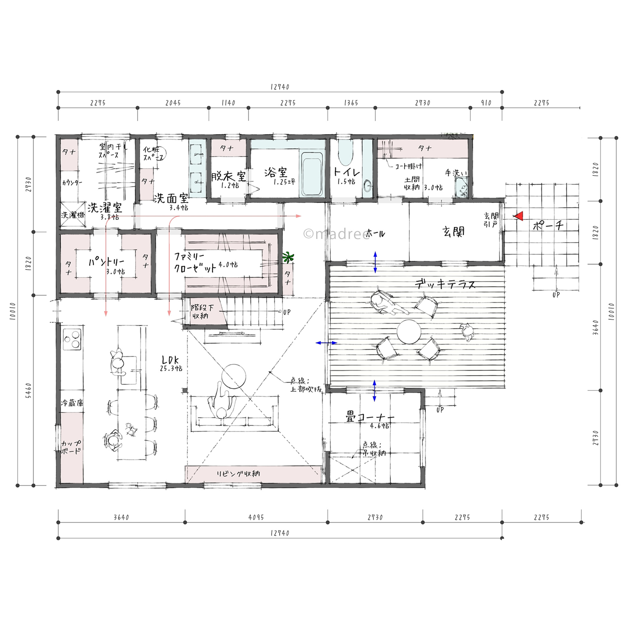
収納も生活動線も回遊性抜群!日当たり良いリビングと子育てしやすい見守りキッチンで家族が心地良く過ごせる間取り
-
- 26坪
- 3LDK
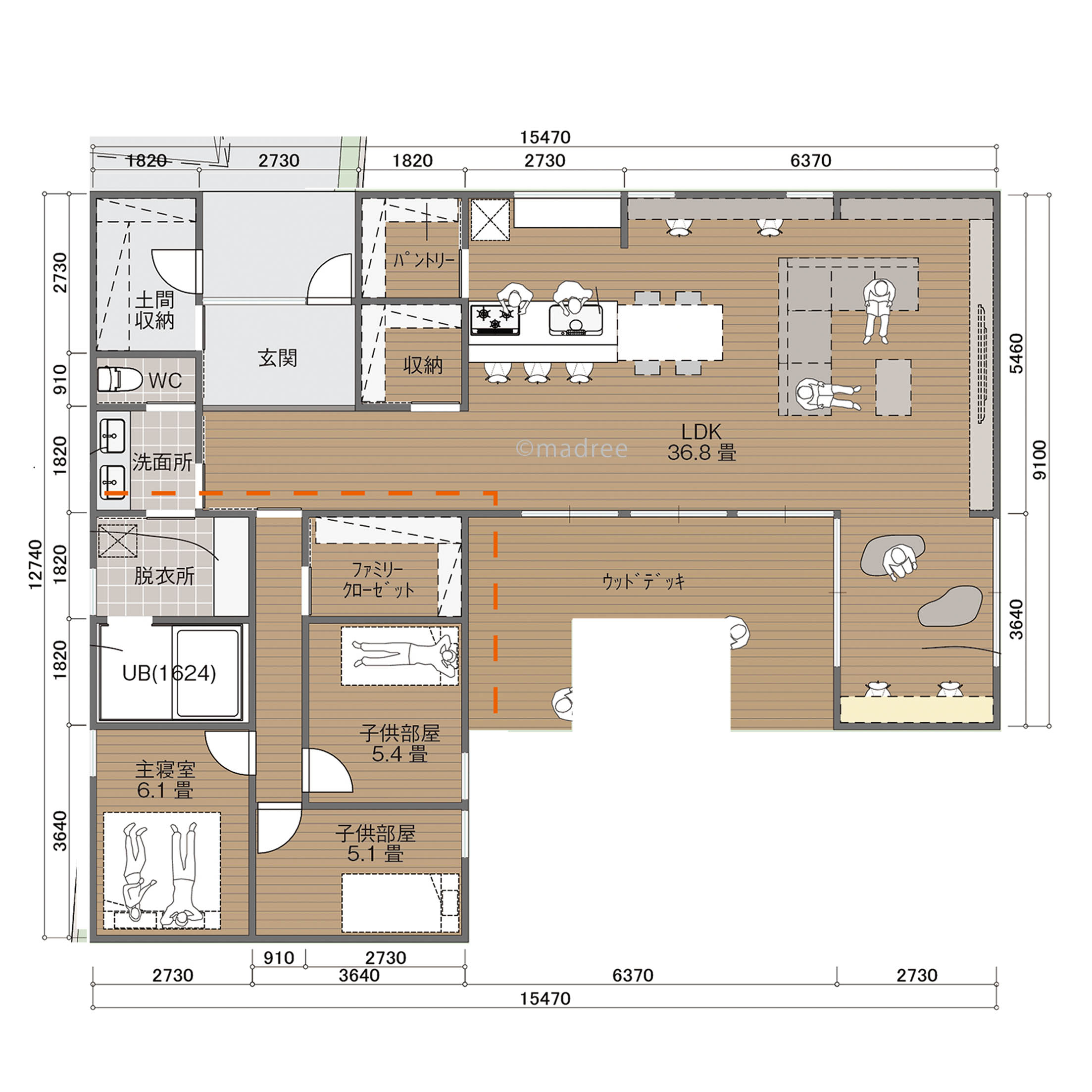
狭小地を広々使える工夫が詰まったシンプル家事動線で暮らしやすく木の温もり感じられる家
-
- 36坪~39坪
- 4LDK
外干し部屋干しOKの洗濯動線と買い物帰宅動線の快適性で暮らしがスムーズになる家
-
- 42坪~45坪
- 4LDK
採光たっぷり!キッチン中心の回遊動線で家事がどんどん捗る3階建の家
-
- 30坪~33坪
- 4LDK
適材適所の収納と回遊性ある真ん中LDKで暮らしをスムーズに!シンボルツリーを眺めながら寛げる平屋
-
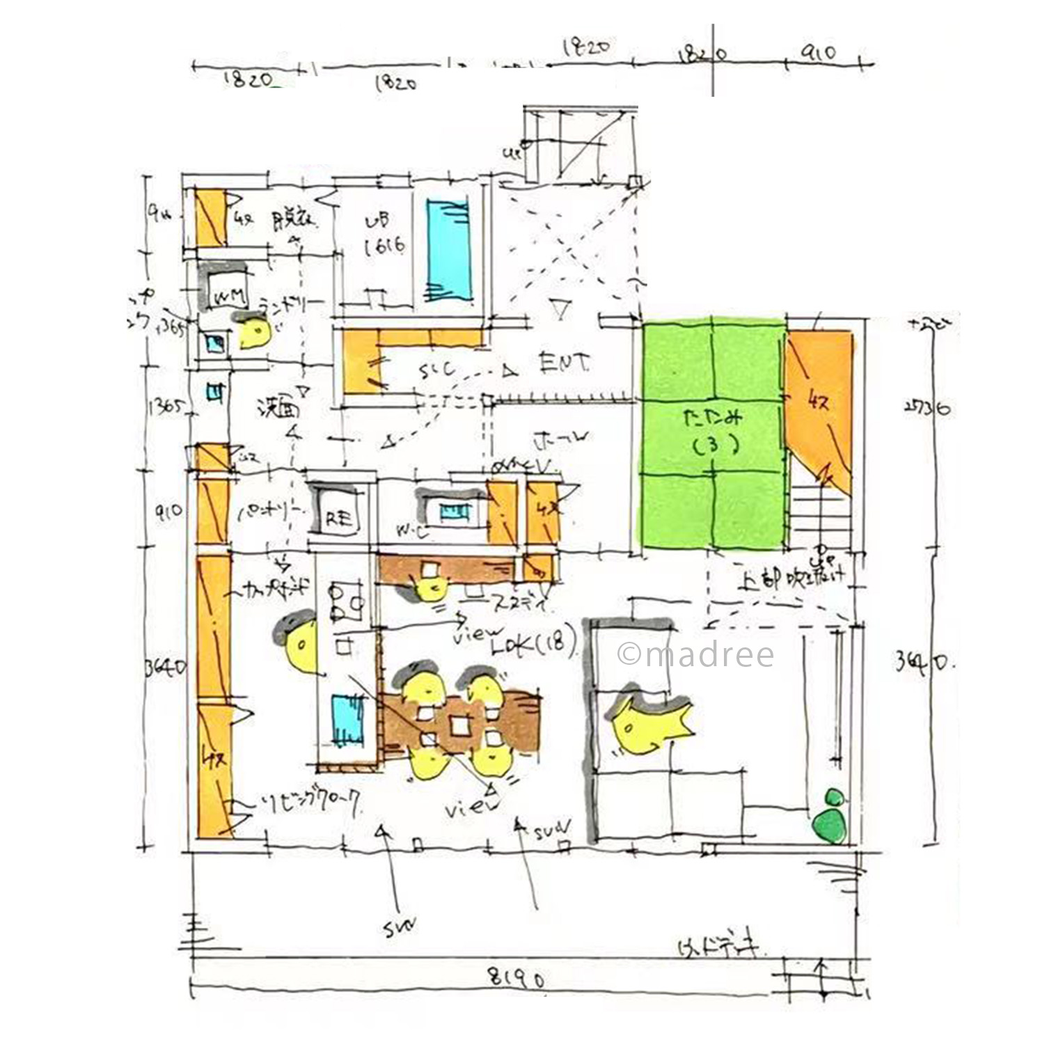
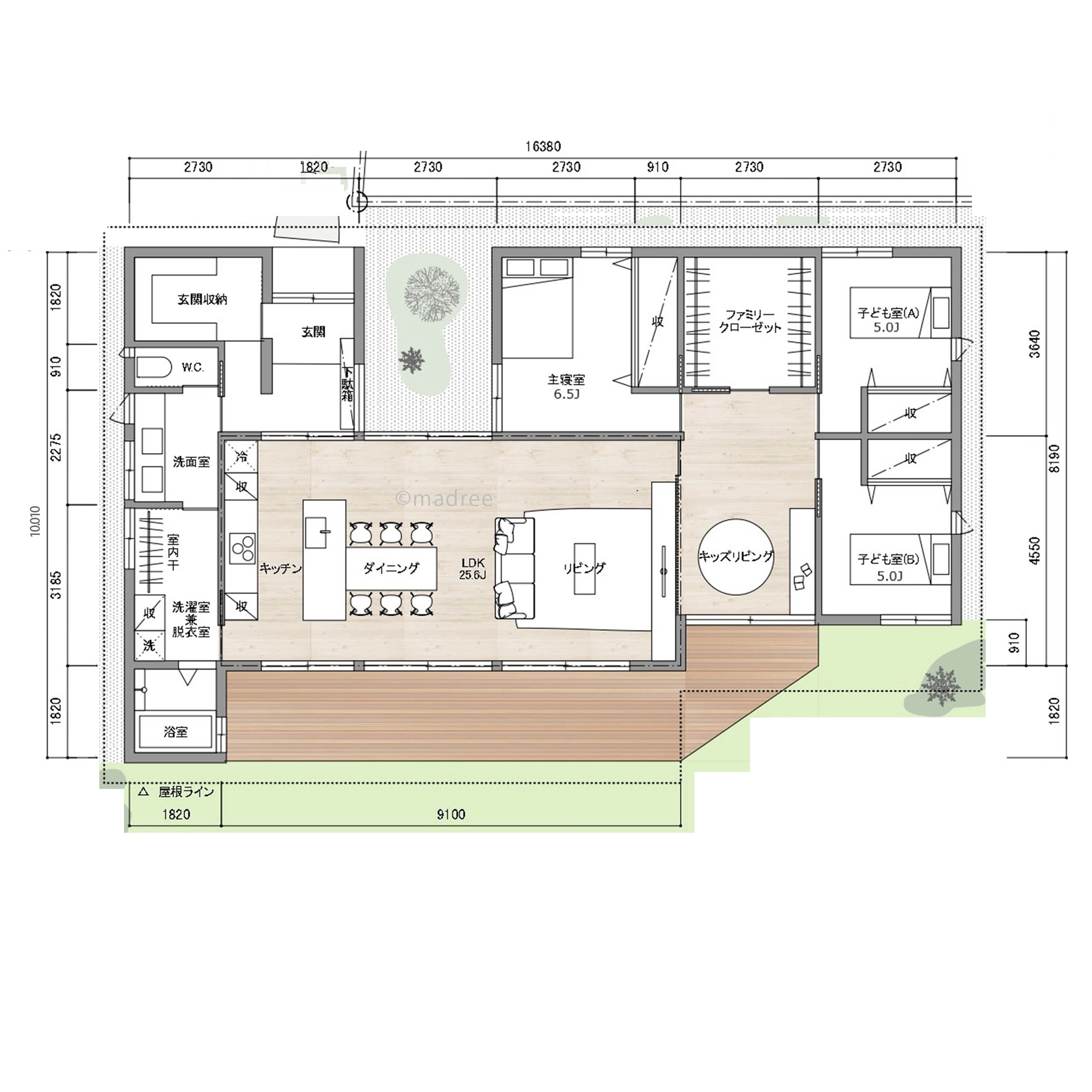
- 45坪~49坪
- 4LDK
真ん中LDKで家族が繋がる庭とデッキを囲んだL字型平屋の間取り
-
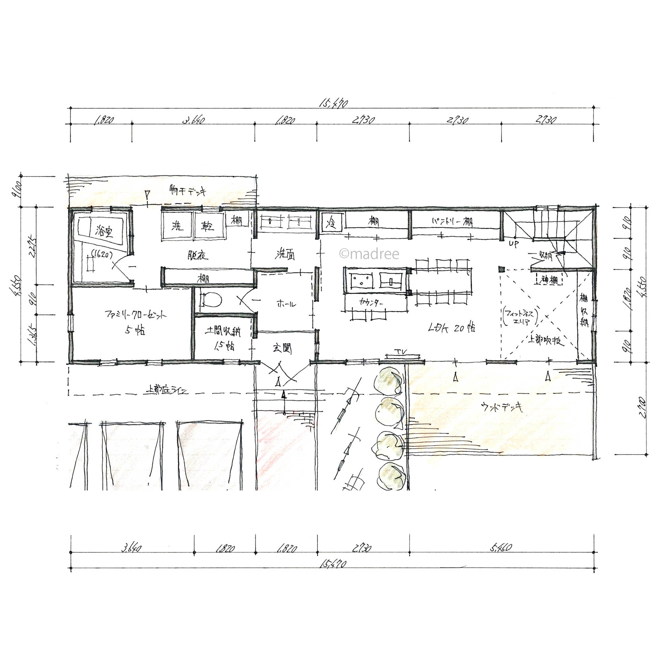
- 39坪~42坪
- 3LDK
廊下の代わりにウォークスルーのファミクロ!収納充実で家中スッキリ間取り以上に広く感じる家
-
- 39坪~42坪
- 4LDK
ママ目線の家事動線や見守り動線が充実の子育てしやすく暮らしやすい間取り
-
- 33坪
- 4LDK
日当たり良好の2階LDKと家族が暮らしやすい広さを考慮した居心地よい間取り
-
- 36坪~39坪
- 3LDK
来客対応いつでもOK!充実の収納とキッチンから水回りのスムーズな動線で家事が心地良い間取り
-
- 45坪~49坪
- 5LDK
仕事スペースをしっかり確保しながら住居スペースは採光とシンプル動線で住み心地が良い家
-
- 39坪~42坪
- 6LDK
ほどよい距離感の2世帯住宅とセカンドリビングでお泊まり会ができる家
-
- 36坪~39坪
- 3LDK
生活ゾーン分けで使い勝手と効率UP!子供に目が行き届くLDKの間取り
-
- 40坪
- 3LDK
開放的な明るいリビングダイニングと一直線水回り動線で心地良く暮らせる家
-
- 39坪~42坪
- 4LDK
1階も2階も回遊できる動線で心地良く家族が過ごせる日当たりのよい明るい家
-
- 45坪~49坪
- 4LDK
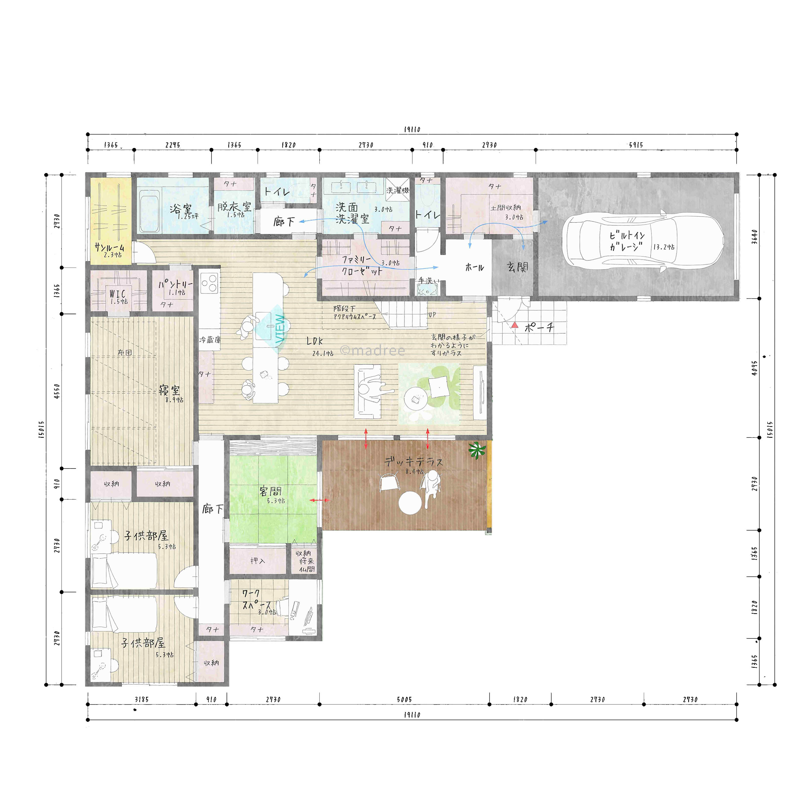
一直線水回りで効率良い家事動線と独立リビングで寛げる2.5世帯の家
-
- 39坪~42坪
- 3LDK
家の中にいても外とつながれる庭をめぐっているような居心地良い平屋
-
- 27坪
- 3LDK
シンボルツリーのある中庭から降り注ぐ光と風が家中を心地良くしながら家族を繋げる平屋
-
- 24坪~27坪
- 3LDK
一直線水回り・収納動線でスムーズに暮らせる!ウッドデッキをコの字型に囲んで自然を感じられる家
-
- 36坪~39坪
- 3LDK
適材適所のゆとりある収納で散らかり知らず!一直線水回りの家事ラク動線で暮らしやすい間取り
-
- 39坪~42坪
- 3LDK
プライベートスペースを分けて来客時も対応スムーズ!大きめキッチンで料理が楽しめる家
-
- 33坪~36坪
- 3LDK
一直線の水回りとキッチンで効率的な家事が叶う!家族が心地良く過ごせる空間が充実した家
マドリー開発の『住宅営業支援ツール』
madreeデータバンク
マドリーの人気間取り4,800プランを接客・提案に活用できる営業支援ツール
- 競合他社と差がつく、スピード提案
- トレンド間取りで、集客・受注数UP
- 建築家のアイデアを参考に、質の高い提案ができる
