吹抜で家族が繋がるの間取り一覧
家族や自分の”好き”を叶える注文住宅の間取りが見つかる!暮らしの要望をもとに全国の建築家が作成した吹抜で家族が繋がるの間取りを475件公開しています。毎日更新中!
-
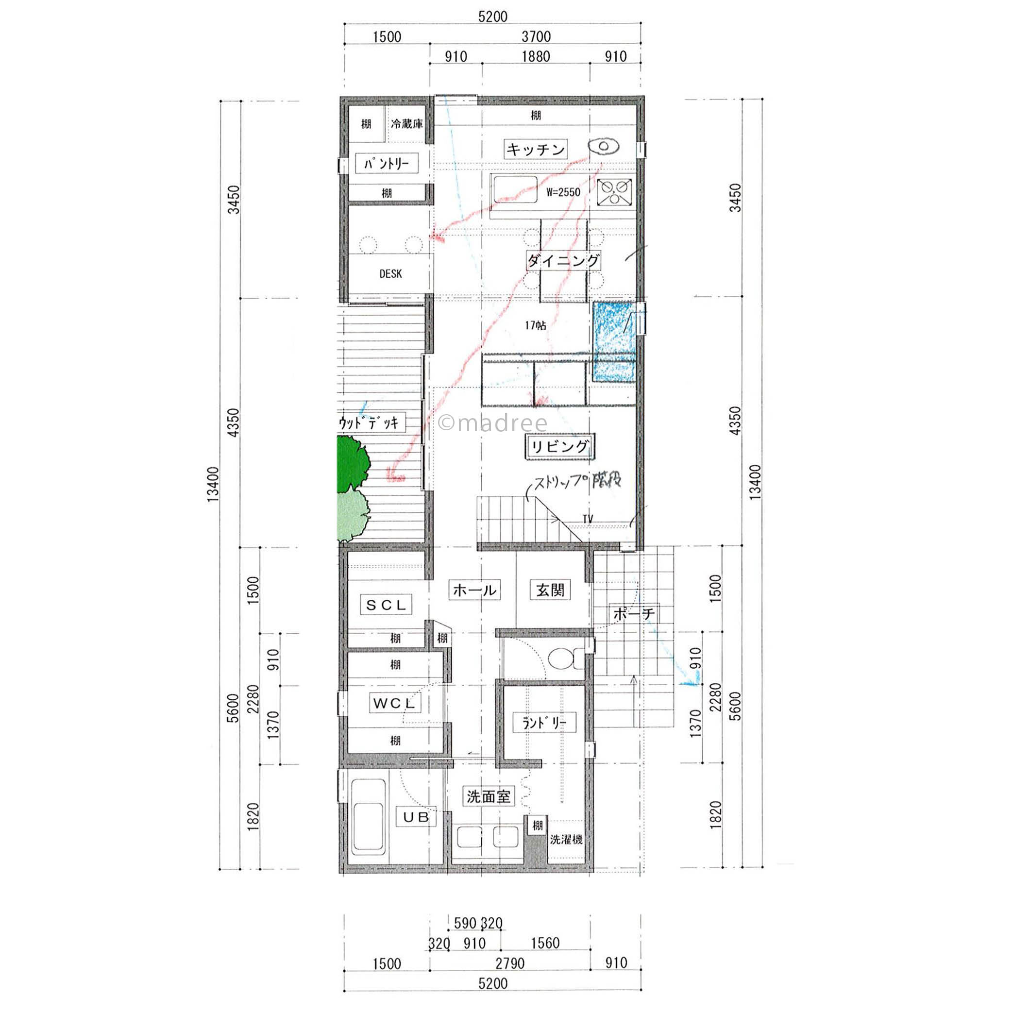
- 34坪
- 2LDK
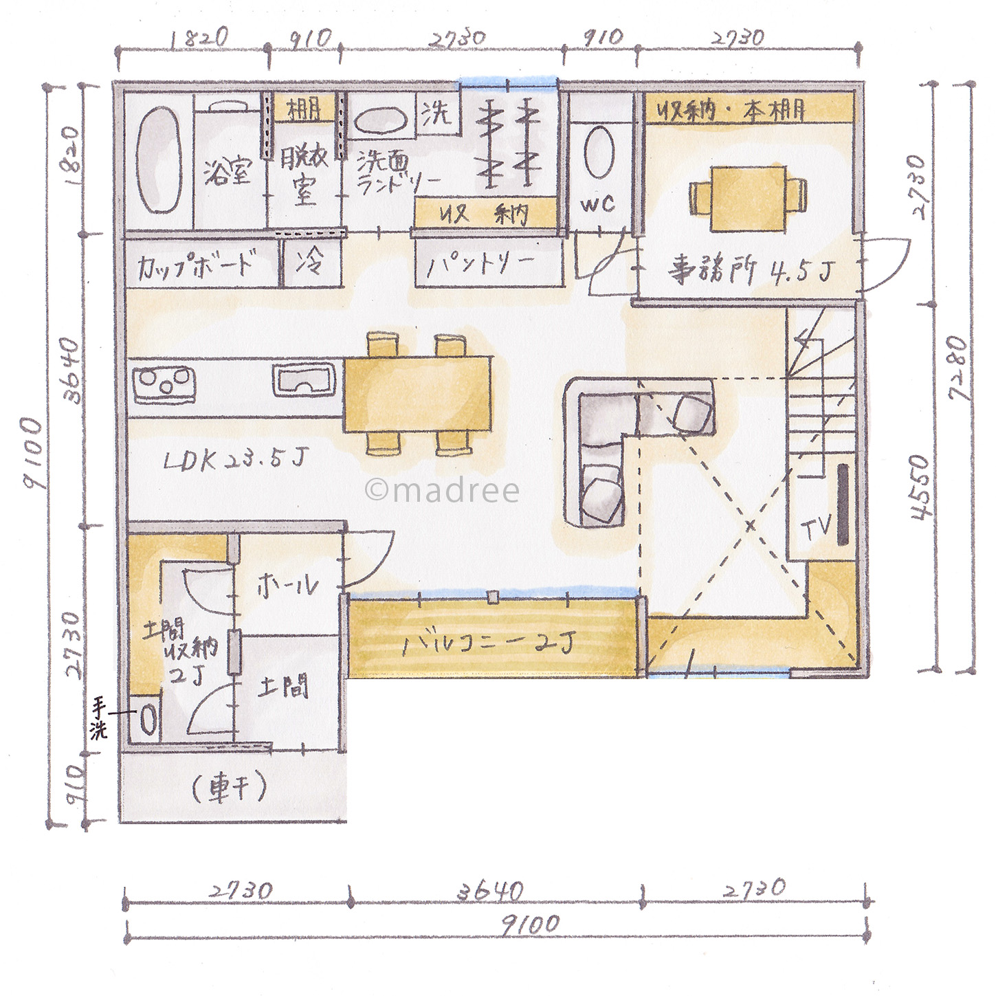
家事ラク裏動線で親子時間をつくる、大きな吹抜のひだまりリビングの家
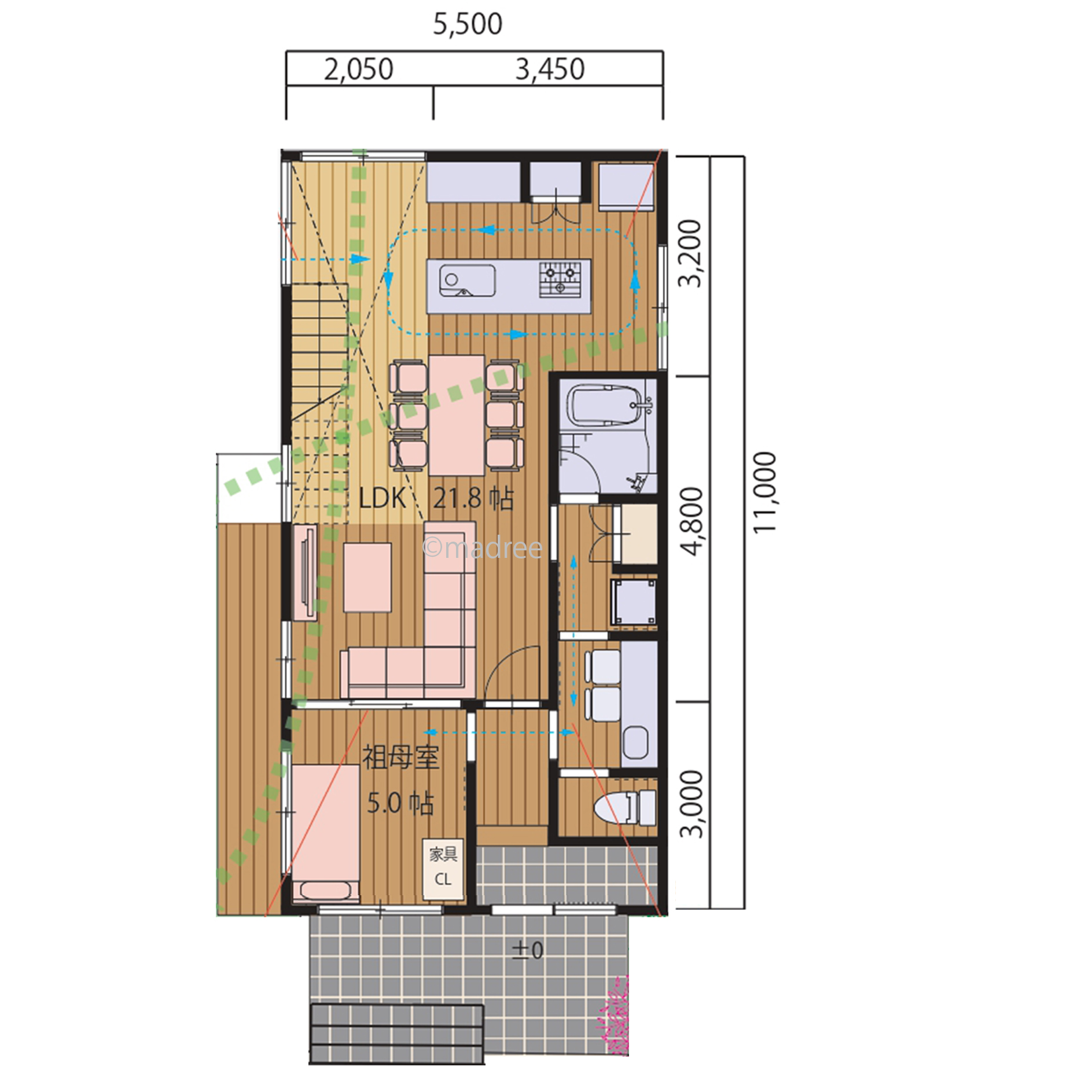
-
- 33坪
- 2LDK
家事仕事しながらわんぱくキッズを見守る、ライフスタイルの変化に対応しやすい家
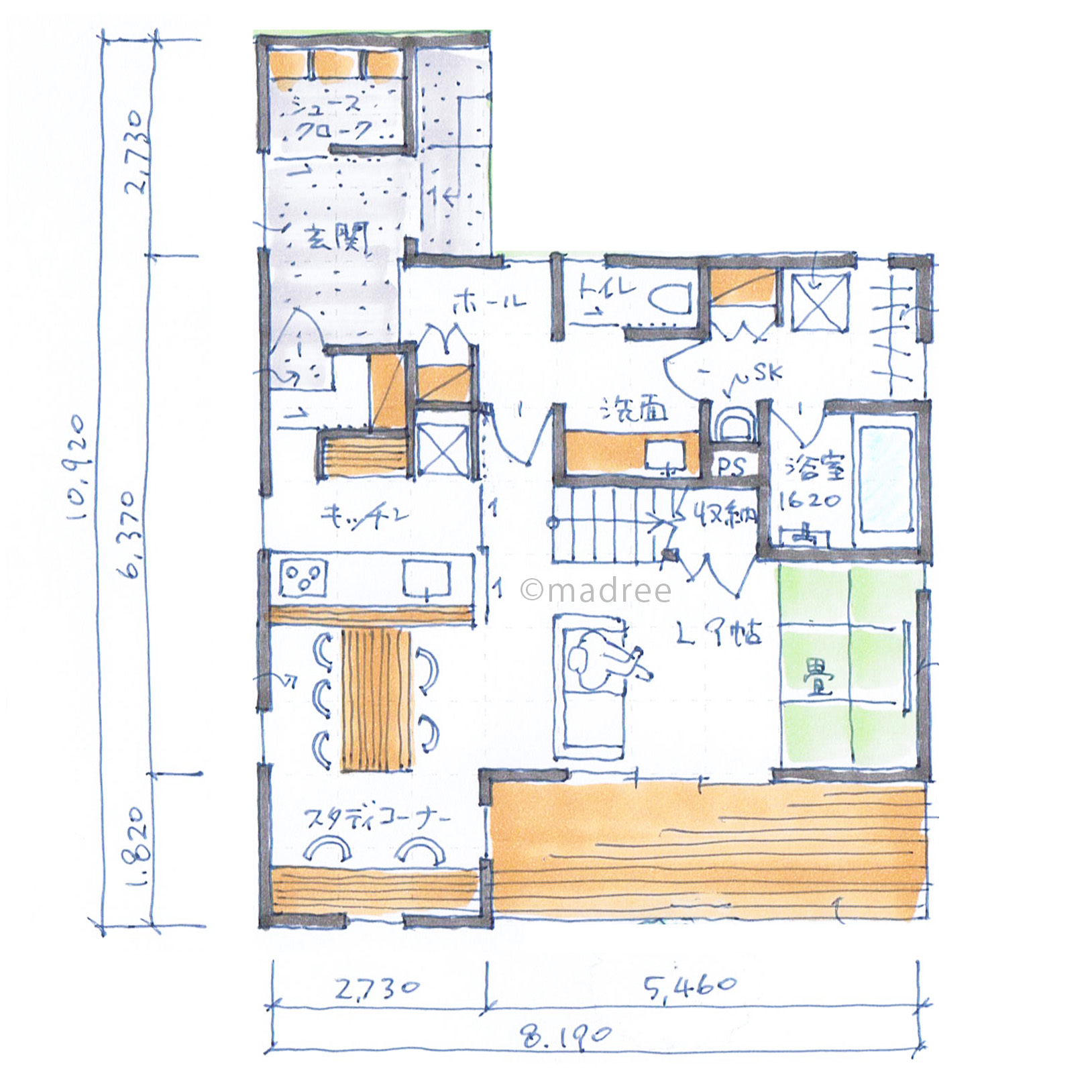
-
- 35坪
- 2LDK
開放的なリビングとコンパクト家事で、家族を感じながら過ごせる家
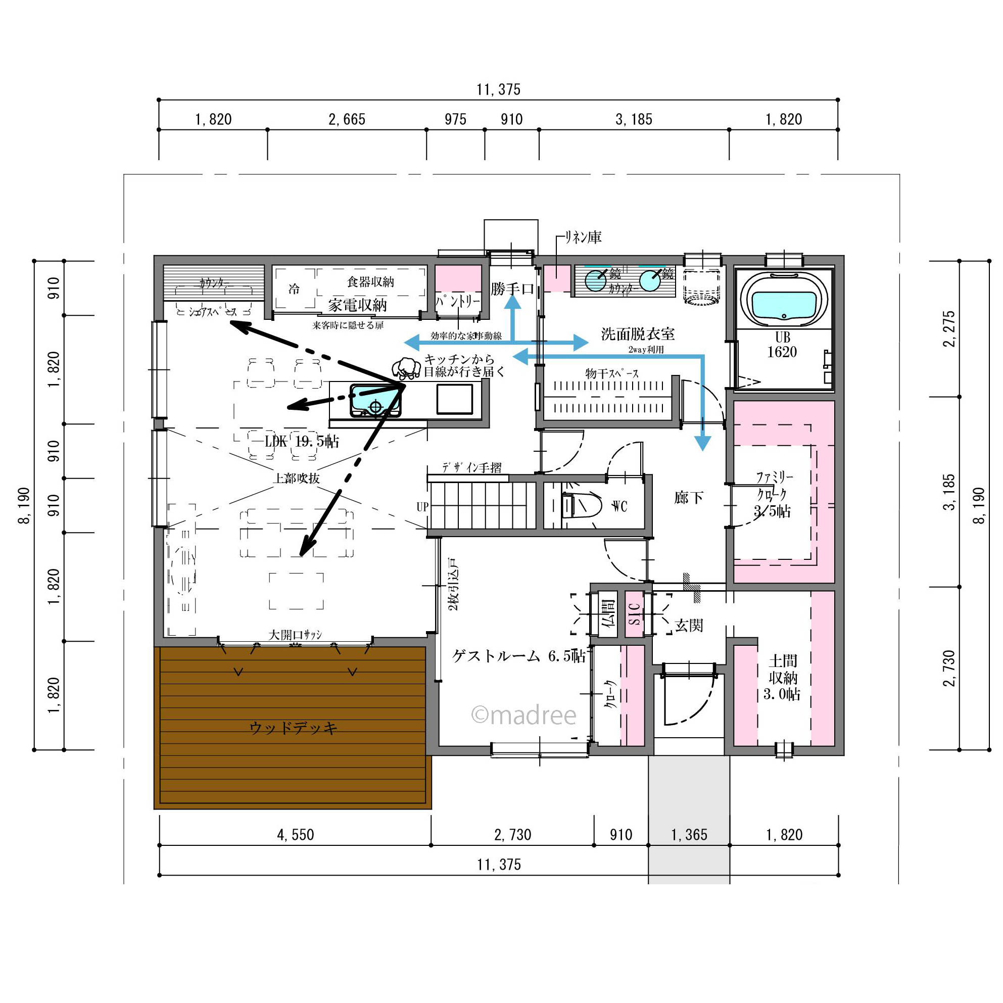
-
- 41坪
- 4LDK
思い出ある既存樹と共に暮らす、家族それぞれの趣味叶える二世帯住宅
-
- 45坪~49坪
- 3LDK
収納も生活動線も回遊性抜群!日当たり良いリビングと子育てしやすい見守りキッチンで家族が心地良く過ごせる間取り
-
- 27坪〜30坪
- 2LDK
思わず家族が集まりたくなる開放感と居心地の良さが叶うLDKと繋がる吹き抜けで子育てしやすい間取り
-
- 36坪~39坪
- 3LDK
来客対応も家族の寛ぎ空間も確保した光や風に溢れる開放感のある間取り
-
- 24坪~27坪
- 2LDK
機能性高い家事動線を効率的にコンパクトにまとめた明るく開放的な家
-
- 33坪~36坪
- 3LDK
開放的なリビングで家族が繋がる、家事も暮らしもシンプルで心地良い間取り
-
- 45坪~49坪
- 4LDK
来客対応も家事ラクも叶う動線で暮らしにゆとりが持てる家
-
- 30坪~33坪
- 2LDK
自分らしい暮らしを実現!通り土間で光を取り込む開放感ある間取り
-
- 36坪~39坪
- 3LDK
回遊性抜群の水回り家事動線と2つのインナーバルコニーでゆったり寛げる家
-
- 39坪~42坪
- 2LDK
家の中でも思い切り遊べるファミリーホールがある明るく開放感のある家
-
- 33坪
- 4LDK
庭から吹き抜ける風と光で心地良く過ごせるシンプルで暮らしやすい間取り
-
- 30坪~33坪
- 3LDK
シンプルでコンパクトながらどこにいても明るく開放的な家
-
- 33坪~36坪
- 3LDK
3世代6人と2匹で家事動線も収納も充実させつつ心地よく暮らせる家
-
- 42坪~45坪
- 4LDK
間口が狭くても広々した居住空間で暮らし満喫できる3階建ての家
-
- 30坪~33坪
- 4LDK
家事ラク動線とデッキに繋がる土間玄関で愛犬と家族みんなで快適に過ごせる間取り
-
- 39坪~42坪
- 5LDK
趣味も家事も快適に過ごせるスペースで暮らしを豊かにする間取り
-
- 39坪~42坪
- 4LDK
洗う・干す・しまうが快適な洗濯ラク動線と開放感があって落ち着けるリビングで寛げる家
-
- 45坪~49坪
- 4LDK
光と風で心地良さに満たされる、吹き抜けで繋がる3階建ての家
-
- 39坪~42坪
- 3LDK
趣味を楽しむスペースが充実!暮らしが豊かになる心地良い家
-
- 33坪~36坪
- 3LDK
人も愛犬もみんなの暮らしやすさを詰め込んだ開放感あるモダンな家
-
- 39坪~42坪
- 4LDK
土間で繋がるダイニングキッチンと吹き抜けで開放感ある心地良い家
マドリー開発の『住宅営業支援ツール』

madreeデータバンク
マドリーの人気間取り4,800プランを接客・提案に活用できる営業支援ツール
- 競合他社と差がつく、スピード提案
- トレンド間取りで、集客・受注数UP
- 建築家のアイデアを参考に、質の高い提案ができる