大きな吹抜で採光確保の間取り一覧
家族や自分の”好き”を叶える注文住宅の間取りが見つかる!暮らしの要望をもとに全国の建築家が作成した大きな吹抜で採光確保の間取りを577件公開しています。毎日更新中!
-
- 42坪
- 4LDK
縁側で高台からの景色を独り占め、自然とアウトドアを満喫できる家
-
- 50坪以上
- 5LDK
気配は感じつつプライバシーを保つ、程よく寄り添いながら暮らす2世帯住宅
-
- 40坪
- 3LDK
緑に囲まれてのびのび過ごす、隅々まで光と風が行き届く平屋
-
- 34坪
- 2LDK
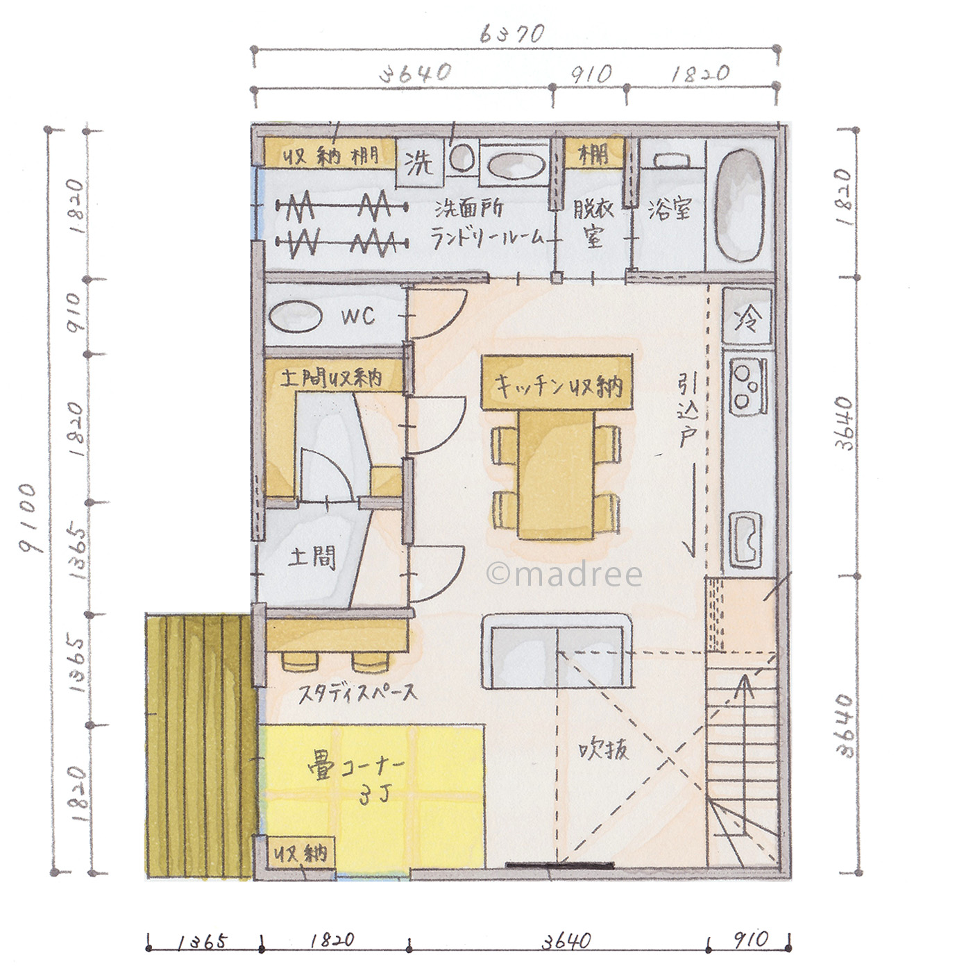
家事ラク裏動線で親子時間をつくる、大きな吹抜のひだまりリビングの家
-
- 35坪
- 3LDK
動線に合わせた収納でさっと片付く、来客時は引き戸でオシャレに魅せる家
-
- 34坪
- 2LDK
洗濯仕事を一気に完結を実現、生活感しっかり隠す事務所兼自宅の家
-
- 33坪
- 2LDK
来客はいつでもOK!キッチンをや生活感を一瞬で隠しすっきり魅せる家
-
- 40坪
- 4LDK
家族みんながのびのび過ごせる、ガーデニング映える庭に囲まれた平屋
-
- 40坪
- 5LDK
家事シェアしやすいシンプル動線と、個室時間も大切にする二世帯住宅
-
- 24坪~27坪
- 4LDK
趣味も家族時間も楽しむ、子育てサポートしやすい二世帯住宅
-
- 30坪~33坪
- 2LDK
シンボルツリーとデッキ、吹き抜けで明るく開放的!ラウンジの寛ぎスペースで一息つける縦長の間取り
-
- 45坪~49坪
- 4LDK
アイランドキッチン中心で部屋中見渡せ家事も捗る!明るく機能的な空間が暮らしにフィットする家
-
- 36坪~39坪
- 3LDK
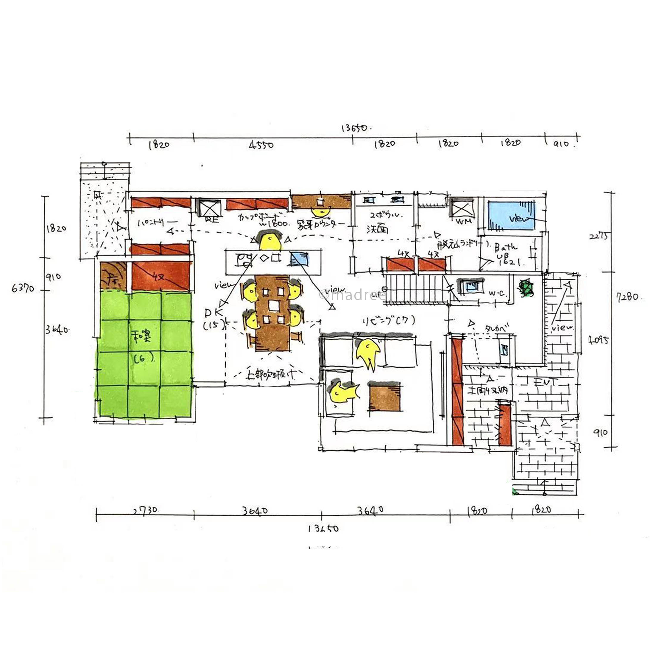
急な来客も安心!大きな吹き抜けで採光を確保した明るく開放感のある家
-
- 45坪~49坪
- 3LDK
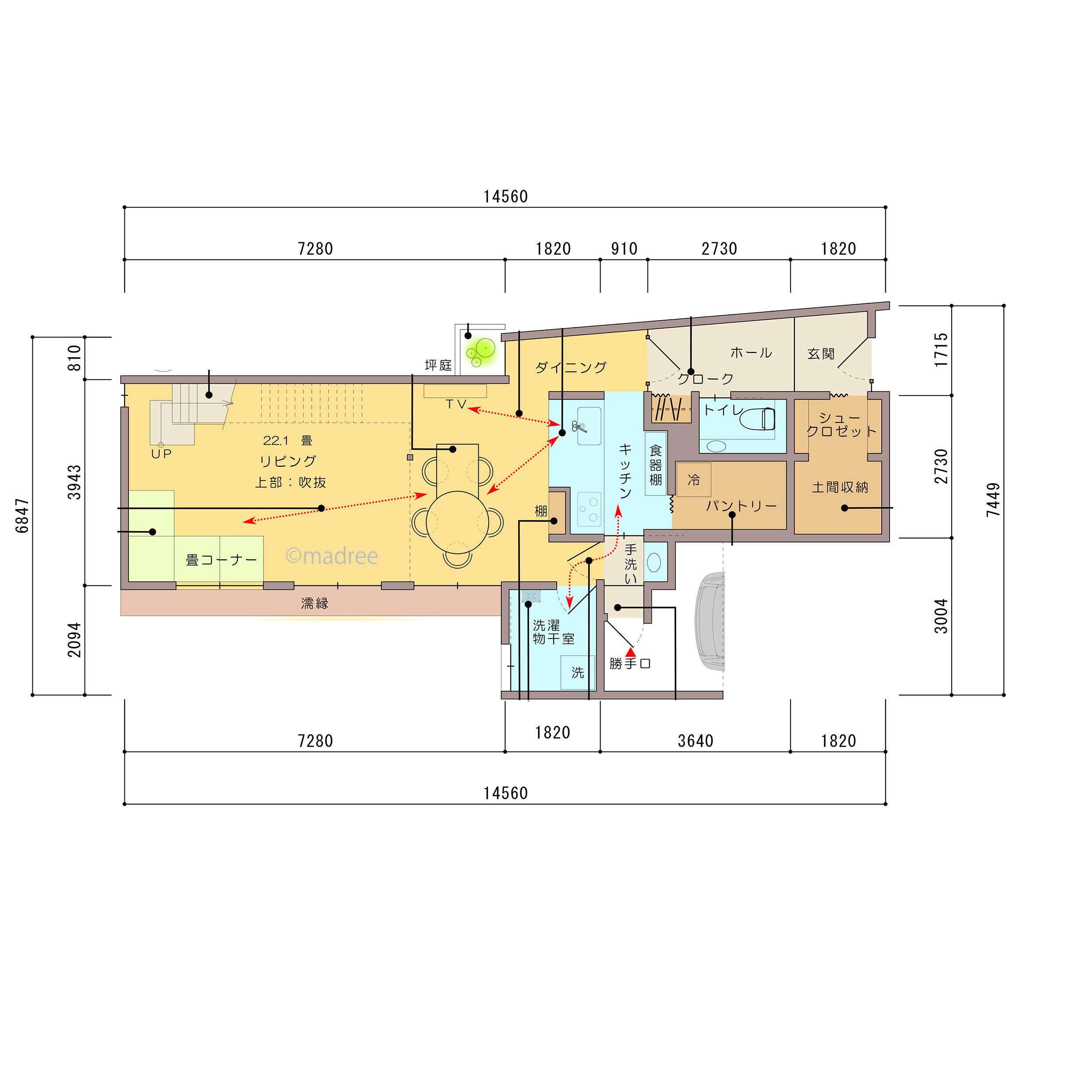
坪庭を愛でる玄関と家中快適な家事動線でゆとりある暮らしが叶う明るく開放的な家
-
- 39坪~42坪
- 3LDK
家族のコミュニケーションの取りやすさと家事ラク回遊動線で住み心地の良い家
-
- 39坪~42坪
- 3LDK
週末キャンプを楽しめる庭や趣味や暮らしを充実させる空間が満載の家
-
- 4LDK
間口が狭くても吹き抜けで採光を確保し明るく広々とした空間の家
-
- 30坪~33坪
- 3LDK
明るく開放的な快適土間リビングとスキップフロアで家族が心地良く繋れる家
-
- 4LDK
開放的な吹き抜けリビングで家族と繋がれる!通風、採光、お庭で自然を感じられる家
-
- 51坪
- 3LDK
スキップフロアでリズミカルな暮らし、大きな吹抜けで明るく開放的な家
-
- 36坪
- 3LDK
吹抜けリビングが家族を繋ぐ、南からの光が差し込む縦長敷地の家
-
- 42坪~45坪
- 3LDK
プライベートな浴室で疲れを癒す、デザイン性と機能性を両立した2階リビングの家
-
- 45坪~49坪
- 6LDK
どこにいても家族の気配を感じられる広々LDK、車椅子対応の同居型二世帯住宅
-
- 23坪
- 2LDK
2階はギュッとコンパクト、1階吹抜LDKにゆとりを持たせた家
マドリー開発の『住宅営業支援ツール』
madreeデータバンク
マドリーの人気間取り4,800プランを接客・提案に活用できる営業支援ツール
- 競合他社と差がつく、スピード提案
- トレンド間取りで、集客・受注数UP
- 建築家のアイデアを参考に、質の高い提案ができる
