夫婦別室の間取り一覧
家族や自分の”好き”を叶える注文住宅の間取りが見つかる!暮らしの要望をもとに全国の建築家が作成した夫婦別室の間取りを107件公開しています。毎日更新中!
-
- 62坪
- 4LDK
- new
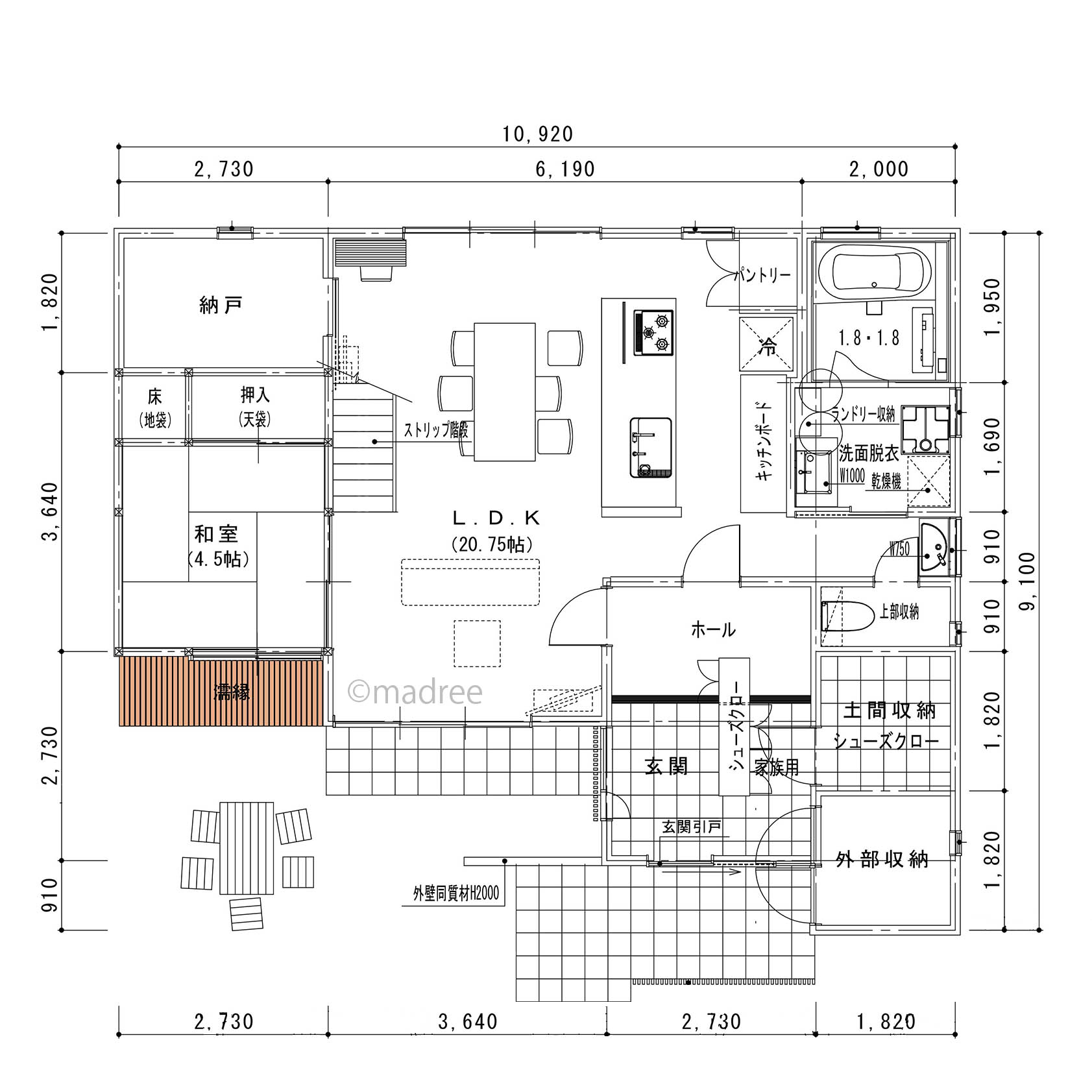
帰省した家族ものんびりリラックス、ピクチャーウインドウが暮らしに彩り与える家
-
- 29坪
- 3LDK
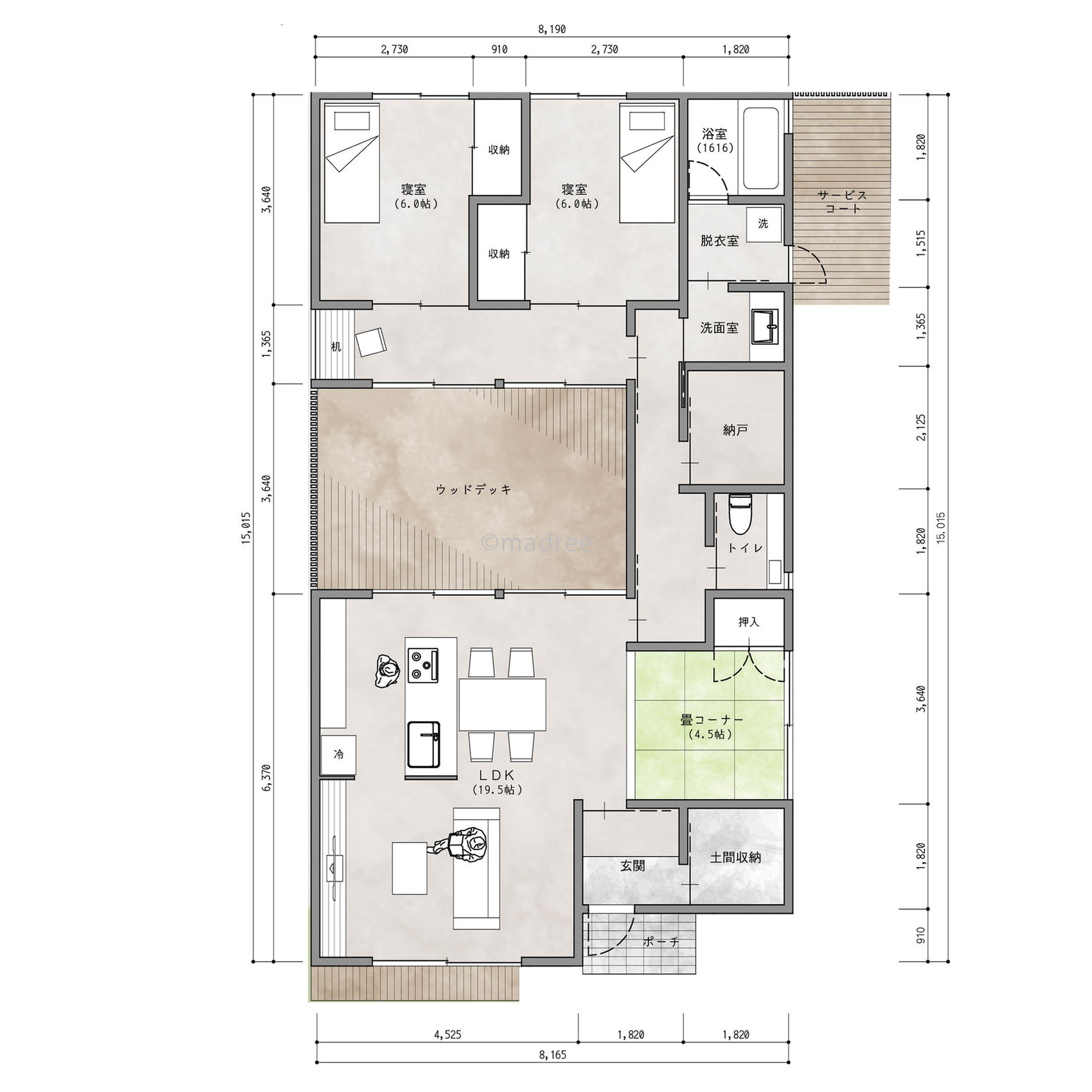
週末は3世代で賑やかな時を、自分時間を有意義に過ごす大人の家
-
- 53坪
- 4LDK
庭のウッドデッキでつながる、程よい距離感の完全分離2世帯住宅
-
- 55坪
- 4LDK
アウトドアリビングで家族団欒、贅沢なプライベート時間を過ごせる家
-
- 50坪以上
- 4LDK
玄関すぐのリビングで来客迎え入れやすい、生活感を隠してスッキリみせる家
-
- 30坪
- 5LDK
セカンドライフはワンフロア生活、週末は3世代が集う温かな家
-
- 56坪
- 4LDK
外からの視線を気にせず安心して暮らす、ファミリーテラスでつながる2世帯住宅
-
- 50坪以上
- 4LDK
共有デッキで柔らかにつながる、プライバシー守られた明るい2世帯住宅
-
- 63坪
- 4LDK
外からの光と風をたっぷり取り込む、庭でつながる程よい距離感の二世帯住宅
-
- 81坪
- 4LDK
自然の光と風が家族を包み込む、ライトコートでつながる二世帯住宅
-
- 50坪
- 4LDK
開放感とプライバシーを両立、緑を臨むひだまりの二世帯住宅
-
- 24坪
- 3LDK
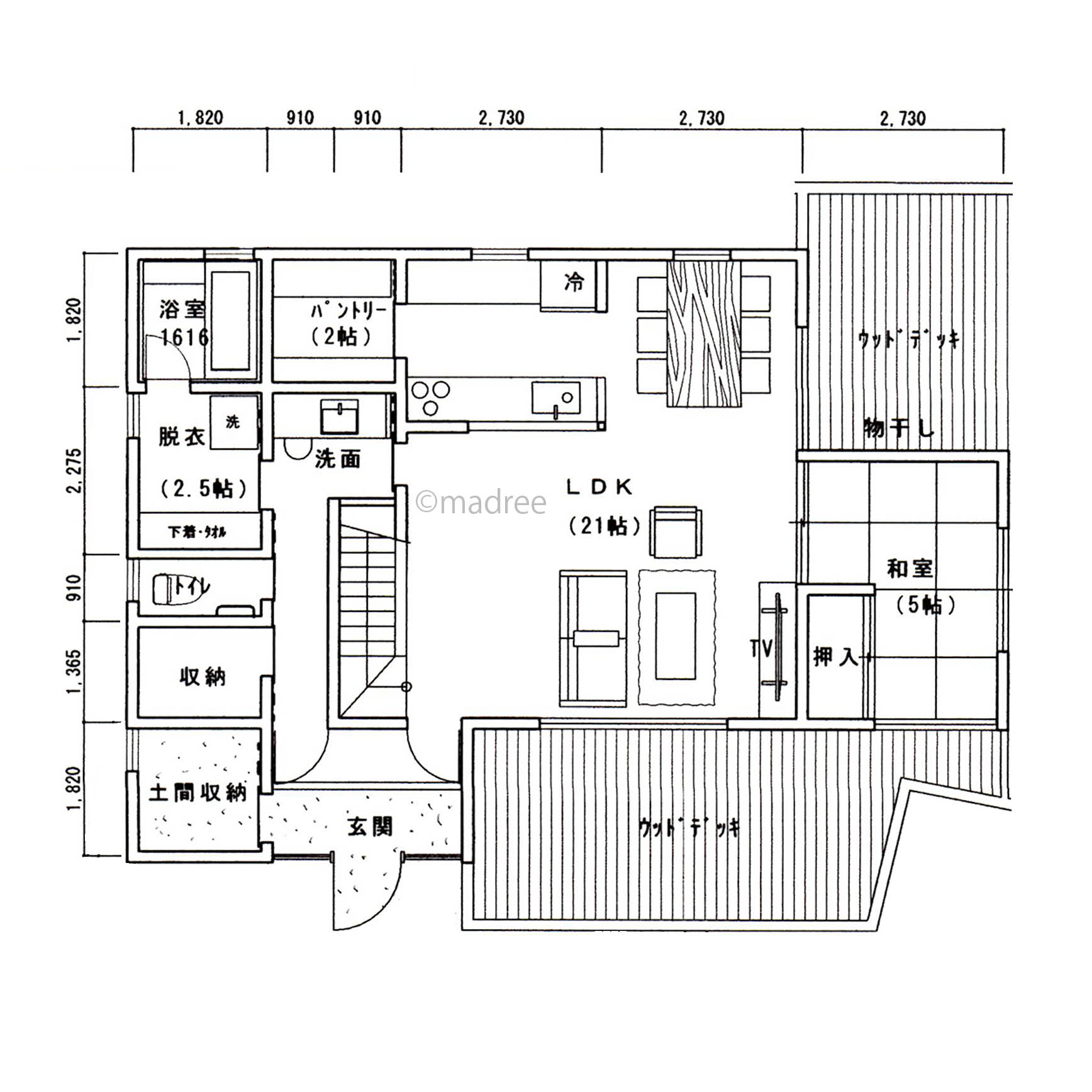
緑と光を感じるLDKで家族団らん、壁面収納がカギとなる狭小地の家
-
- 23坪
- 3LDK
吹抜リビングと子ども部屋がつながる、家族の気配を感じて心休まる家
-
- 30坪
- 3LDK
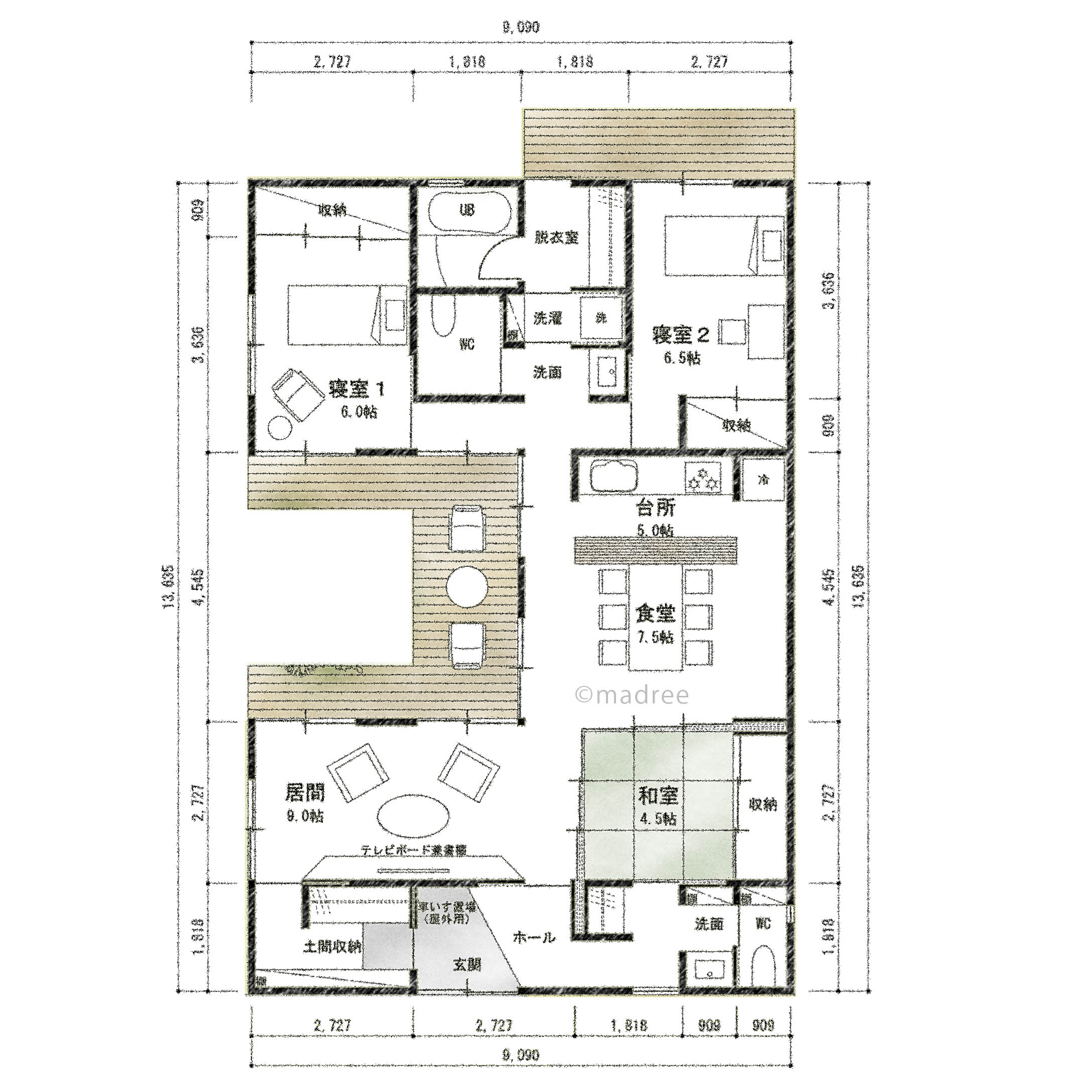
縁側が家族や友人の憩いの場に、全室南向きで明るく温かな里山の平屋
-
- 42坪
- 5LDK
家族間のプライベートを守りつつ、アウトドアリビングで団らん楽しむ二世帯住宅
-
- 39坪~42坪
- 6LDK
ほどよい距離感の2世帯住宅とセカンドリビングでお泊まり会ができる家
-
- 39坪~42坪
- 5LDK
個々の暮らしを大切にしながら心地良い距離感で暮らせて将来介護を意識した間取り
-
- 24坪~27坪
- 3LDK
光と風を取り込んだ開放感溢れる居心地良い暮らしが叶う間取り
-
- 30坪~33坪
- 3LDK
中庭をコの字で囲み光と風を取り込むバリアフリーの家
-
- 27坪
- 3LDK
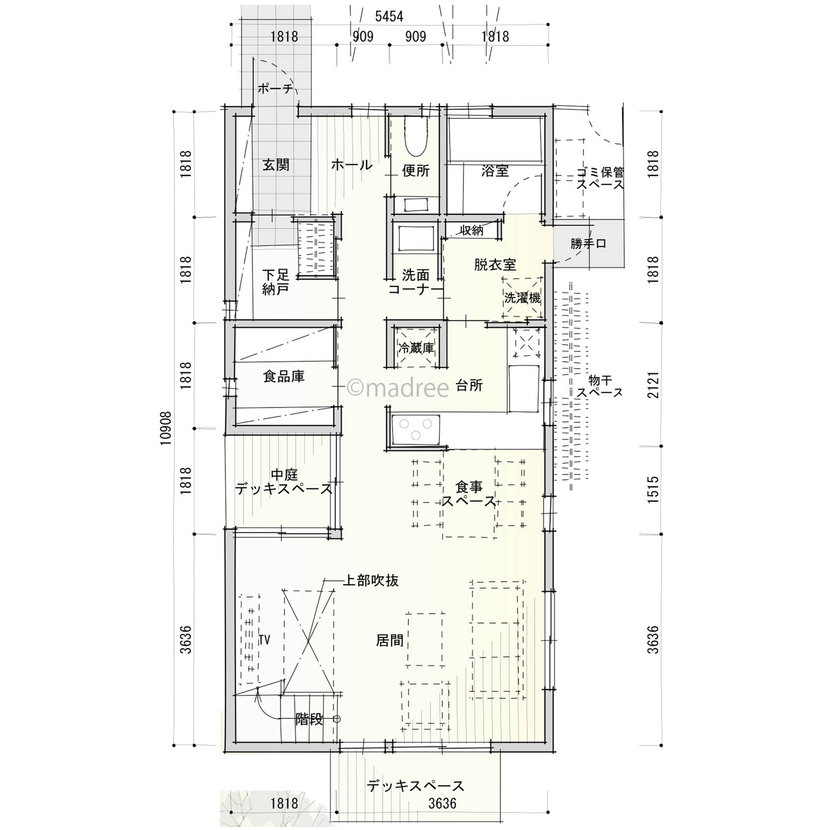
シンボルツリーのある中庭から降り注ぐ光と風が家中を心地良くしながら家族を繋げる平屋
-
- 24坪~27坪
- 3LDK
一直線水回り・収納動線でスムーズに暮らせる!ウッドデッキをコの字型に囲んで自然を感じられる家
-
- 30坪~33坪
- 2LDK
家の真ん中に中庭を配置して風が通り抜けて広がりを感じる心地良い平屋
-
- 31坪
- 4LDK
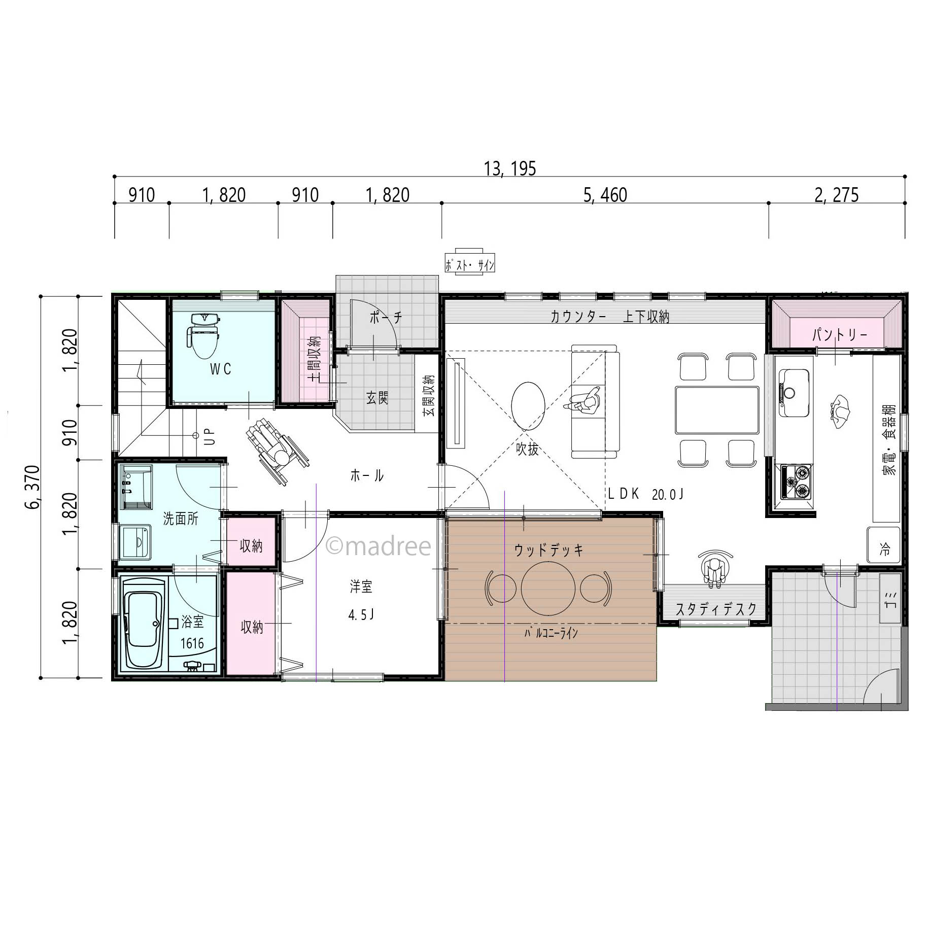
食事ができるカンターテーブルで家族団欒しやすい、夫婦別室の狭小地3階建ての家
-
- 45坪
- 4LDK
まるでギャラリーのような玄関土間、アウトドアリビングを楽しむ家
マドリー開発の『住宅営業支援ツール』
madreeデータバンク
マドリーの人気間取り4,800プランを接客・提案に活用できる営業支援ツール
- 競合他社と差がつく、スピード提案
- トレンド間取りで、集客・受注数UP
- 建築家のアイデアを参考に、質の高い提案ができる
