ベビーカーそのまま収納の間取り一覧
家族や自分の”好き”を叶える注文住宅の間取りが見つかる!暮らしの要望をもとに全国の建築家が作成したベビーカーそのまま収納の間取りを992件公開しています。毎日更新中!
-
- 32坪
- 3LDK
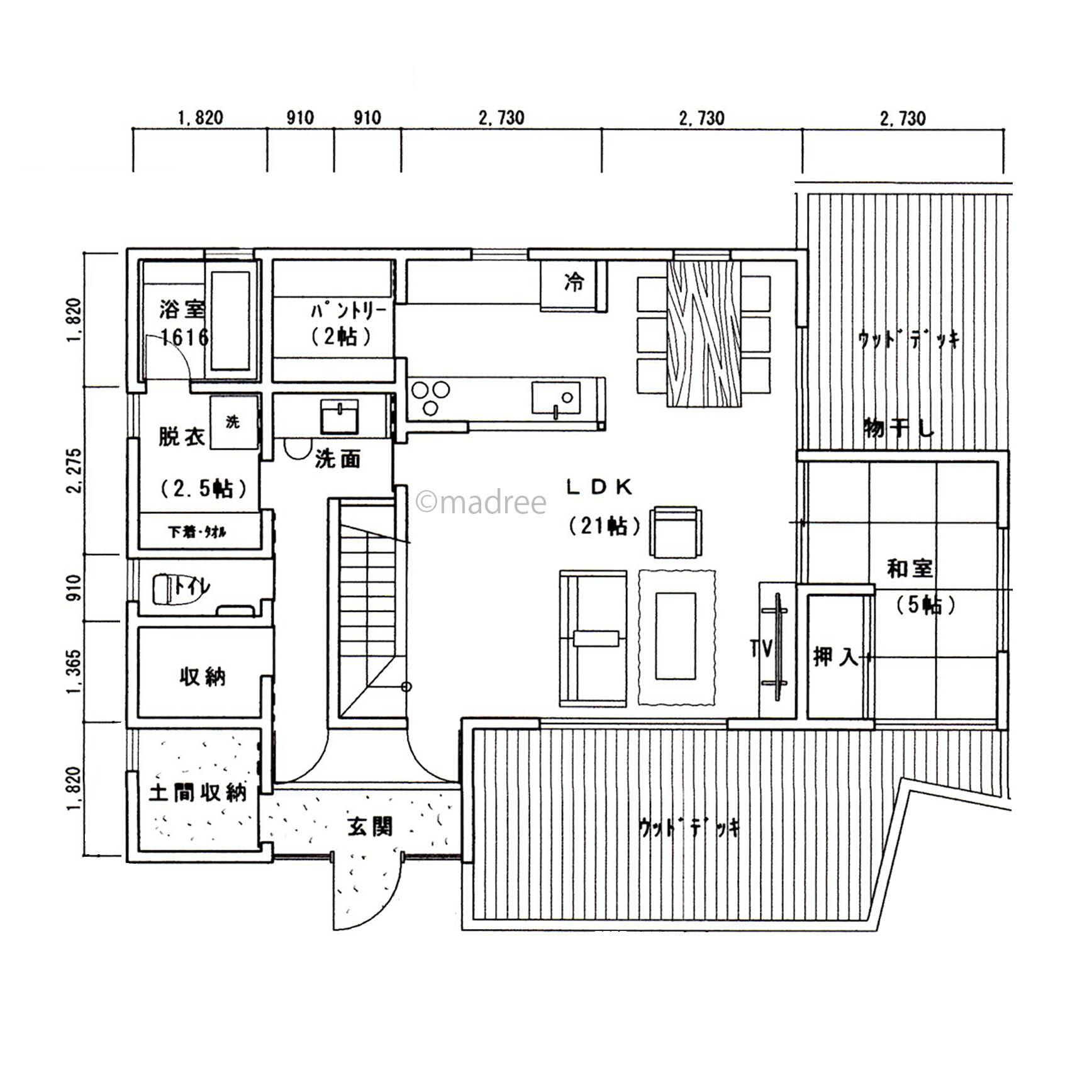
独立キッチンで生活感を隠す、リビングすっきりの家
-
- 42坪
- 4LDK
片付けが苦手でもスッキリ片付く、収納たっぷりな家
-
- 37坪
- 3LDK
目的が明確な昔ながらのメリハリのある生活、リビングを別空間に分けた家
-
- 34坪
- 4LDK
適材適所の収納で片付けやすく、家族が自然と集まる家
-
- 40坪
- 4LDK
離れのような和室をニーズに合わせて活用、キッチンまわりに家事動線をまとめた家
-
- 33坪
- 4LDK
明るく風通しの良いLDK、家族とコミュニケーション増える廊下のない家
-
- 34坪
- 3LDK
老後まで過ごしやすい平屋風暮らし、1階に生活を集約した良いとこ取りの家
-
- 40坪
- 4LDK
キャンプも楽しめる広さの採光ベランダで、快適に布団やシーツが干せる家
-
- 33坪
- 2LDK
玄関からキッチンまでウォークスルーで繋ぐ、備蓄も可能な収納空間のある家
-
- 36坪
- 4LDK
リビング吹抜とオープン階段で広がる開放感、回遊動線でワンフロアが繋がる家
-
- 43坪
- 3LDK
家族が自然と家事に協力!水廻りへ直行のストレスフリーな裏動線のある家
-
- 32坪
- 2LDK
家族の気配を玄関吹抜から感じる、開放的な2階LDKでくつろぎ時間を過ごす家
-
- 41坪
- 3LDK
学びを促進する家族室でやる気モードON、気持ちが切り替えやすい空間工夫の家
-
- 39坪
- 4LDK
たっぷり収納で生活感ないリビングをキープ、緑や風を感じる外とつながる家
-
- 32坪
- 4LDK
家族が居場所を持ちつつ心地よく繋がる、キッチンからコミュニケーン取りやすい家
-
- 27坪〜30坪
- 1LDK
成長に合わせて空間を変更できる、フレキシブルな兼ねる部屋のある家
-
- 30坪
- 3LDK
ワンルーム空間の2階LDKで動線スムーズ、狭小な台形地を活かして暮らす家
-
- 71坪
- 6LDK
繋がる回遊動線で毎日が楽家事、キッチン裏の大収納でLDKの生活感を隠せる家
-
- 73坪
- 6LDK
プライベートとパブリックをしっかり両立、大きな中庭を臨む家中が明るいロの字の家
-
- 34坪
- 3LDK
きれいなリビングをキープできる帰宅動線と、視線が抜ける開放的な縦長の家
-
- 41坪
- 5LDK
家族と友人とおうちキャンプ楽しむ、裏動線でスッキリ整うおもてなし上手の家
-
- 34坪
- 2LDK
コンパクト動線で生活が楽になる、総二階を無駄なく活かした縦長地に建つ家
-
- 36坪
- 4LDK
南向き開口とダイニング吹抜で明るく開放的、真ん中デッキを囲むコの字型の家
-
- 36坪
- 2LDK
アウトドアもインドアも家族で休日楽しむ、多趣味でも整う収納上手な家
マドリー開発の『住宅営業支援ツール』
madreeデータバンク
マドリーの人気間取り4,800プランを接客・提案に活用できる営業支援ツール
- 競合他社と差がつく、スピード提案
- トレンド間取りで、集客・受注数UP
- 建築家のアイデアを参考に、質の高い提案ができる
