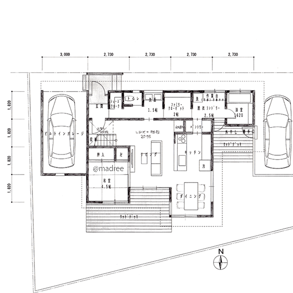
[39坪 4LDK] 外遊び後もすぐサッパリ!玄関からスムーズに浴室直行の家の間取り
全国の建築家から間取りが集まるmadree(マドリー)で集まった39坪、4LDKの間取りです。外とつながるLDKやアウトドアリビングが特徴の注文住宅の間取りです。
外遊び後もすぐサッパリ!玄関からスムーズに浴室直行の家はこのような方におすすめです
・共働き夫婦、子ども2人(長女5歳、長男2歳)
・趣味:外遊び、家でゆっくり過ごす
・それぞれが部屋に篭らず、リビングに自然と集まってくるようにしたい。
・スキップフロアでLDKの空間がリズムを持つようにしたい。
外遊び後もすぐサッパリ!玄関からスムーズに浴室直行の家の間取りアイデア
- 屋外で非日常感楽しむ
- 子どもが自由に遊べるスペース
- スキップフロアにスタディースペース
- ダイニング学習スペース
- 在宅ワークスーペース
- 見守るワークスペース
- 安心して遊べる庭
- プライバシー守る脱衣洗面室
- 身支度に便利な2ボウル洗面台
- 天気も視線も気にせず物干し
- 部屋干しスペースで家事効率UP
- アレルギーに配慮したランドリールーム
- 帰宅後即シャワーの動線
- 物をLDKに持ち込まない動線
- 片付けしながらの帰宅後動線
- 景観を損ねない部屋干しスペース
- 屋内外が繋がる回遊動線
- 風が抜ける窓の配置
- 家中を心地よく風が抜ける
- 大きな吹抜で採光確保
- 天窓/高窓から自然の光取り込む
- ウォークスルークローゼット
- 玄関近くのファミクロ
- 適所収納で使いやすく片付ける
- 隠せるパントリー
- 大人数に対応できるLDK
- 庭の緑に癒されるLDK
- 緩やかに区切られたLDK
- 来客対応しやすい客間配置
- 来客が気軽に宿泊できる
- 洗濯仕事が一箇所で完結
- シンプルな家事動線
- キッチン近くの水廻り動線
- 一列に並んだ水廻り
- 吹抜で家族が繋がる
全国対応になりました
建築家・デザイナー
からのコメント
【全体のコンセプト】
・家族が快適に過ごせる家。
■1階
・玄関からSICを通る裏動線を計画しました。
・キッチン横に、庭へ突き出すようにダイニングを配置しました。
・和室とダイニングの間のデッキは屋根付きで、中庭のように利用できます。
・脱衣室に、作業台と天吊り金物を備えました。勝手口から屋根付きウッドデッキへ出て外干しできます。
■中2階
・スキップフロアにサブリビングを配置しました。キッチンからも様子が確認できます。
・サブリビングの北側と南側にベランダを設けました。
■2階
・子ども室2部屋、主寝室、階段正面にホールとトイレを配置しました。
39坪 4LDK関連の間取り
マドリー開発の『住宅営業支援ツール』
madreeデータバンク
マドリーの人気間取り4,800プランを接客・提案に活用できる営業支援ツール
- 競合他社と差がつく、スピード提案
- トレンド間取りで、集客・受注数UP
- 建築家のアイデアを参考に、質の高い提案ができる









