[59坪 3LDK] 別棟で過ごす親子の丁度良い距離、庭を自由に行き来する犬部屋のある家の間取り
全国の建築家から間取りが集まるmadree(マドリー)で集まった59坪、3LDKの間取りです。リビング吹抜や広く感じるLDKが特徴の注文住宅の間取りです。
別棟で過ごす親子の丁度良い距離、庭を自由に行き来する犬部屋のある家はこのような方におすすめです
・夫:40代会社員、妻:50代専業主婦、社会人の子ども1人、犬3匹(中型犬1、小型犬2)
・趣味:ゴルフ、バイク、スノーボード
・リビングの近くに、庭から出入りできるペットルームを設けたい。
・木に囲まれた庭で、食事をしたり、犬を自由に走らせたい。
別棟で過ごす親子の丁度良い距離、庭を自由に行き来する犬部屋のある家の間取りアイデア
- 屋外で非日常感楽しむ
- ペットと快適に暮らす
- 趣味に夢中になれる部屋
- 思い出を飾るギャラリー
- 子どもが自由に遊べるスペース
- ダイニング学習スペース
- 在宅ワークスーペース
- 見守るワークスペース
- 安心して遊べる庭
- 家族を感じる書斎
- 篭れる書斎
- プライバシー守る脱衣洗面室
- 天気も視線も気にせず物干し
- 部屋干しスペースで家事効率UP
- 物をLDKに持ち込まない動線
- 片付けしながらの帰宅後動線
- 景観を損ねない部屋干しスペース
- 洗濯仕事が一箇所で完結
- キッチン近くの水廻り動線
- 一列に並んだ水廻り
- 屋内外が繋がる回遊動線
- キッチン中心の回遊動線
- 風が抜ける窓の配置
- 家中を心地よく風が抜ける
- 大きな吹抜で採光確保
- 天窓/高窓から自然の光取り込む
- 隠せるパントリー
- 大人数に対応できるLDK
- 庭の緑に癒されるLDK
- 緩やかに区切られたLDK
- 開口窓で開放的なリビング
- 薪ストーブのあるリビング
- 視線遮る玄関アプローチ
- 子どものプライベート守る個室の配置
- 適所収納で使いやすく片付ける
- 玄関近くの廊下に洗面カウンター
- 夫婦別に趣味の書斎室
- 廊下で繋がるプライベート空間
全国対応になりました
建築家・デザイナー
からのコメント
【全体のコンセプト】
・犬と暮らす家。
■建物配置
・建物を母屋と離れ(ガレージ+子ども部屋)に分け、それぞれを道路側とL型になるように配置しました。
・庭を横長に広く確保し、犬が走り回れるようにしました。
・母屋と離れの間を回廊として、空間に繋がりを持たせました。
・坪庭を2か所設け、家の中でも植栽を楽しめるようにしました。
■1階
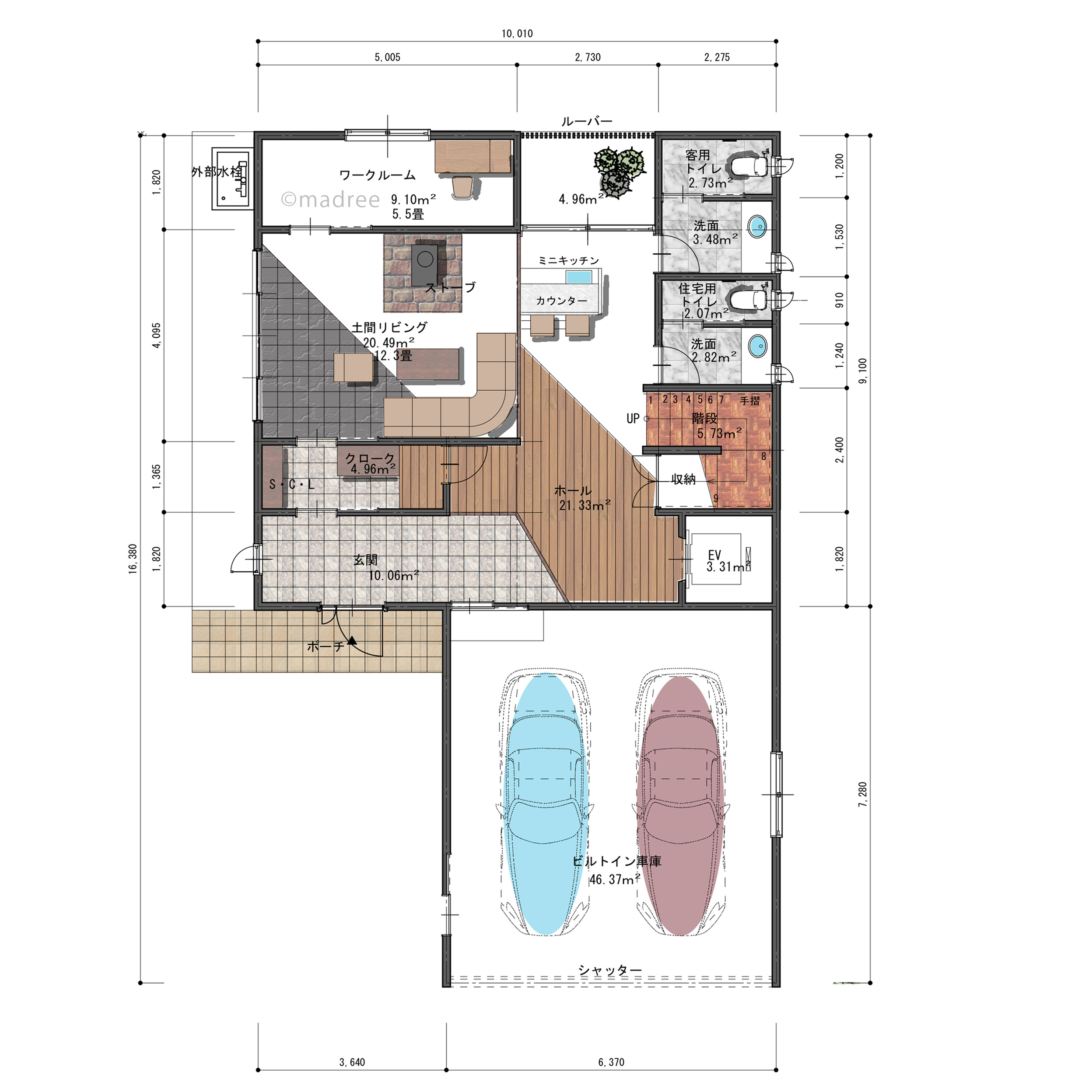
・玄関土間から庭とペットスペースへ繋がります。
・ペットの清掃に考慮して、土間にシンクを設けました。
・サニタリーは、部屋干しも考慮して広めに取りました。
・バスルームに大きな開口とウッドデッキを設置し、外へ出られるようにしました。
・ペットスペースを中心に、LDKが一体空間となります。
・状況に応じて仕切れるよう、ペットスペースに引き込み扉を設けました。
・プライバシーを考慮し、子ども部屋はガレージと一つの離れで計画しました。
・駐車スペース4台のうち、2台分とバイクスぺースをガレージ内に確保しています。
■2階
・寝室2部屋、トイレ、洗面だけの、最小限の広さで計画しました。
59坪 3LDK関連の間取り
マドリー開発の『住宅営業支援ツール』
madreeデータバンク
マドリーの人気間取り4,800プランを接客・提案に活用できる営業支援ツール
- 競合他社と差がつく、スピード提案
- トレンド間取りで、集客・受注数UP
- 建築家のアイデアを参考に、質の高い提案ができる









