[41坪 3LDK] キッチン中心にぐるっと回遊家事、デットスペースも大活用した機能的な家の間取り
全国の建築家から間取りが集まるmadree(マドリー)で集まった41坪、3LDKの間取りです。アウトドアリビングやリビング吹抜が特徴の注文住宅の間取りです。
キッチン中心にぐるっと回遊家事、デットスペースも大活用した機能的な家はこのような方におすすめです
・30代夫婦(自営業)、子ども2人
・趣味:音楽鑑賞、アウトドア
・仕事道具やアウトドア用品が多いので、外部収納が欲しい。
・子ども達が自分の物を片付けられるよう、帰宅後動線を充実させたい。
キッチン中心にぐるっと回遊家事、デットスペースも大活用した機能的な家の間取りアイデア
- 屋外で非日常感楽しむ
- 趣味に夢中になれる部屋
- 子どもが自由に遊べるスペース
- スキップフロアにスタディースペース
- ダイニング学習スペース
- 開放的なスタディースペース
- 在宅ワークスーペース
- 見守るワークスペース
- 安心して遊べる庭
- 家族を感じる書斎
- 篭れる書斎
- プライバシー守る脱衣洗面室
- 物をLDKに持ち込まない動線
- 片付けしながらの帰宅後動線
- バルコニーで楽々布団干し
- 景観を損ねない部屋干しスペース
- 洗濯仕事が一箇所で完結
- シンプルな家事動線
- 屋内外が繋がる回遊動線
- キッチン中心の回遊動線
- 風が抜ける窓の配置
- 家中を心地よく風が抜ける
- 大きな吹抜で採光確保
- 天窓/高窓から自然の光取り込む
- 吹抜で家族が繋がる
- 玄関近くのファミクロ
- 壁面収納で収納量確保
- 隠せるパントリー
- 大人数に対応できるLDK
- 庭の緑に癒されるLDK
- 緩やかに区切られたLDK
- 玄関近くの廊下に洗面カウンター
- 天気も視線も気にせず物干し
- 部屋干しスペースで家事効率UP
- キッチン近くの水廻り動線
- 一列に並んだ水廻り
- ON/OFFで生活空間を分ける
全国対応になりました
建築家・デザイナー
からのコメント
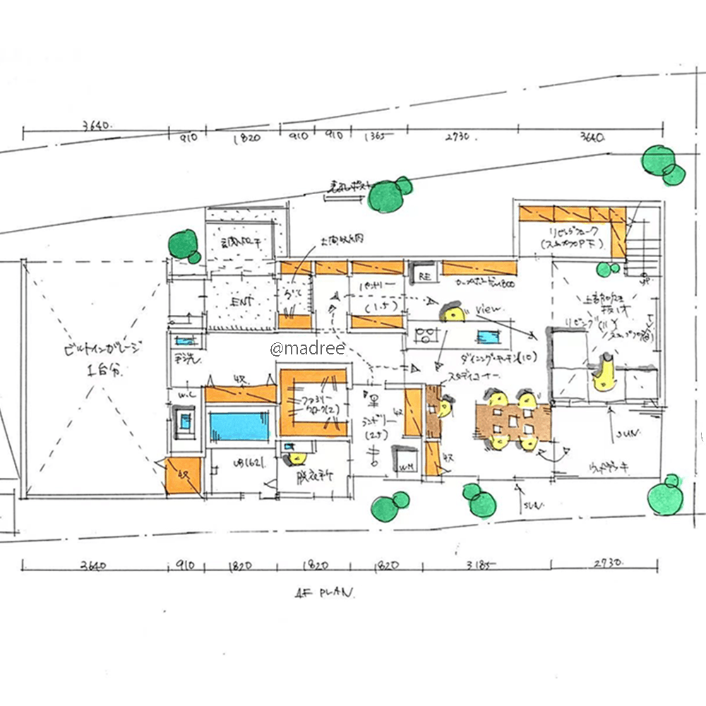
【こだわりのポイント】
◇1階
■外部
・敷地西側に屋外駐車スペース1台、ビルトインガレージ1台を確保しました。
・敷地の余白部分に外部収納を設け、趣味や仕事の収納など、用途や必要量に応じて収納量を調整できます。
・ビルトインガレージからは玄関へ直接アクセス可能です。
■玄関
・玄関上部はアルコーブ(雨除け)とし、雨の日でも濡れにくい設計としています。
・玄関入って左手には土間収納(SIC)を設け、ウォークスルーでパントリーやキッチンへ繋がります。
・玄関付近に洗面とトイレを設け、帰宅後に手洗いうがいがすぐできるようにしました。
■水廻り&ファミクロ
・洗濯→干す→収納までの家事動線を集約するために、それぞれのスペースを隣接させました。
・脱衣所の簡易的な洗面カウンターは、お風呂上りに髪の毛を乾かしたりと便利に使えます。
・ランドリーにも収納を確保し、着替えやタオル、日用品のストックなどを収納できます。
■LDK+スキップフロア(21帖)
・キッチンはペニンシュラ型を採用。キッチンから全体を見渡すことができます。
・キッチン右手にはウィークインできるパントリーを設け、買い置きの食材や非常食などを収納できます。
・リビング北面に、階段と空間の高さを工夫したスキップフロアを設けました。また、フロア下は、掃除用具や書籍や雑誌など、散らかりやすいものを一気に収納できるスペースとしました。
・リビング南には極力開口の広いサッシを採用し、南からの光を十分に取り入れます。南側はアパートなので、目線の合いにくいレベルの調整が必要となります。
◇2階
■子ども部屋(6帖・収納込み)
・各部屋を南に向け、日当たりの良い配置にしました。広くはないですが、機能的に使用できます。
■主寝室(8.8帖)&バルコニー&WIC(3.5帖) &書斎(2.3帖)
・クイーンやキングサイズのベッドを置いても十分な広さを確保しました。
・リビングから、バルコニーに直接出入りでき、上部は雨除け(アルコーブ)とすることで、雨に濡れにくい設計としています。
41坪 3LDK関連の間取り
マドリー開発の『住宅営業支援ツール』
madreeデータバンク
マドリーの人気間取り4,800プランを接客・提案に活用できる営業支援ツール
- 競合他社と差がつく、スピード提案
- トレンド間取りで、集客・受注数UP
- 建築家のアイデアを参考に、質の高い提案ができる









