[68坪 3LDK] ご近所感覚の心地良い距離感、家族それぞれが自由に過ごせる多世帯で住む家の間取り
全国の建築家から間取りが集まるmadree(マドリー)で集まった68坪、3LDKの間取りです。外とつながるLDKやアウトドアリビングが特徴の注文住宅の間取りです。
ご近所感覚の心地良い距離感、家族それぞれが自由に過ごせる多世帯で住む家はこのような方におすすめです
・共働き夫婦(妻産休中)、子ども2人(長男5歳、長女4ヶ月)+父76歳、母75歳、姉45歳
・趣味:ゴルフ、登山、サーフィン
・仕事に取り組みやすい書斎で、テレワークを行いたい。
・収納に困らないように、世帯ごとに納戸を設けたい。
ご近所感覚の心地良い距離感、家族それぞれが自由に過ごせる多世帯で住む家の間取りアイデア
- 屋外で非日常感楽しむ
- 子どもが自由に遊べるスペース
- ダイニング学習スペース
- 在宅ワークスーペース
- 見守るワークスペース
- 安心して遊べる庭
- 各階から快適なトイレ位置
- プライバシー守る脱衣洗面室
- 部屋干しスペースで家事効率UP
- 物をLDKに持ち込まない動線
- 片付けしながらの帰宅後動線
- バルコニーで楽々布団干し
- 景観を損ねない部屋干しスペース
- 洗濯仕事が一箇所で完結
- 一列に並んだ水廻り
- 屋内外が繋がる回遊動線
- キッチン中心の回遊動線
- 風が抜ける窓の配置
- 家中を心地よく風が抜ける
- 大きな吹抜で採光確保
- 天窓/高窓から自然の光取り込む
- ウォークスルークローゼット
- 部屋を繋ぐウォークインクローゼット
- 適所収納で使いやすく片付ける
- 隠せるパントリー
- 庭の緑に癒されるLDK
- 玄関近くの廊下に洗面カウンター
全国対応になりました
建築家・デザイナー
からのコメント
【全体のコンセプト】
・玄関ホールで繋がりを持つ家。
・湘南らしい広く開放的な二世帯住宅。
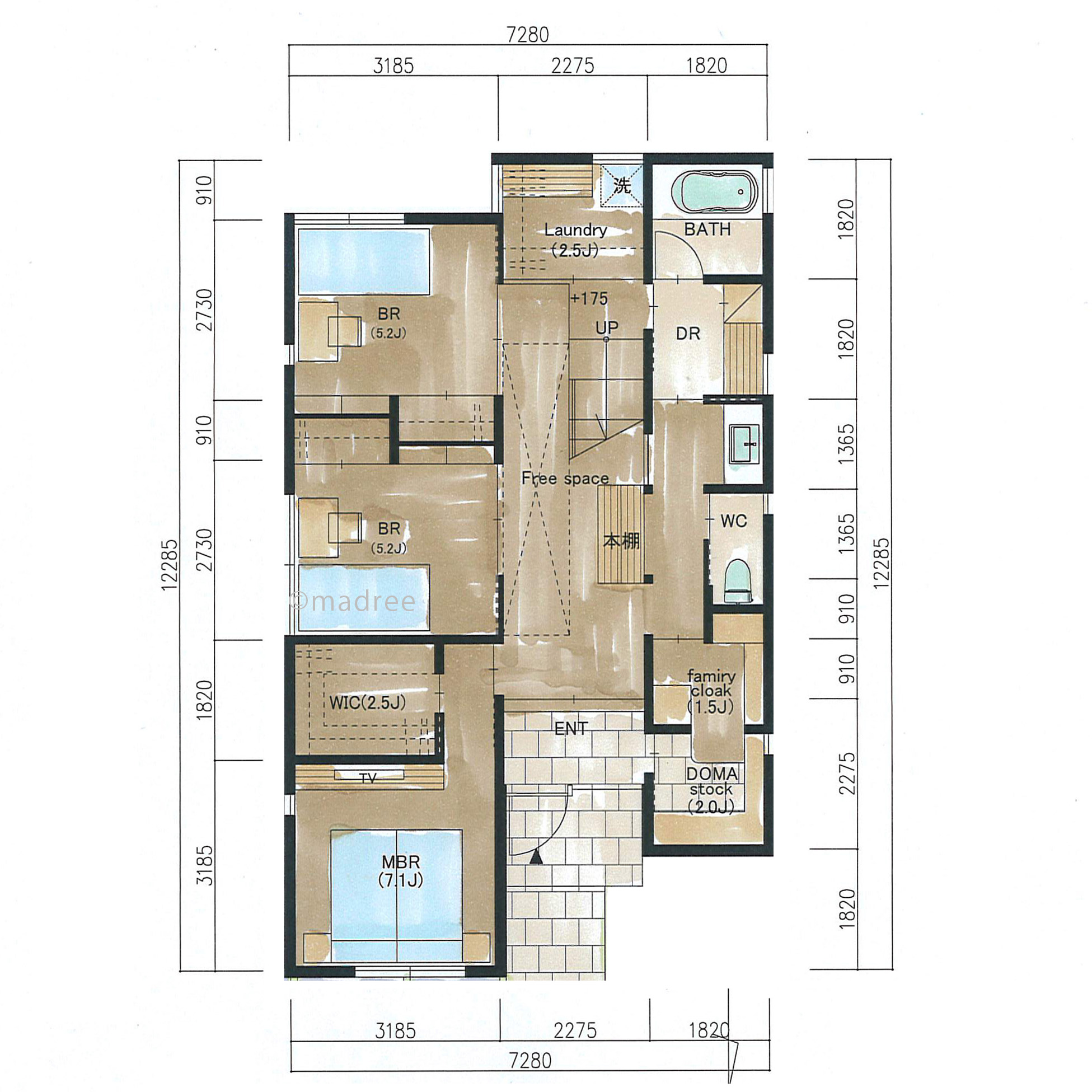
■1階:親世帯
・夫婦それぞれの部屋から、WICで行き来できるように配置しました。
・ダイニングを中心に、広いウッドデッキと繋がるゆとりある空間となっています。
・全体的に引き戸で計画し、高齢の方でも利用しやすくしました。
・パントリーや収納など、十分な収納量を確保しました。
■2階:子世帯
・1階に広めの玄関とホールを取る事により、部屋にゆとりを感じられます。
・吹抜とストリップ階段による、おしゃれな玄関となっています。
・階段下は基礎まで利用した倉庫として、外部から使用できます。
・玄関ホールの坪庭により豪華さを演出しています。
・洗面化粧室と脱衣ランドリーを分離して計画しました。
・ランドリールームは、室内干しができる十分な広さを確保しています。
・キッチンはペニンシュラタイプで、6人掛けのテーブルを並べての配置も可能です。
・ダイニングから、広い屋根付きのバルコニーに出られるようにしました。
・バルコニーは4人掛けのテーブルが余裕でおける広さです。
68坪 3LDK関連の間取り
マドリー開発の『住宅営業支援ツール』
madreeデータバンク
マドリーの人気間取り4,800プランを接客・提案に活用できる営業支援ツール
- 競合他社と差がつく、スピード提案
- トレンド間取りで、集客・受注数UP
- 建築家のアイデアを参考に、質の高い提案ができる









