[69坪 2LDK] 来客とプライベート動線が交わらないので安心、店舗付きの多世帯で住む家の間取り
全国の建築家から間取りが集まるmadree(マドリー)で集まった69坪、2LDKの間取りです。外とつながるLDKやアウトドアリビングが特徴の注文住宅の間取りです。
来客とプライベート動線が交わらないので安心、店舗付きの多世帯で住む家はこのような方におすすめです
・30代共働き夫婦、娘2歳+妻父:自営業、妻母:会社員、妻妹:会社員
・趣味:家で過ごす事、テレビ鑑賞、ネットサーフィン
・子世帯に、小さくていいのでアウトドアリビングを設けたい。
・親世帯に、仏壇を置くスペースを確保したい。
来客とプライベート動線が交わらないので安心、店舗付きの多世帯で住む家の間取りアイデア
- 屋外で非日常感楽しむ
- 趣味に夢中になれる部屋
- 思い出を飾るギャラリー
- 子どもが自由に遊べるスペース
- ダイニング学習スペース
- 在宅ワークスーペース
- 見守るワークスペース
- 各階から快適なトイレ位置
- プライバシー守る脱衣洗面室
- 身支度に便利な2ボウル洗面台
- 天気も視線も気にせず物干し
- 部屋干しスペースで家事効率UP
- 物をLDKに持ち込まない動線
- 片付けしながらの帰宅後動線
- バルコニーで楽々布団干し
- 景観を損ねない部屋干しスペース
- 洗濯仕事が一箇所で完結
- キッチン近くの水廻り動線
- 一列に並んだ水廻り
- 屋内外が繋がる回遊動線
- 風が抜ける窓の配置
- 家中を心地よく風が抜ける
- 目隠しルーバーで採光確保
- 天窓/高窓から自然の光取り込む
- 扉付きリビング階段で冷気対策
- ウォークスルークローゼット
- 部屋を繋ぐウォークインクローゼット
- 適所収納で使いやすく片付ける
- 壁面収納で収納量確保
- 片付けが苦手でもスッキリ魅せる
- 隠せるパントリー
- ステップダウンフロアでゆるく空間仕切る
- 庭の緑に癒されるLDK
- 来客対応しやすい客間配置
- 視線遮る玄関アプローチ
- 来客が気軽に宿泊できる
- 安心して遊べる庭
- アレルギーに配慮したランドリールーム
- 玄関近くの廊下に洗面カウンター
全国対応になりました
建築家・デザイナー
からのコメント
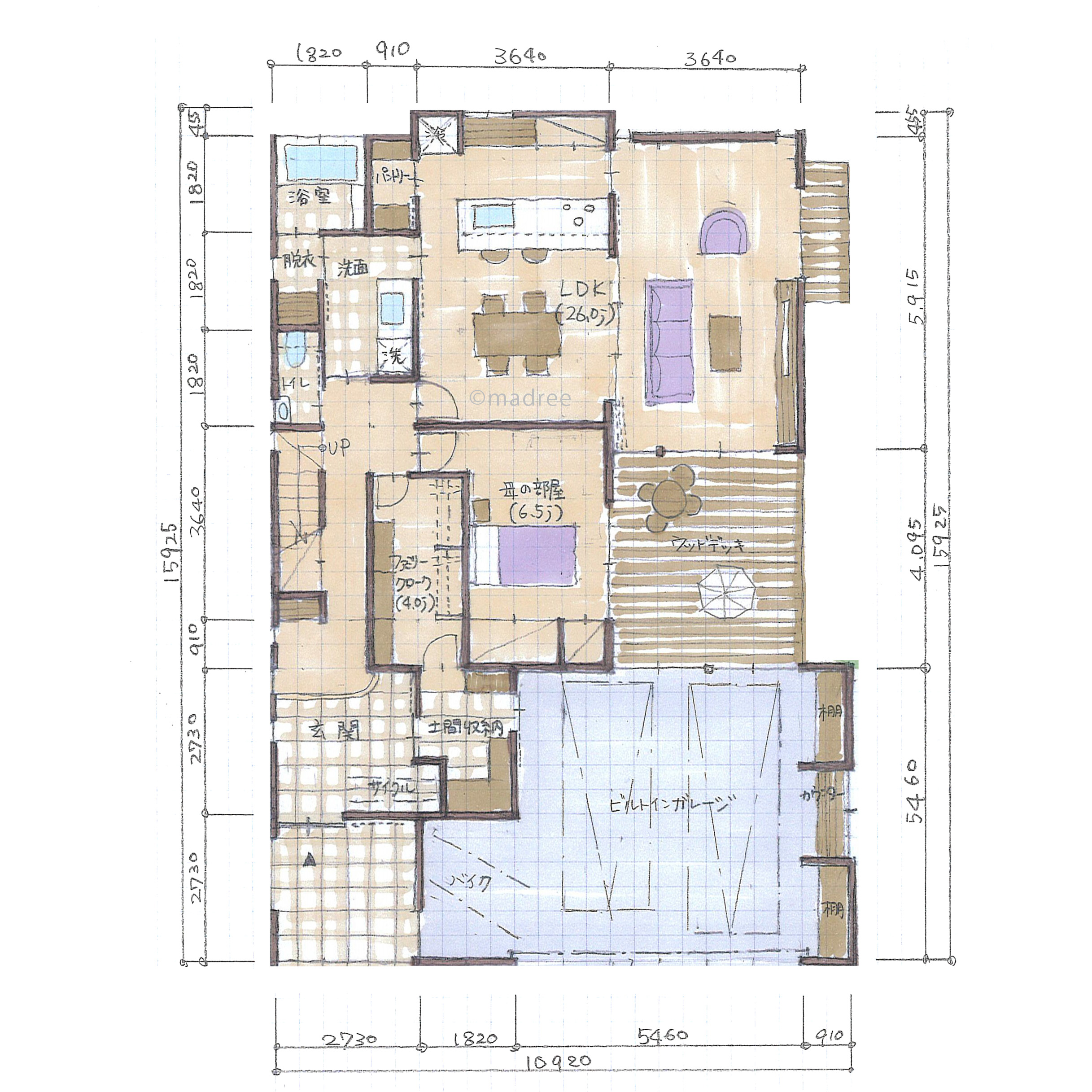
【全体のコンセプト】
・完全分離型の店舗付き二世帯住宅。
【こだわりのポイント】
■配置計画
・ 駐車スペースは、普通車3台、軽2台であれば5台駐車可能です。
■店舗/親世帯
【1階】
・店舗10畳、バックヤード3畳で計画しました。
・トイレは店舗住宅兼用とし、住宅の床より1段下げたポーチと同じ高さにしています。
・南側からのアプローチを進むと、奥まった位置に引き戸の玄関となります。
・玄関すぐに、ディスプレイもできる手洗いカウンターを設けました。
・SICは2.5畳でウォークスルーできるようにしました。
・LDKは14.7畳です。
・3畳の小上がり畳コーナーに、仏間スペースを確保しています。
・キッチンにパントリーを備えました。収納は減りますが、勝手口を取る事も可能です。
・リビングの前は屋根付きテラスとしています。
・水廻りは、洗面室と脱衣ランドリー室を分けて計画しました。
・洗面室から、トイレと店舗に抜けられるようになっています。
・洗面台は来客も利用しやすいよう、大型の洗面化粧台を設置できるようにしました。
・脱衣ランドリー室は3畳です。クローゼットを設けて、洗濯から収納まで一貫して行えるようにしました。
・浴室は1616です。
【2階】
・西側約半分が親世帯の寝室です。父母それぞれの寝室は、WICを挟んで繋がるようにしています。
・4.5畳の寝室を1室設けています。
・主寝室の南側に、布団干しにも使えるバルコニーを設置しています。
■子世帯
【2階】
・アプローチに屋根付きの外階段を設けて、玄関へ直接上がるようにしました。
・ポーチの左側に、外用納戸を2畳取っています。
・玄関ドアは引き戸で、玄関すぐに手洗いカウンターを設けています。
・SICは2畳の広さです。
・主寝室は7.5畳で、3畳のWICを確保しました。
・階段横にトイレと洗面台を配置しています。
【3階】
・階段上にホールを取り、冷暖房の無駄を防ぐためにドアを設けています。
・LDK、浴室、5畳の子ども室2室を配置しました。
・LDKは21.4畳で、6~8人用のダイニングテーブルも置ける広さです。
・ダイニングの目が届く所に、ワークスペースを確保しています。
・洗面室と脱衣室を分けて配置しました。
・トイレは洗面室から入る計画です。
・アウトドアリビングとして使える、屋根付きのバルコニーを広めに確保しました。
・眺めの良い事を活かしてガラスの手すりにすると、開放感が出るのでお勧めです。
69坪 2LDK関連の間取り
マドリー開発の『住宅営業支援ツール』
madreeデータバンク
マドリーの人気間取り4,800プランを接客・提案に活用できる営業支援ツール
- 競合他社と差がつく、スピード提案
- トレンド間取りで、集客・受注数UP
- 建築家のアイデアを参考に、質の高い提案ができる









