[59坪 5LDK] コの字で囲む癒しプライベート空間、あらゆる部屋から中庭の緑を感じられる家の間取り
全国の建築家から間取りが集まるmadree(マドリー)で集まった59坪、5LDKの間取りです。外とつながるLDKやアウトドアリビングが特徴の注文住宅の間取りです。
コの字で囲む癒しプライベート空間、あらゆる部屋から中庭の緑を感じられる家はこのような方におすすめです
・本人30代会社員(男性)、母60代、姉30代(認知症あり)
・趣味:園芸、銭湯、人形、車、バイク、動画、ボードゲーム
・防犯対策のため、玄関が道路から隠れないようにしたい。
・ガレージは趣味を楽しむスペースとして、その他の車は別にスペースを確保したい。
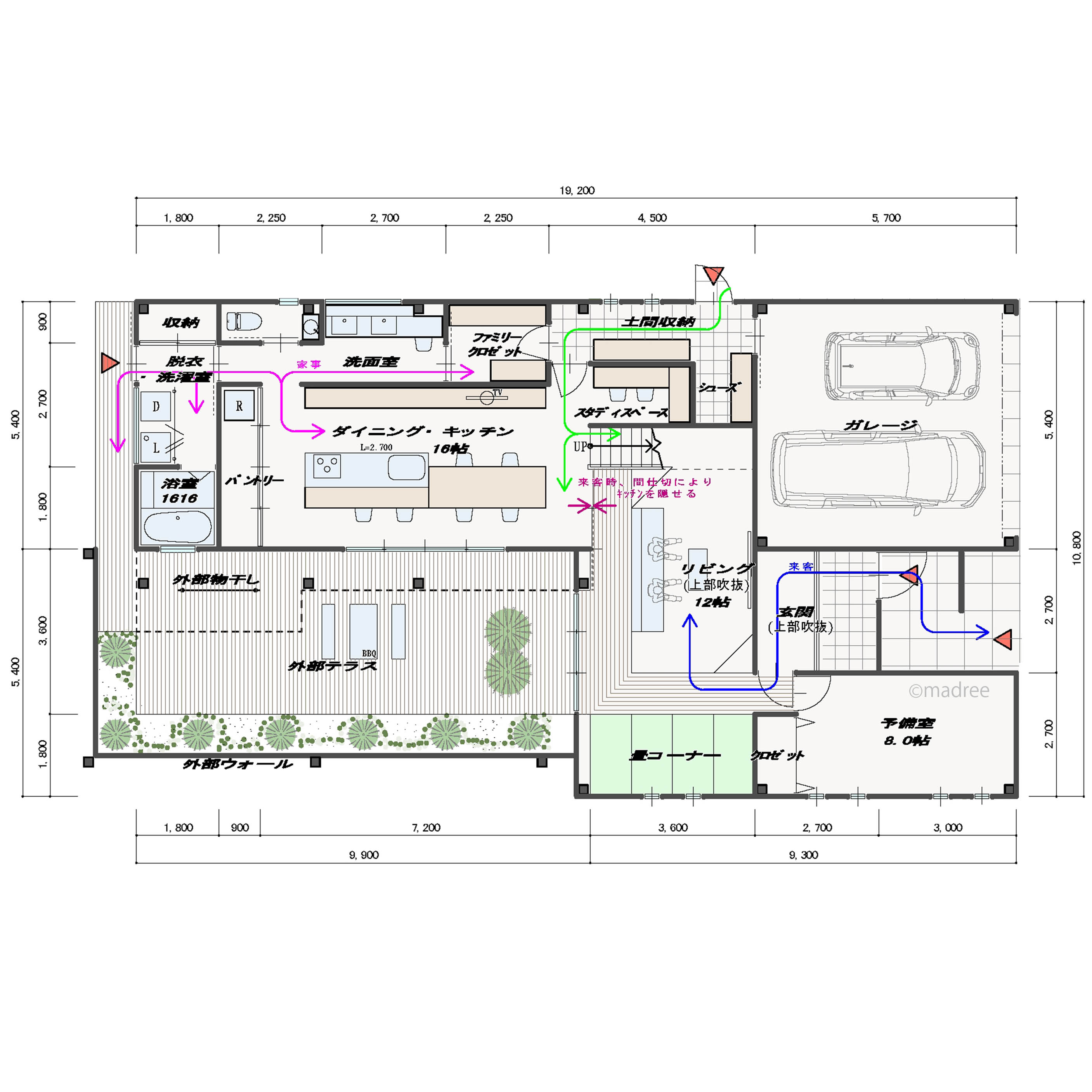
コの字で囲む癒しプライベート空間、あらゆる部屋から中庭の緑を感じられる家の間取りアイデア
- 屋外で非日常感楽しむ
- 趣味に夢中になれる部屋
- ダイニング学習スペース
- 見守るワークスペース
- 安心して遊べる庭
- 天気も視線も気にせず物干し
- 部屋干しスペースで家事効率UP
- アレルギーに配慮したランドリールーム
- 物をLDKに持ち込まない動線
- 片付けしながらの帰宅後動線
- バルコニーで楽々布団干し
- 景観を損ねない部屋干しスペース
- キッチン近くの水廻り動線
- 風が抜ける窓の配置
- 家中を心地よく風が抜ける
- 天窓/高窓から自然の光取り込む
- ウォークスルークローゼット
- 玄関近くのファミクロ
- 適所収納で使いやすく片付ける
- 片付けが苦手でもスッキリ魅せる
- まとめ買い安心大容量パントリー
- 隠せるパントリー
- 来客対応しやすい客間配置
- 土間の自転車/バイク置き場
- 来客が気軽に宿泊できる
全国対応になりました
建築家・デザイナー
からのコメント
【全体のコンセプト】
・趣味スペース充実できる家。
・自然を感じながら暮らすコの字型の家。
【こだわりのポイント】
■配置計画
・建物全体を北側に寄せ、南側にガレージなどの趣味のスペースを集約しました。
・建物をコの字型にする事で、あらゆる部屋から中庭のシンボルツリーが見えるようにしました。
■玄関
・玄関の東側に土間収納、西側にSICとFCLの裏動線を設けました。
■LDK
・南側の中庭に面して配置しました。
・リビングは小上がりの和室で、腰かけて中庭を眺める事もできます。
・キッチンの向かいにカウンター、背後に食器棚を設けました。
■個室1/母部屋
・1階で生活が完結できるように配慮しました。
・引き違い戸を開くと、廊下部分を縁側として使用でき、シンボルツリーを眺められます。
■個室2/趣味スペース
・ガレージや土間収納と隣接させて配置しました。
・南側に広く駐車スペースを取りました。
■サブリビング
・階段上にサブリビングを設けました。
・子どもの成長にあわせて、キッズスペースや子ども部屋としても利用できます。
■バルコニー
・サブリビングからアクセスできるようにしました。
・水栓、上部に庇を設けました。
■個室3
・サブリビングからアクセスできます。
59坪 5LDK関連の間取り
マドリー開発の『住宅営業支援ツール』
madreeデータバンク
マドリーの人気間取り4,800プランを接客・提案に活用できる営業支援ツール
- 競合他社と差がつく、スピード提案
- トレンド間取りで、集客・受注数UP
- 建築家のアイデアを参考に、質の高い提案ができる









