[47坪 2LDK] お互いに助け合える丁度良い距離感、将来を見据えた玄関共有の多世帯で住む家の間取り
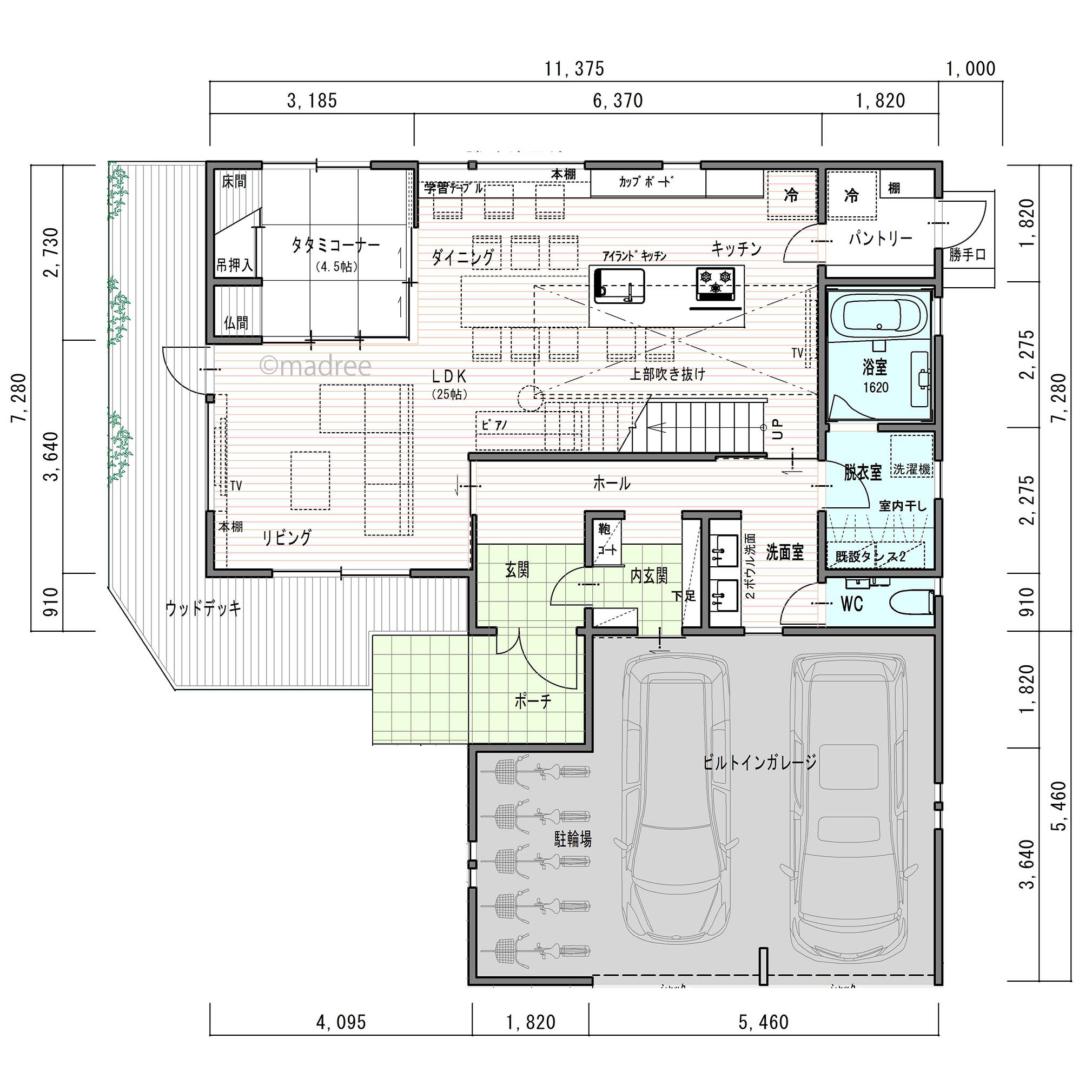
全国の建築家から間取りが集まるmadree(マドリー)で集まった47坪、2LDKの間取りです。外とつながるLDKやアウトドアリビングが特徴の注文住宅の間取りです。
お互いに助け合える丁度良い距離感、将来を見据えた玄関共有の多世帯で住む家はこのような方におすすめです
・30代共働き夫婦、子ども2歳+妻両親60代、妻妹35歳
・趣味:ゴルフ、自転車、旅行
・世帯で別々に洗濯をするので、それぞれに洗濯機と洗面台のスペースを確保したい。
・寝る時間帯が家族でばらばらなので、寝室に光が漏れないようにしたい。
お互いに助け合える丁度良い距離感、将来を見据えた玄関共有の多世帯で住む家の間取りアイデア
- 屋外で非日常感楽しむ
- 趣味に夢中になれる部屋
- 子どもが自由に遊べるスペース
- ダイニング学習スペース
- 在宅ワークスーペース
- 見守るワークスペース
- 安心して遊べる庭
- 家族を感じる書斎
- 篭れる書斎
- プライバシー守る脱衣洗面室
- テラスとしても過ごせるサンルーム
- 天気も視線も気にせず物干し
- 部屋干しスペースで家事効率UP
- 帰宅後即シャワーの動線
- 物をLDKに持ち込まない動線
- 片付けしながらの帰宅後動線
- バルコニーで楽々布団干し
- 景観を損ねない部屋干しスペース
- 洗濯仕事が一箇所で完結
- キッチン近くの水廻り動線
- 一列に並んだ水廻り
- 風が抜ける窓の配置
- 家中を心地よく風が抜ける
- 天窓/高窓から自然の光取り込む
- 廊下なしコンパクトな生活動線
- 適所収納で使いやすく片付ける
- 壁面収納で収納量確保
- 隠せるパントリー
- 庭の緑に癒されるLDK
- 緩やかに区切られたLDK
- 来客対応しやすい客間配置
- 視線遮る玄関アプローチ
- 来客が気軽に宿泊できる
- 子どものプライベート守る個室の配置
- 子ども部屋と繋がるリビング
全国対応になりました
建築家・デザイナー
からのコメント
【全体のコンセプト】
【こだわりのポイント】
■配置計画
・廊下を極力排除して、コストパフォーマンスの良い総2階で計画しました。
・敷地が広いので、南側の半分未満を建築用地として想定しました。残地は売却して建築資金に充てる事もできます。
■1階
・車椅子を利用する事を想定し、アプローチ、玄関、廊下などの通路幅を少し広めに計画しました。
・和室はリビングと繋げて利用でき、3枚の引き襖で仕切れるようにしました。
・妹部屋は、玄関ホールから直接出入りできる配置としました。
■2階
・水廻りとキッチンを回遊できるようにしました。
・寝室のWICは面積効率が悪いので、壁面CLで計画しました。
・寝室の一角にある書斎は、広幅の引き戸で明かりが漏れないようにしました。書斎をリビングから出入りする独立型にして、寝室と入れ替える事も可能です。
・子ども部屋を北側に配置しました。
47坪 2LDK関連の間取り
マドリー開発の『住宅営業支援ツール』
madreeデータバンク
マドリーの人気間取り4,800プランを接客・提案に活用できる営業支援ツール
- 競合他社と差がつく、スピード提案
- トレンド間取りで、集客・受注数UP
- 建築家のアイデアを参考に、質の高い提案ができる









