土地20坪〜30坪の間取り一覧
家族や自分の”好き”を叶える注文住宅の間取りが見つかる!暮らしの要望をもとに全国の建築家が作成した土地20坪〜30坪の間取りを86件公開しています。毎日更新中!
-
- 30坪
- 2LDK
洗面からランドリーまで一直線!ついで家事が捗る効率的な家
-
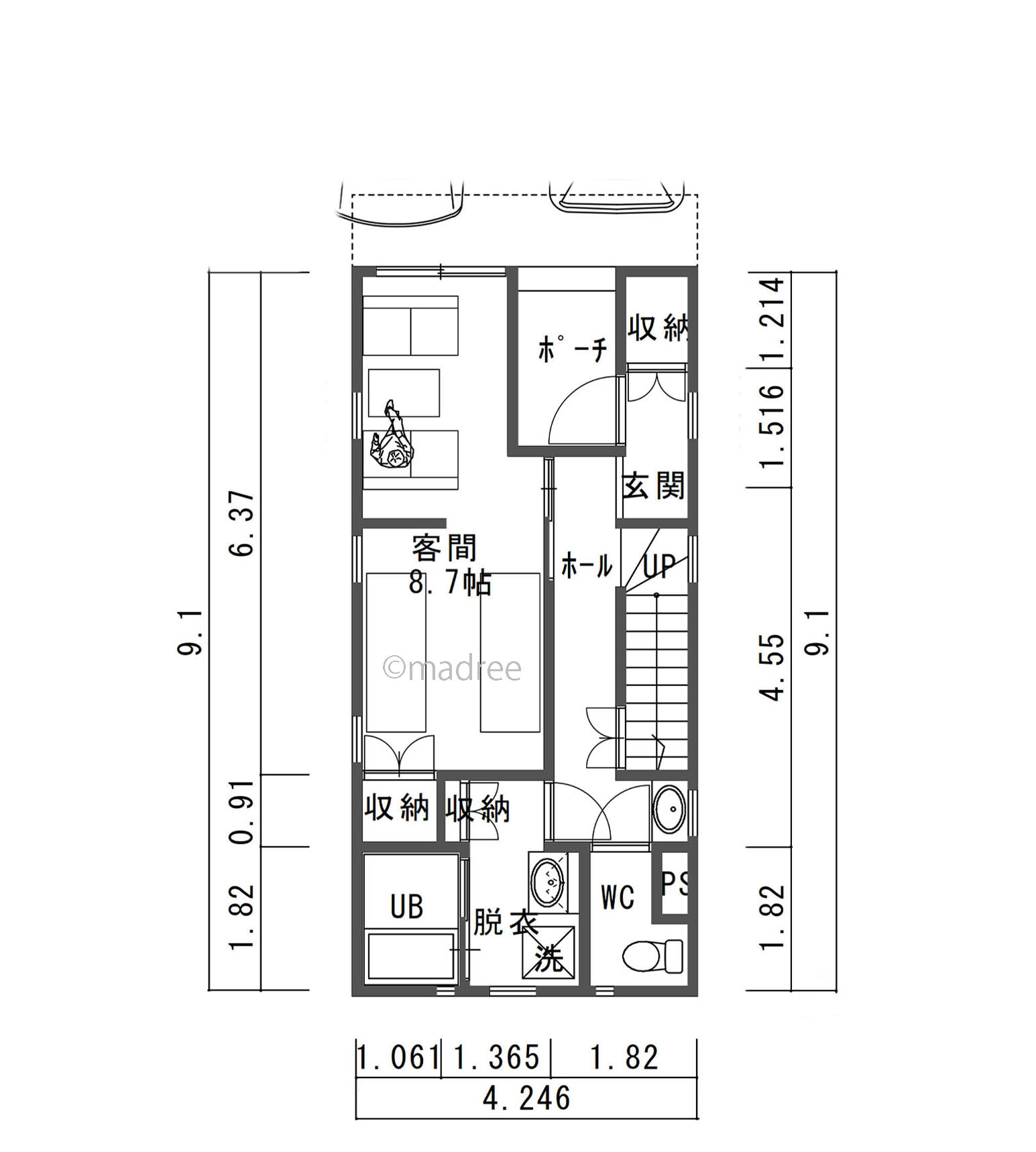
- 27坪
- 2LDK
光と風を取り込みプライバシーも守る、インナーバルコニーとつながる2階リビングの家
-
- 28坪
- 2LDK
コンパクトな水回りで家事ラク叶う、壁面収納で整う縦長狭小地の家
-
- 27坪
- 2LDK
朝日を浴びながら清々しい朝食を、心地良い自然光の入る横長の家
-
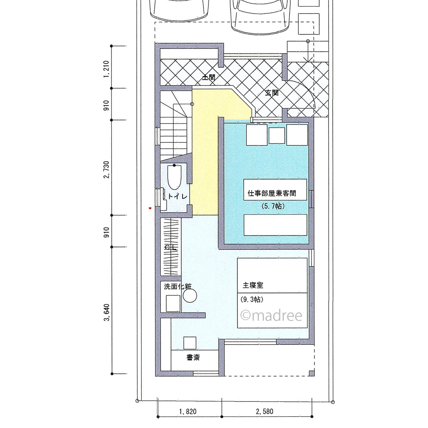
- 31坪
- 2LDK
壁面収納で広々空間にみせる、東西にのびる陽だまりリビングの家
-
- 40坪
- 4LDK
リビング階段や屋上のプライベート空間で、家族との会話を大切にする家
-
- 38坪
- 4LDK
空が見渡せるルーフバルコニーで憩いの時間を、ゲストルーム完備の3階建ての家
-
- 38坪
- 4LDK
ルーフバルコニーで家族団らん、ライフスタイルの幅が大きく広がる家
-
- 24坪~27坪
- 2LDK
心地良い光と風を呼び込む、小上り畳が家族の憩いの空間となる家
-
- 26坪
- 3LDK
おかえり動線で安心快適に過ごす、キッチンから家族見守る2階リビングの家
-
- 24坪
- 2LDK
キッチン近くの水回りで時短家事叶う、自然光が心地よい2階リビングの家
-
- 27坪〜30坪
- 2LDK
スマートな荷物運びと収納で、アウトドアの楽しさを広げる家
-
- 24坪~27坪
- 2LDK
シンプルな暮らしが叶うベーシックコンパクトで機能性のある間取り
-
- 25坪
- 2LDK
和室と繋げた開放感あるリビングとアイランドキッチンで家族が自然と集う間取り
-
- 24坪~27坪
- 2LDK
機能性高い空間をぎゅっとコンパクトに詰め込んだ日差しをたっぷり感じる家
-
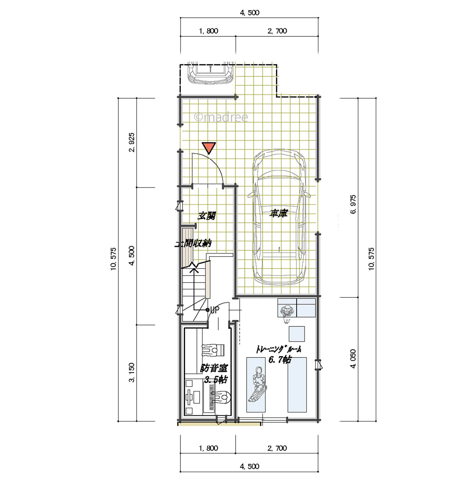
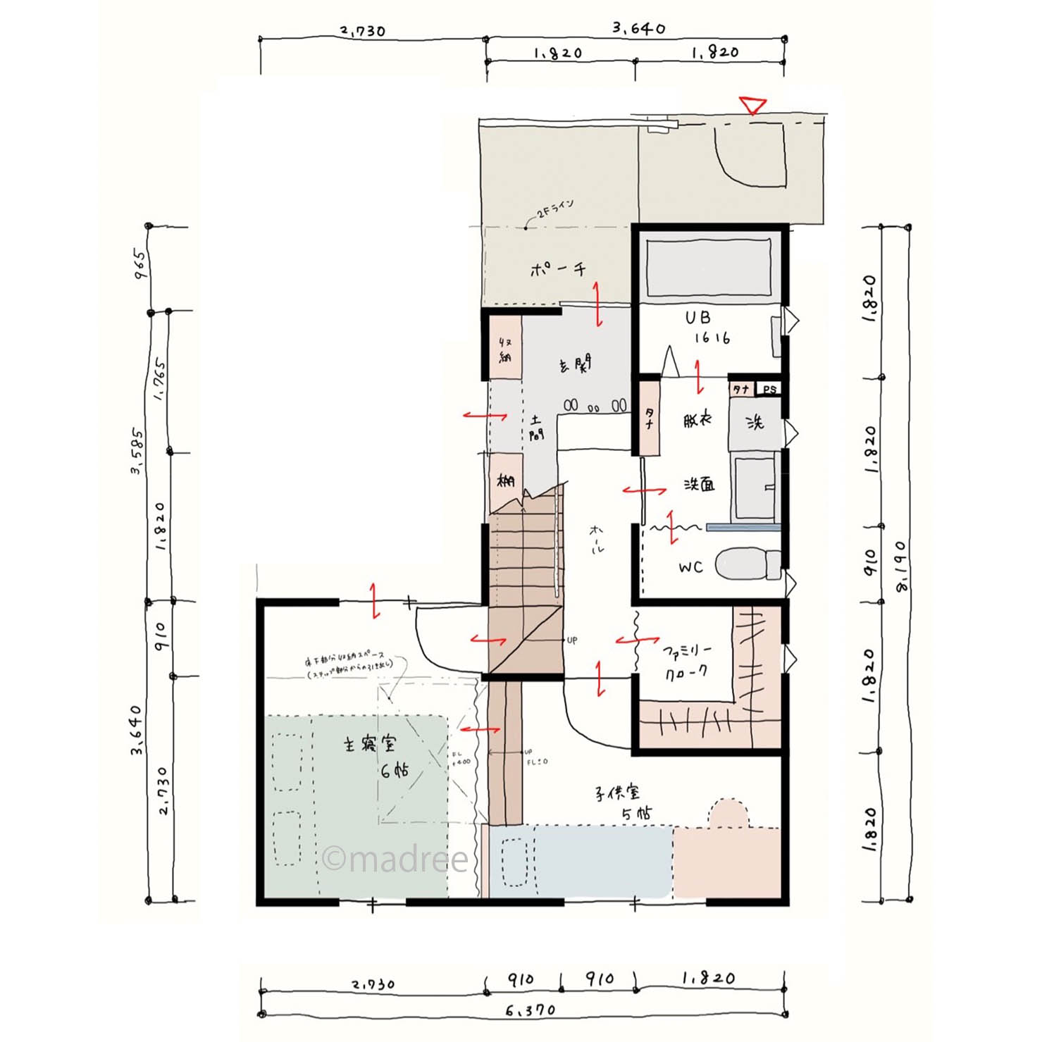
- 33坪~36坪
- 2LDK
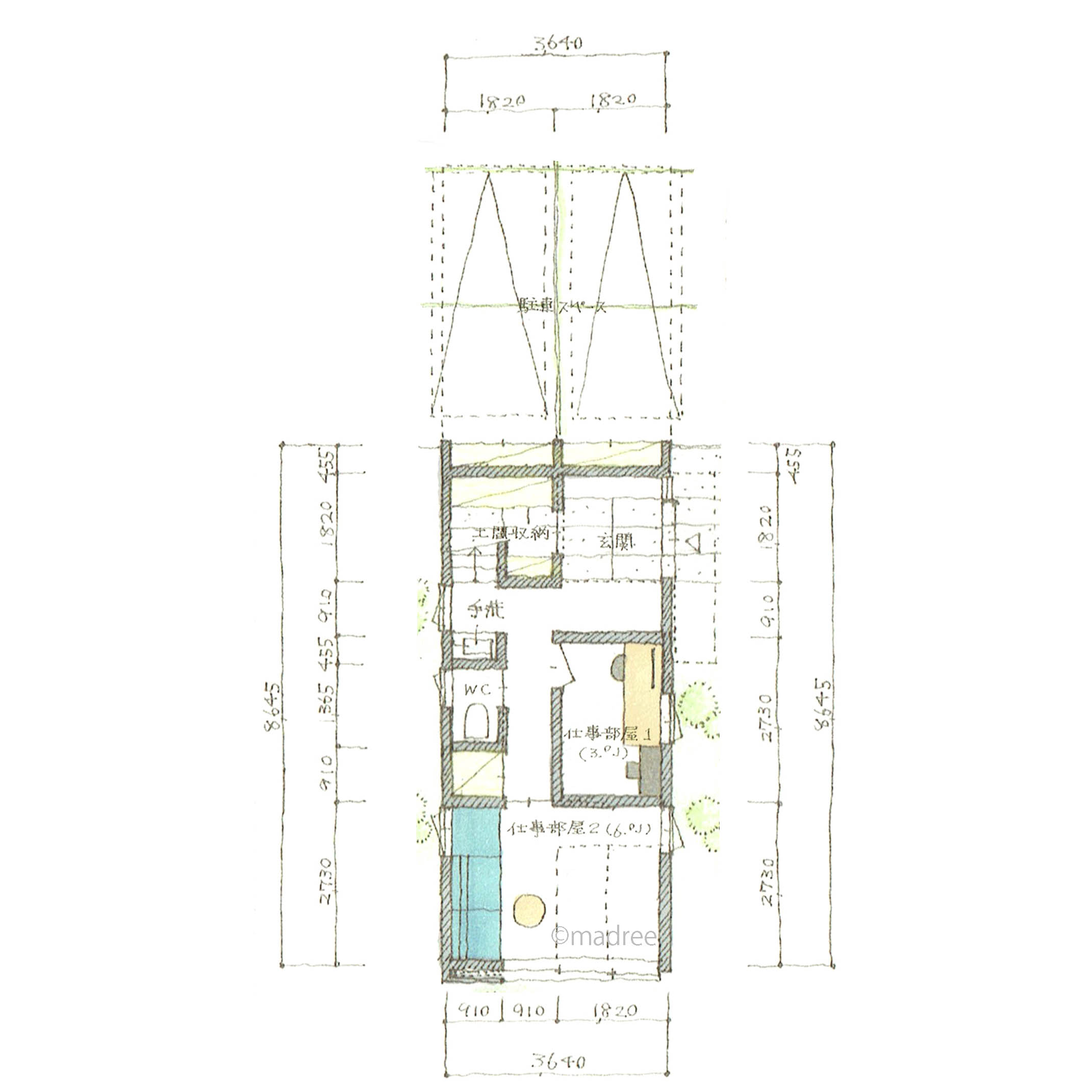
仕事もリラックスタイムも家事も暮らしにフィットしたフロア分けで快適な3階建ての家
-
- 36坪~39坪
- 3LDK
カフェライクなキッチンで来客対応も楽しめる!自宅サロンや屋上も完備で仕事も暮らしも充実する家
-
- 27坪〜30坪
- 3LDK
生活シーンに合わせたフロア配置で快適に過ごせる3階建ての家
-
- 24坪~27坪
- 2LDK
機能性高い暮らしやすさをコンパクトに詰め込んだ光が差し込む明るい家
-
- 33坪~36坪
- 4LDK
仕事も暮らしも快適に過ごせる屋上のある3階建ての間取り
-
- 30坪~33坪
- 3LDK
生活空間も仕事場も分けながら利便性高く光を取り込んだ明るい3階建の家
-
- 21坪〜24坪
- 2LDK
仕切りは少なくオープンに、魅せる暮らしを楽しむ家
-
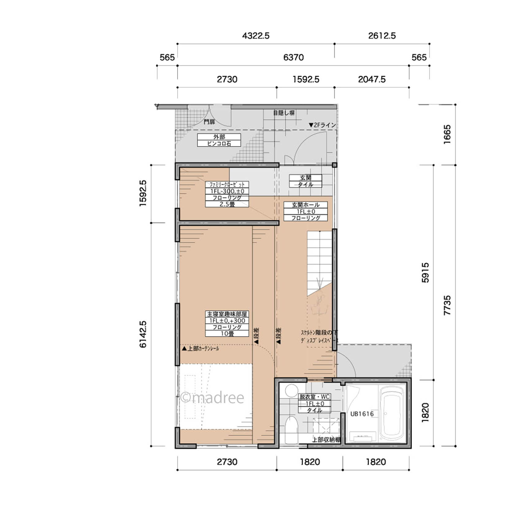
- 23坪
- 1LDK
スキップフロアで家全体がつながる、家族がいつも近くに感じられる家
-
- 23坪
- 2LDK
ベランダと吹抜で寝室が明るく広く感じるコンパクトな家
マドリー開発の『住宅営業支援ツール』
madreeデータバンク
マドリーの人気間取り4,800プランを接客・提案に活用できる営業支援ツール
- 競合他社と差がつく、スピード提案
- トレンド間取りで、集客・受注数UP
- 建築家のアイデアを参考に、質の高い提案ができる
