[21坪〜24坪 2LDK] 採光窓でどの部屋も明るく快適、空間を活用して狭小でも開放感と広がりのある家の間取り
全国の建築家から間取りが集まるmadree(マドリー)で集まった21坪〜24坪、2LDKの間取りです。外とつながるLDKや広く感じるLDKが特徴の注文住宅の間取りです。
採光窓でどの部屋も明るく快適、空間を活用して狭小でも開放感と広がりのある家はこのような方におすすめです
・共働き夫婦、長男3歳
・趣味:釣り
・週末に洗濯を何回もするので、外干しスペースと洗濯動線を充実させたい。
・夫婦で在宅ワークの機会が増えたので、それぞれが仕事をしやすく工夫したい。
採光窓でどの部屋も明るく快適、空間を活用して狭小でも開放感と広がりのある家の間取りアイデア
全国対応になりました
| 広さ | |
|---|---|
| 階数 | |
| 土地特徴 | |
| 部屋数 | |
| 家族人数 | |
| 特徴 | |
| 担当建築家・デザイナー |
建築家・デザイナー
からのコメント
【全体のコンセプト】
・狭小地でも開放感と広がりのある家。
【こだわりのポイント】
■全体配置
・敷地北側に建物を寄せ、南側からの採光を取り入れました。
・敷地南側に駐車場を1台分を確保しました。
・敷地東側の軒下に駐輪場スペースを設けました。
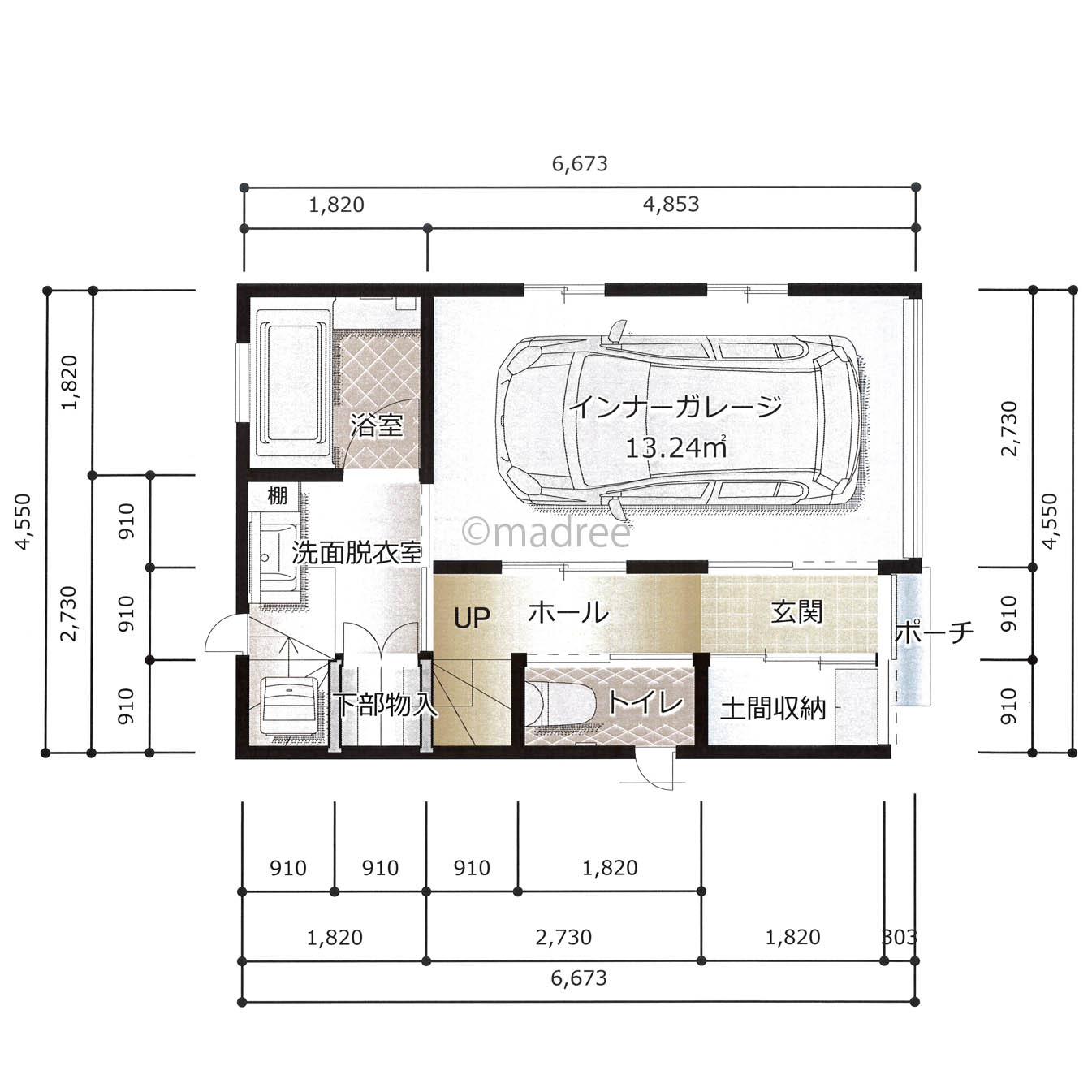
■1階
・道路から玄関が見えにくいよう、道路と直角に扉を設けました。シューズケースは長さ2mとたっぷり収納でき、コート掛けも併設しています。
・LDはサブリビングを含めて14.1帖です。南東にあるコーナー窓により開放的に感じられます。
・小さな庭に面して、出窓ベンチを設けました。
・キッチンからLDを見渡す事ができます。
・階段下をパントリーとして活用しました。
■2階
・寝室の南向きに窓を設け、採光に配慮しました。
・クローゼット、オープンクローゼット、オープン棚などの収納を設けました。
・独立した書斎には、デスクや棚がレイアウトできます。
・洗面室、浴室、便所に窓を設け、換気に配慮しました。
21坪〜24坪 2LDK関連の間取り
マドリー開発の『住宅営業支援ツール』
madreeデータバンク
マドリーの人気間取り4,800プランを接客・提案に活用できる営業支援ツール
- 競合他社と差がつく、スピード提案
- トレンド間取りで、集客・受注数UP
- 建築家のアイデアを参考に、質の高い提案ができる









