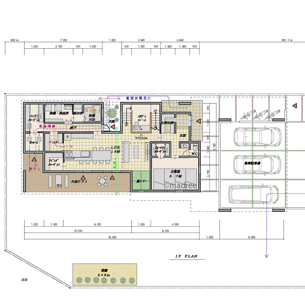
[42坪 3LDK] 坪庭から入れる汚れても安心な裏玄関、LDKを通らず浴室へ直行できる家の間取り
全国の建築家から間取りが集まるmadree(マドリー)で集まった42坪、3LDKの間取りです。外とつながるLDKやアウトドアリビングが特徴の注文住宅の間取りです。
坪庭から入れる汚れても安心な裏玄関、LDKを通らず浴室へ直行できる家はこのような方におすすめです
・30代共働き夫婦(妻育休中)、3兄弟(6歳、1歳、0歳)
・趣味:家族で外遊び、ネイル
・普段着用の洗濯機とは別に、泥だらけの作業機用洗濯機を置きたい。
・将来的に自宅でネイルサロンをするので、来客が行き来しやすい動線にしたい。
坪庭から入れる汚れても安心な裏玄関、LDKを通らず浴室へ直行できる家の間取りアイデア
- 屋外で非日常感楽しむ
- 子どもが自由に遊べるスペース
- スキップフロアにスタディースペース
- ダイニング学習スペース
- 開放的なスタディースペース
- 在宅ワークスーペース
- 見守るワークスペース
- 安心して遊べる庭
- プライバシー守る脱衣洗面室
- 天気も視線も気にせず物干し
- 部屋干しスペースで家事効率UP
- アレルギーに配慮したランドリールーム
- 物をLDKに持ち込まない動線
- 片付けしながらの帰宅後動線
- 景観を損ねない部屋干しスペース
- 洗濯仕事が一箇所で完結
- キッチン近くの水廻り動線
- 一列に並んだ水廻り
- 屋内外が繋がる回遊動線
- 風が抜ける窓の配置
- 家中を心地よく風が抜ける
- 天窓/高窓から自然の光取り込む
- ウォークスルークローゼット
- 適所収納で使いやすく片付ける
- 壁面収納で収納量確保
- 隠せるパントリー
- 大人数に対応できるLDK
- 庭の緑に癒されるLDK
- 緩やかに区切られたLDK
- 寝るだけの小さな子ども部屋
- 将来を見据えた1階主寝室
- 来客が気軽に宿泊できる
- 子どものプライベート守る個室の配置
- 光庭で家中を明るく
全国対応になりました
建築家・デザイナー
からのコメント
【全体のコンセプト】
・子育てや家事がしやすく、リビングに家族が集まれる家。
【こだわりのポイント】
■建物配置
・北西側に寄せて配置し、南側に庭、東側に駐車場を各々広く取りました。
・駐車場は緑化ブロックとしています。
■1階
・キッチンからの家事動線は短く計画しました。
・パントリー→廊下→洗濯室→FCL→サンルームと、まとめて配置しました。
・坪庭に勝手口を設け、 泥汚れをLDKに持ち込まず、浴室へ行けるようにしました。
・浴室横に坪庭を配置する事で、緑を望みながら入浴できます。
・坪庭は、リビングへの通風、スタディスペースへの採光を補助します。
・キッチンから、庭やスタディスペースを見渡す事ができます。
・スタディスペースはスキップフロアに配置しました。
・スキップフロア下部は収納にでき、天井は低くなりますが小物類は収納できます。
■2階
・子ども部屋3室を配置しています。
・東側の部屋は将来壁で間仕切り可能で、共同で使える大きなクローゼットを設けています。
・吹抜を設ける事で、下階の生活感が伝わってきます。
42坪 3LDK関連の間取り
マドリー開発の『住宅営業支援ツール』
madreeデータバンク
マドリーの人気間取り4,800プランを接客・提案に活用できる営業支援ツール
- 競合他社と差がつく、スピード提案
- トレンド間取りで、集客・受注数UP
- 建築家のアイデアを参考に、質の高い提案ができる









