[38坪 3LDK] 来客が多くても動線が交差しない、家族のプライバシーに配慮した縦長地の家の間取り
全国の建築家から間取りが集まるmadree(マドリー)で集まった38坪、3LDKの間取りです。バルコニーやカウンターキッチンが特徴の注文住宅の間取りです。
来客が多くても動線が交差しない、家族のプライバシーに配慮した縦長地の家はこのような方におすすめです
・夫30代:会社員、妻30代:専業主婦、長女9か月(子どもは2人の予定)
・趣味:読書、テレビ鑑賞、映画鑑賞
・近隣にある公園からプライバシーを守りたい。
・寝室から出られる場所にシーツや布団を干すためのバルコニーを設けたい。
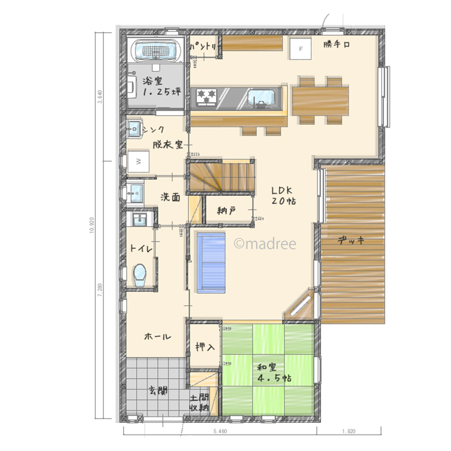
来客が多くても動線が交差しない、家族のプライバシーに配慮した縦長地の家の間取りアイデア
全国対応になりました
建築家・デザイナー
からのコメント
【 全体のコンセプト】
・日当たりの良い庭のある家。
【こだわりのポイント】
■1階
・2way動線、キッチンダイニングの並列という条件を優先しました。
・玄関から脱衣室への家族動線と、ホールからLDKへの動線を分けています。
・来客が多いとを考慮し、トイレと水廻りは動線が交差しないよう計画しました。
・東側に植栽や目隠し柵を立てる事で、プライバシーを確保しながら広いデッキを利用できます。
■2階
・寝室と子ども室の間に階段を挟んでプライバシーに配慮しました。
・広く日当たりの良いホールは、物干しやフリースペースとしても利用できます。
38坪 3LDK関連の間取り
マドリー開発の『住宅営業支援ツール』
madreeデータバンク
マドリーの人気間取り4,800プランを接客・提案に活用できる営業支援ツール
- 競合他社と差がつく、スピード提案
- トレンド間取りで、集客・受注数UP
- 建築家のアイデアを参考に、質の高い提案ができる









