[33坪 3LDK] 少し篭れる家族共有の趣味空間、中二階のワークスペースで家時間楽しむ家の間取り
全国の建築家から間取りが集まるmadree(マドリー)で集まった33坪、3LDKの間取りです。外とつながるLDKやアウトドアリビングが特徴の注文住宅の間取りです。
少し篭れる家族共有の趣味空間、中二階のワークスペースで家時間楽しむ家はこのような方におすすめです
・30代共働き夫婦(子ども1〜2人の予定)、デグーマウス2匹、犬を飼いたい
・趣味:DJ、料理、旅行
・掃除や家事が楽なように、家全体に段差を少なくしたい。
・趣味のDJを楽しめるように、中2階をDJブースにしたい。
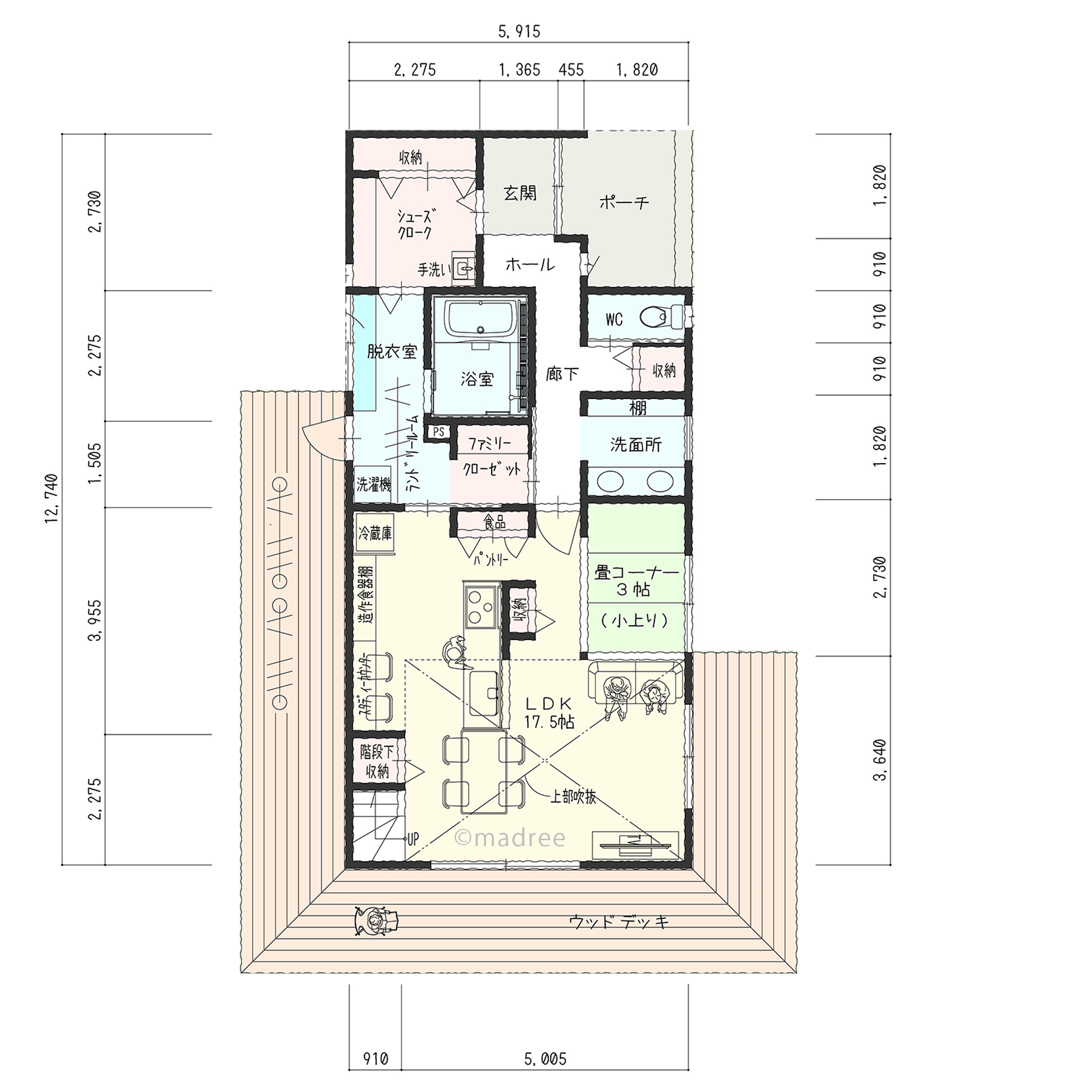
少し篭れる家族共有の趣味空間、中二階のワークスペースで家時間楽しむ家の間取りアイデア
- 屋外で非日常感楽しむ
- ペットと快適に暮らす
- 趣味に夢中になれる部屋
- 子どもが自由に遊べるスペース
- スキップフロアにスタディースペース
- ダイニング学習スペース
- 在宅ワークスーペース
- 見守るワークスペース
- プライバシー守る脱衣洗面室
- 物をLDKに持ち込まない動線
- 片付けしながらの帰宅後動線
- バルコニーで楽々布団干し
- 景観を損ねない部屋干しスペース
- キッチン近くの水廻り動線
- 一列に並んだ水廻り
- 回遊性のある水廻り
- 風が抜ける窓の配置
- 家中を心地よく風が抜ける
- 大きな吹抜で採光確保
- 天窓/高窓から自然の光取り込む
- 吹抜で家族が繋がる
- 隠せるパントリー
- 庭の緑に癒されるLDK
- 開口窓で開放的なリビング
- 来客対応しやすい客間配置
- 寝るだけの小さな子ども部屋
- 来客が気軽に宿泊できる
- ウッドデッキを家事用と家族用に分ける
全国対応になりました
建築家・デザイナー
からのコメント
【全体のコンセプト】
・コスパ最高を目指す家。
【こだわりのポイント】
・整形な建物形状とし、架構を単純に、面積効率の良い内部空間としました。
・建物の母屋はほぼ正方形のボリュームで、玄関+ルーフデッキのみ張り出す形状としました。
・LDKはプライバシーを考慮して、南側窓は採光用のスリット窓とし吹抜を設けました。
・2階個室は屋根勾配をそのまま天井にしたロフト状で、建物階高を抑えて高いCPを図ります。
・FCL上の中2階は、階段下収納からDJ機材を出し、DJスペースとしても利用できるようにしました。
・キッチン、水廻り、FCLまでの動線を短く回遊できるようにして、家事動線の合理化を図りました。
・2階にBBQや布団干しなど、多目的に利用できる広めのルーフデッキを設けました。
33坪 3LDK関連の間取り
マドリー開発の『住宅営業支援ツール』
madreeデータバンク
マドリーの人気間取り4,800プランを接客・提案に活用できる営業支援ツール
- 競合他社と差がつく、スピード提案
- トレンド間取りで、集客・受注数UP
- 建築家のアイデアを参考に、質の高い提案ができる









