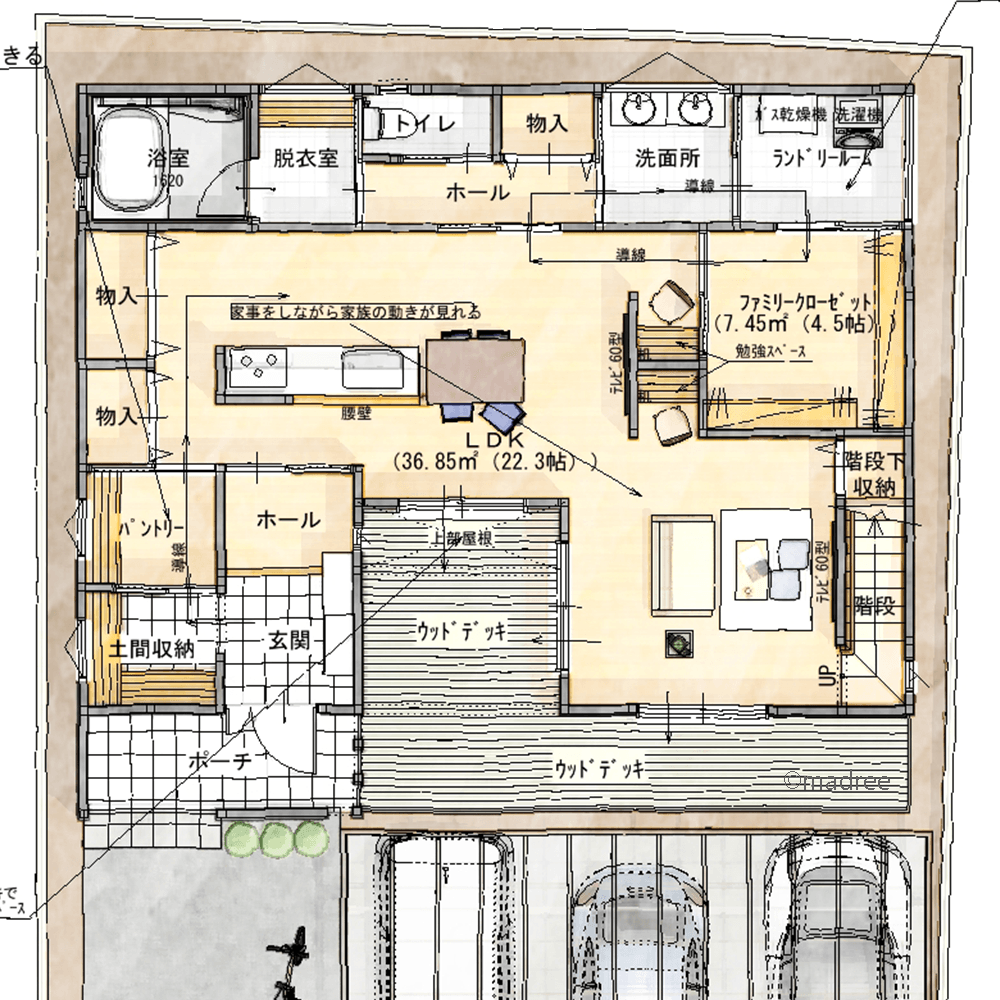
[42坪 3LDK] 自然と片付く複数の回遊動線、キッチンから最短距離で無駄なく家事を結ぶ家の間取り
全国の建築家から間取りが集まるmadree(マドリー)で集まった42坪、3LDKの間取りです。外とつながるLDKやアウトドアリビングが特徴の注文住宅の間取りです。
自然と片付く複数の回遊動線、キッチンから最短距離で無駄なく家事を結ぶ家はこのような方におすすめです
・共働き夫婦、子ども2人(長女6歳、長男3歳)
・趣味:家でゆっくり過ごすこと
・ランドリールームにガス乾燥機を設置して、室内干しで完結したい。
・見せる収納ではなく、生活必需品はなるべく見えないように収納したい。
自然と片付く複数の回遊動線、キッチンから最短距離で無駄なく家事を結ぶ家の間取りアイデア
- 屋外で非日常感楽しむ
- 子どもが自由に遊べるスペース
- ダイニング学習スペース
- 在宅ワークスーペース
- 見守るワークスペース
- プライバシー守る脱衣洗面室
- 身支度に便利な2ボウル洗面台
- 天気も視線も気にせず物干し
- 部屋干しスペースで家事効率UP
- アレルギーに配慮したランドリールーム
- 物をLDKに持ち込まない動線
- 片付けしながらの帰宅後動線
- バルコニーで楽々布団干し
- 景観を損ねない部屋干しスペース
- 洗濯仕事が一箇所で完結
- 一列に並んだ水廻り
- 回遊性のある水廻り
- 屋内外が繋がる回遊動線
- キッチン中心の回遊動線
- 風が抜ける窓の配置
- 家中を心地よく風が抜ける
- 天窓/高窓から自然の光取り込む
- ウォークスルークローゼット
- 適所収納で使いやすく片付ける
- 壁面収納で収納量確保
- 隠せるパントリー
- 緩やかに区切られたLDK
- キッチン近くの水廻り動線
- 子どものプライベート守る個室の配置
全国対応になりました
建築家・デザイナー
からのコメント
【全体のコンセプト】
・収納がたくさんある、自由度の高い動線の家。
【こだわりのポイント】
■1階
・キッチンからの視野を広くするため、アイランド風の配置としました。
・キッチン向きのテレビの壁裏にワークスペースを設け、多目的に利用できるようにしました。圧迫感を感じる場合は、机の上部を開けて光と風が通るようにもできます。
・ウッドデッキへのアクセスに、窓を3か所設置しました。光と風を十分に取り入れる事ができ、間取り以上に広さを感じられます。
・玄関→土間収納→パントリー→キッチンへの動線を最短距離とする事で、無駄のない家事ができます。
・浴室は広めでゆったりと利用できます。
・水廻りの家事動線は、使いやすいように直線状で配置しました。
■2階
・階段上がってすぐにバルコニーとしています。一部屋根が掛かっていますが、全て屋根にする事も可能です。
・1階の気配を感じれるように、バルコニーからウッドデッキを見下ろせるようにしました。
・各居室は使いやすいように四角くまとめました。
42坪 3LDK関連の間取り
マドリー開発の『住宅営業支援ツール』
madreeデータバンク
マドリーの人気間取り4,800プランを接客・提案に活用できる営業支援ツール
- 競合他社と差がつく、スピード提案
- トレンド間取りで、集客・受注数UP
- 建築家のアイデアを参考に、質の高い提案ができる









