[45坪 4LDK] 2階バルコニーで眺望と会話楽しむ、プライベート空間が2つの主寝室を繋ぐ家の間取り
全国の建築家から間取りが集まるmadree(マドリー)で集まった45坪、4LDKの間取りです。外とつながるLDKやアウトドアリビングが特徴の注文住宅の間取りです。
2階バルコニーで眺望と会話楽しむ、プライベート空間が2つの主寝室を繋ぐ家はこのような方におすすめです
・30代共働き夫婦、2人兄弟(4歳、9ヶ月)
・趣味:バスケ、ジム、ランニング、日帰り温泉、テレビ鑑賞、工作
・ルンバがスムーズに動けるように、段差のない部屋にしたい。
・ 夫が一人っ子なので、念のため仏間スペースを確保しておきたい。
2階バルコニーで眺望と会話楽しむ、プライベート空間が2つの主寝室を繋ぐ家の間取りアイデア
- 屋外で非日常感楽しむ
- 趣味に夢中になれる部屋
- 子どもが自由に遊べるスペース
- ダイニング学習スペース
- 開放的なスタディースペース
- 在宅ワークスーペース
- 安心して遊べる庭
- 家族を感じる書斎
- 篭れる書斎
- プライバシー守る脱衣洗面室
- 天気も視線も気にせず物干し
- 物をLDKに持ち込まない動線
- 片付けしながらの帰宅後動線
- バルコニーで楽々布団干し
- 景観を損ねない部屋干しスペース
- 屋内外が繋がる回遊動線
- 風が抜ける窓の配置
- 家中を心地よく風が抜ける
- 大きな吹抜で採光確保
- 天窓/高窓から自然の光取り込む
- 吹抜で家族が繋がる
- ウォークスルークローゼット
- 適所収納で使いやすく片付ける
- 壁面収納で収納量確保
- 片付けが苦手でもスッキリ魅せる
- 隠せるパントリー
- 庭の緑に癒されるLDK
- 緩やかに区切られたLDK
- 来客対応しやすい客間配置
- 来客が気軽に宿泊できる
- 玄関近くの廊下に洗面カウンター
全国対応になりました
建築家・デザイナー
からのコメント
【全体のコンセプト】
・高低差のある北側道路の家。
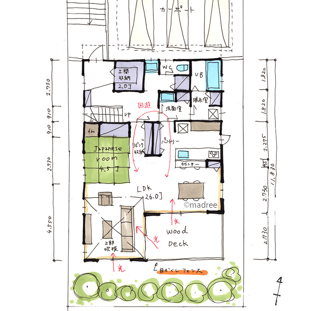
■1階
・車庫スペースは車3台分を確保し、道路から階段を上がると玄関に繋がります。
・玄関を入ると広めのホールがあり、階段とホールが繋がっているので開放感があります。
・土間収納は大容量なので、アウトドア用品やベビーカーも楽に収納可能です。
・ホールを進むとトイレと独立した手洗いがあり、トイレ使用後も帰宅時にも利用できます。
・洗面室と脱衣室は分けて配置しました。洗面室からはキッチンへも移動可能な2wayとなっています。
・リビング収納と和室の奥にLDを配置しました。
・来客時から見えにくいキッチンでも、存在は感じられるようなレイアウトとしています。
・キッチンから洗面室へも行けるので、グルグルと回遊して家事が楽に行えます。
・リビング上部に吹抜がある事で、光が明るく差し込み、大空間の心地の良い空間となります。
・LDで囲むようにウッドデッキを配置し、LDKの延長として利用できる空間としました。
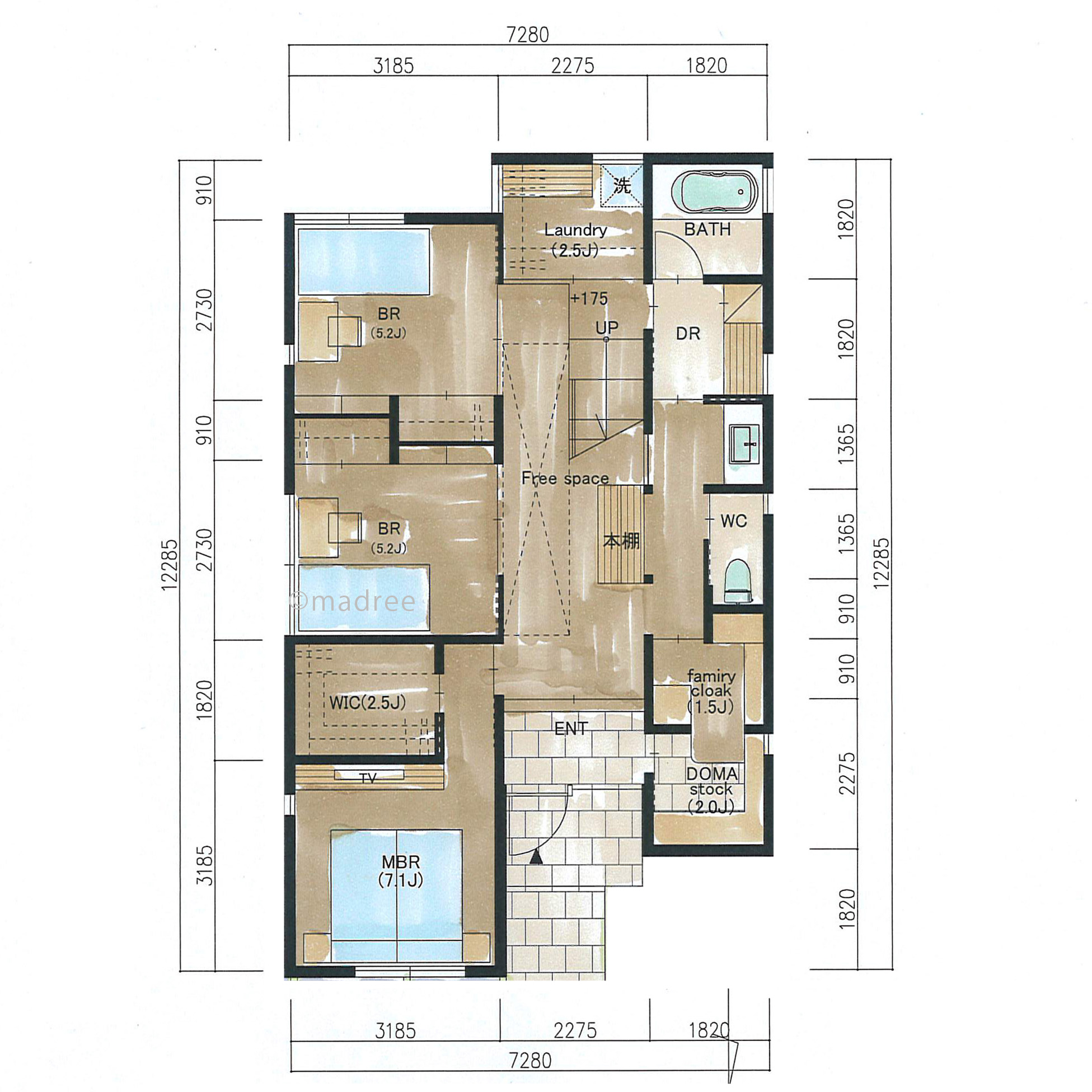
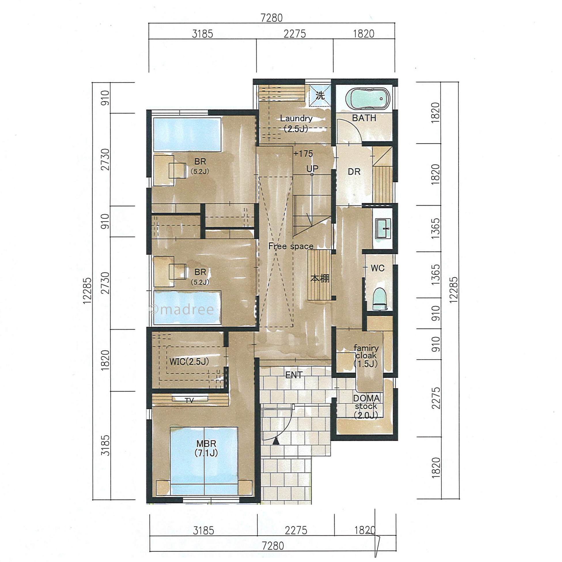
■2階
・3部屋設けました。
・南側は将来2部屋に分けることのできる子ども部屋、北側は夫婦それぞれの部屋となっています。
・南側に洗濯用のバルコニーを設け、その手前を家族用のウォークスルークローゼットとしました。洗濯を干してそのまま収納をする事ができます。カウンターを設置して家事スペースとしても利用できます。
・夫婦の部屋の間にバルコニーを設けました。休みの日などは海を見ながらブランチ、夜はお酒を飲みながら話したりできる眺望を楽しむバルコニーとしています。
45坪 4LDK関連の間取り
マドリー開発の『住宅営業支援ツール』
madreeデータバンク
マドリーの人気間取り4,800プランを接客・提案に活用できる営業支援ツール
- 競合他社と差がつく、スピード提案
- トレンド間取りで、集客・受注数UP
- 建築家のアイデアを参考に、質の高い提案ができる









