[37坪 4LDK] 家族を感じる安心の距離感、ストレスなく過ごせる介助介護動線のある家の間取り
全国の建築家から間取りが集まるmadree(マドリー)で集まった37坪、4LDKの間取りです。外とつながるLDKや広く感じるLDKが特徴の注文住宅の間取りです。
家族を感じる安心の距離感、ストレスなく過ごせる介助介護動線のある家はこのような方におすすめです
・40代共働き夫婦、2人姉妹(6歳、5歳)、犬(ジャックラッセルテリア)
・建て替え後、妻側の祖母(92歳)、母(70歳)、猫(チンチラ)と同居予定。
・趣味:オートキャンプ、読書、料理、お皿収集
・女性が多い家族になるので、並んで身支度できる広さの洗面台にしたい。
・祖母のプライバシーも確保したいが、孤立しないようにしたい。
家族を感じる安心の距離感、ストレスなく過ごせる介助介護動線のある家の間取りアイデア
- 屋外で非日常感楽しむ
- ペットと快適に暮らす
- 子どもが自由に遊べるスペース
- ダイニング学習スペース
- 開放的なスタディースペース
- 在宅ワークスーペース
- 見守るワークスペース
- 安心して遊べる庭
- プライバシー守る脱衣洗面室
- 天気も視線も気にせず物干し
- 部屋干しスペースで家事効率UP
- アレルギーに配慮したランドリールーム
- 物をLDKに持ち込まない動線
- 片付けしながらの帰宅後動線
- バルコニーで楽々布団干し
- 景観を損ねない部屋干しスペース
- 洗濯仕事が一箇所で完結
- キッチン近くの水廻り動線
- 一列に並んだ水廻り
- 屋内外が繋がる回遊動線
- 風が抜ける窓の配置
- 家中を心地よく風が抜ける
- 天窓/高窓から自然の光取り込む
- ウォークスルークローゼット
- 部屋を繋ぐウォークインクローゼット
- 適所収納で使いやすく片付ける
- まとめ買い安心大容量パントリー
- 隠せるパントリー
- 大人数に対応できるLDK
- 庭の緑に癒されるLDK
- 緩やかに区切られたLDK
- 開口窓で開放的なリビング
- 視線遮る玄関アプローチ
- 寝るだけの小さな子ども部屋
- 玄関近くの廊下に洗面カウンター
全国対応になりました
建築家・デザイナー
からのコメント
【全体のコンセプト】
・一年を通して心地よい家。
【こだわりのポイント】
■敷地
・建物の形状をできるだけ東西に長くして、南道路からの明るさを確保しました。
・敷地が道路より少し上がっている事を考慮し、車庫からポーチへは一度道路に出るようにしました。
・エントランスまでのアプローチに屋根を掛け、雨の日もストレス無く誘導できるようにしました。
■1階
・エントランスの中に、キャンプ道具などを収納できる土間収納を設けました。
・土間収納からの裏動線にあるクロークに、コート、ランドセル、帽子などを収納できます。
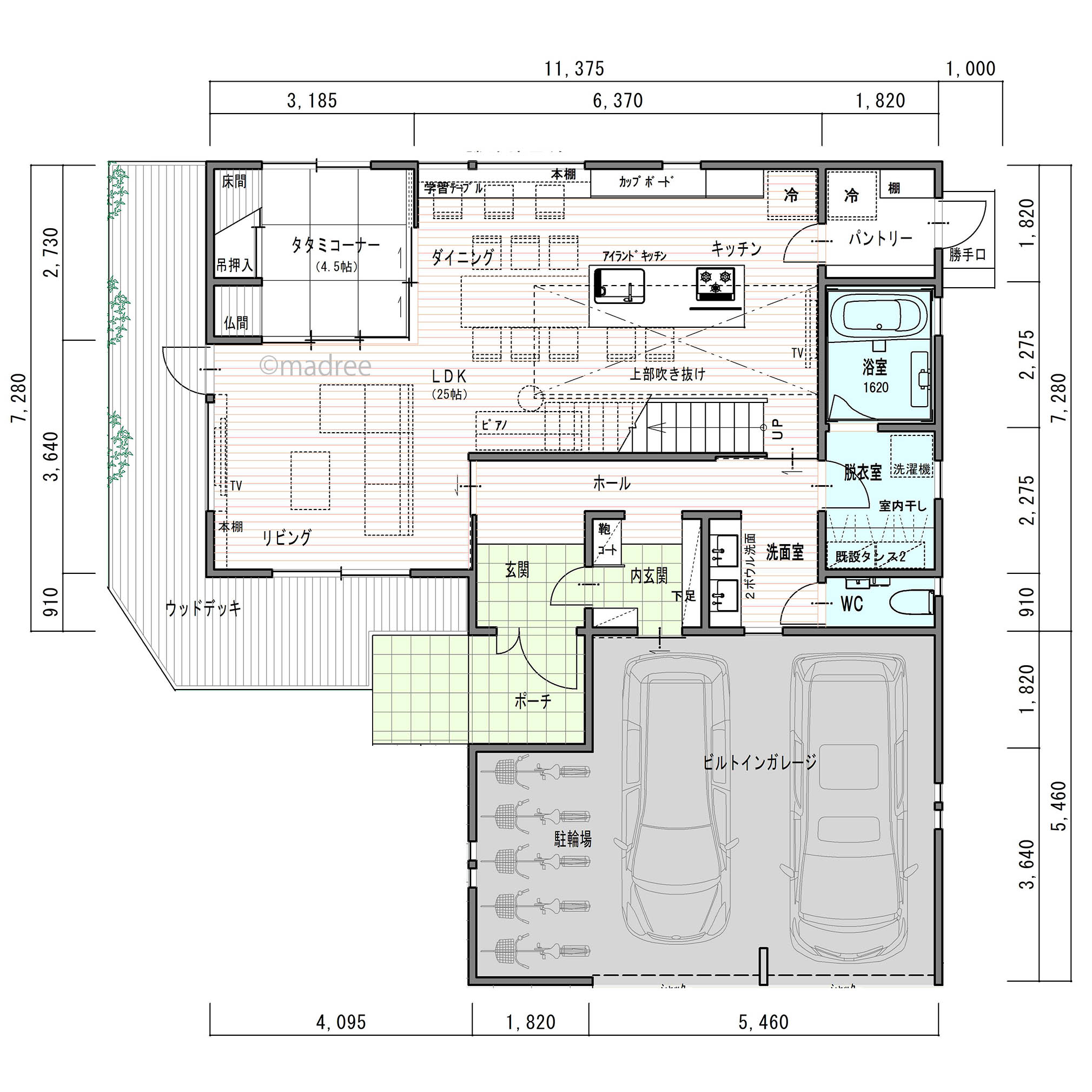
・クロークの隣に、手洗いスペースとトイレを配置しました。
・トイレは祖母部屋と近い配置としました。
・LDKは一体的空間ですが、DKを少しクランクさせ、リビングと空間を緩やかに分けました。
・キッチンはオープンなペニンシュラタイプとし、冷蔵庫はLDKから見えないように配置さました。
・パントリー、浴室、洗面脱衣室を並べて配置しました。
・水廻りをキッチンと隣接させ、家事がシンプルに行えるようにしました。
・祖母部屋を東南角に配置しました。リビング側の引き戸を開けると、家族の気配を感じられます。
■2階
・リビング階段で上がります。
・WICを備えた主寝室、母部屋、間仕切可能な子ども部屋を南側に並べて配置しました。
・FCLは、主寝室のWICからも出入り可能となっています。
・室内ドアは全て引き戸で計画しました。
37坪 4LDK関連の間取り
マドリー開発の『住宅営業支援ツール』
madreeデータバンク
マドリーの人気間取り4,800プランを接客・提案に活用できる営業支援ツール
- 競合他社と差がつく、スピード提案
- トレンド間取りで、集客・受注数UP
- 建築家のアイデアを参考に、質の高い提案ができる









