[39坪 4LDK] 朝日がすべての個室に降り注ぐ、繋がるデッキで子ども達が走り回れる平屋の間取り
全国の建築家から間取りが集まるmadree(マドリー)で集まった39坪、4LDKの間取りです。外とつながるLDKやリビング中心の動線が特徴の注文住宅の間取りです。
朝日がすべての個室に降り注ぐ、繋がるデッキで子ども達が走り回れる平屋はこのような方におすすめです
・30代共働き夫婦、子ども2人(長男4歳、長女8ヶ月)
・趣味:釣り、友人とBBQ
朝日がすべての個室に降り注ぐ、繋がるデッキで子ども達が走り回れる平屋の間取りアイデア
全国対応になりました
建築家・デザイナー
からのコメント
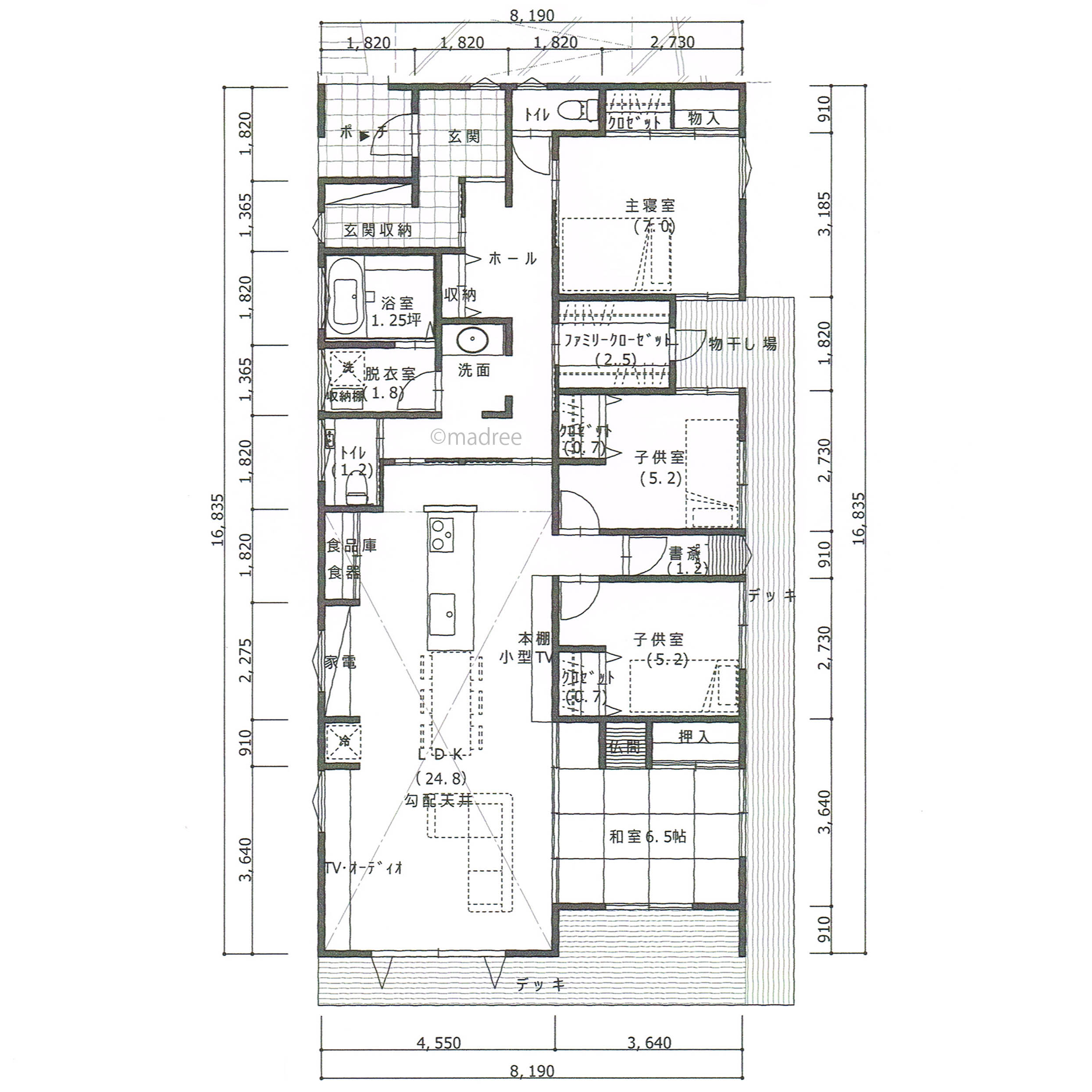
                【全体のコンセプト】
楽しく快適に暮らす家です。 
来客者が気兼ねなく遊びに来たり、家族が楽しく暮らせれば良いかと考えました。 
お母さんの家事動線などは最重要点で考えております。
【こだわりのポイント】
■配置
南面のお店の駐車場が近く、歩行者が通る歩道があるため、干渉を避け、北側アプローチとしました。
■玄関
西側の歩行者の目線を避け、横並びのDKとTV鑑賞を叶えた家族がくつろぐゆったりめのリビング。勾配天井でさらに広がります。DKは東側の腰下本棚の上に小さなTVを置き、料理中もTV鑑賞ができます。
■水回り
お母さんの動線を考慮しつつ、来客者も気兼ねなく使える配置にしました。ファミリークローゼットは物干し場につなげ、脱衣所からのアクセスも近づけました。寝室付近にはもう一つのトイレがあります。
■個室
できるだけ朝日を浴びる配置にしました。主寝室や子ども室・和室は東側デッキでつながり、子どもたちが走り回る遊び場にもなります。和室は4枚引違い戸を開けるとLDKにつながります。仕事場の書斎も窓から外を眺められます。
39坪 4LDK関連の間取り
マドリー開発の『住宅営業支援ツール』
          madreeデータバンク
            
マドリーの人気間取り4,800プランを接客・提案に活用できる営業支援ツール
- 競合他社と差がつく、スピード提案
 - トレンド間取りで、集客・受注数UP
 - 建築家のアイデアを参考に、質の高い提案ができる
 

                                                      
                                                  







