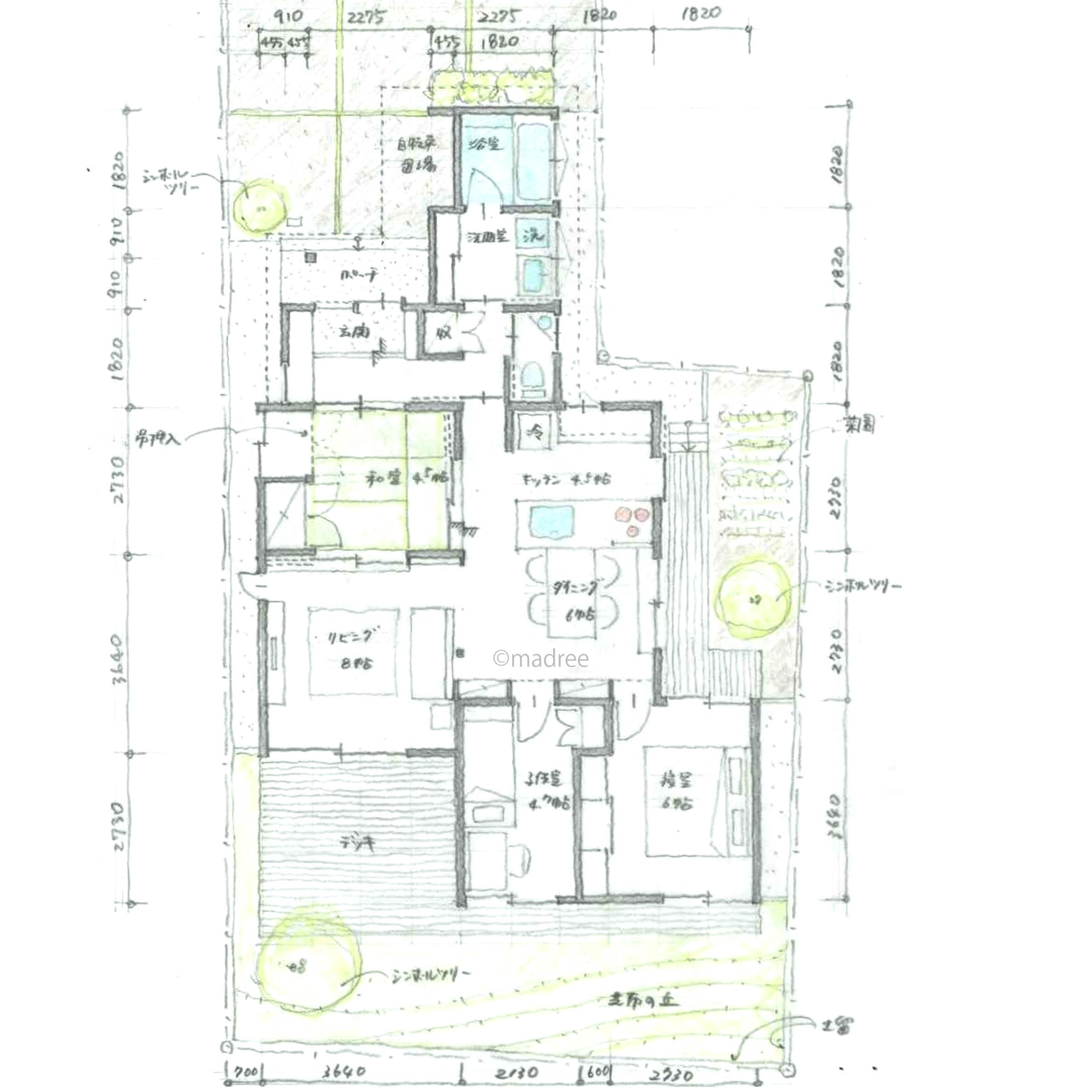
[24坪 3LDK] 玄関を開けると視線と風が抜ける、LDKから全ての部屋へ繋がりを持つ平屋の間取り
全国の建築家から間取りが集まるmadree(マドリー)で集まった24坪、3LDKの間取りです。ウッドデッキや広いテラスが特徴の注文住宅の間取りです。
玄関を開けると視線と風が抜ける、LDKから全ての部屋へ繋がりを持つ平屋はこのような方におすすめです
・母20代:会社員、長男3歳
・趣味:お菓子やパン作り、バーベキュー
・庭で食事やBBQをしたい。
・各部屋に収納を充実させたい。
玄関を開けると視線と風が抜ける、LDKから全ての部屋へ繋がりを持つ平屋の間取りアイデア
全国対応になりました
建築家・デザイナー
からのコメント
                【全体のコンセプト】
・キッチンを中心に生活動線がスムーズな家。
【こだわりのポイント】
・キッチンから裏の通路も含めて家全体が見渡せるので、家族や来客の気配を感じられます。
・広い敷地を活かし、キッチンの東側に家庭菜園のある中庭を設けました。
・LDKが各部屋と適度に繋がりながらも、それぞれが居心地良い空間となっています。
・玄関からすぐ上がれる和室は小上がりで、そのままリビングへ抜けられます。
・和室は吊収納の下に地窓も用意しているので、通風も良好です。
・主寝室・子ども室は陽当たりが良く、静かな時間を過ごせる配置です。
・庭での食事やBBQは、大人数の時は庭、家族だけなら中庭、と場所を変えて楽しめます。
24坪 3LDK関連の間取り
マドリー開発の『住宅営業支援ツール』
          madreeデータバンク
            
マドリーの人気間取り4,800プランを接客・提案に活用できる営業支援ツール
- 競合他社と差がつく、スピード提案
 - トレンド間取りで、集客・受注数UP
 - 建築家のアイデアを参考に、質の高い提案ができる
 

                                                      
                                                  







