[37坪 3LDK] リビングに面して広がるくつろぎの場、南北デッキへ光と風が通り抜ける平屋の間取り
全国の建築家から間取りが集まるmadree(マドリー)で集まった37坪、3LDKの間取りです。外とつながるLDKやリビング一体の畳が特徴の注文住宅の間取りです。
リビングに面して広がるくつろぎの場、南北デッキへ光と風が通り抜ける平屋はこのような方におすすめです
・夫40代:会社員、妻40代:専業主婦、子ども5歳
・趣味:音楽、ギター
・脱衣所の近くにファミクロを設けたい。
・洗濯物も干せるウッドデッキスペースを設けたい。
リビングに面して広がるくつろぎの場、南北デッキへ光と風が通り抜ける平屋の間取りアイデア
- 趣味に夢中になれる部屋
- 屋外で非日常感楽しむ
- 子どもが自由に遊べるスペース
- 見守るワークスペース
- 安心して遊べる庭
- 光庭で家中を明るく
- プライバシー守る脱衣洗面室
- 天気も視線も気にせず物干し
- 部屋干しスペースで家事効率UP
- アレルギーに配慮したランドリールーム
- 物をLDKに持ち込まない動線
- 片付けしながらの帰宅後動線
- 景観を損ねない部屋干しスペース
- 屋内外が繋がる回遊動線
- 風が抜ける窓の配置
- 家中を心地よく風が抜ける
- 適所収納で使いやすく片付ける
- 隠せるパントリー
- 大人数に対応できるLDK
- 庭の緑に癒されるLDK
- 緩やかに区切られたLDK
- 来客対応しやすい客間配置
- 将来を見据えた1階主寝室
- 来客が気軽に宿泊できる
- 開口窓で開放的なリビング
- ウッドデッキを家事用と家族用に分ける
全国対応になりました
建築家・デザイナー
からのコメント
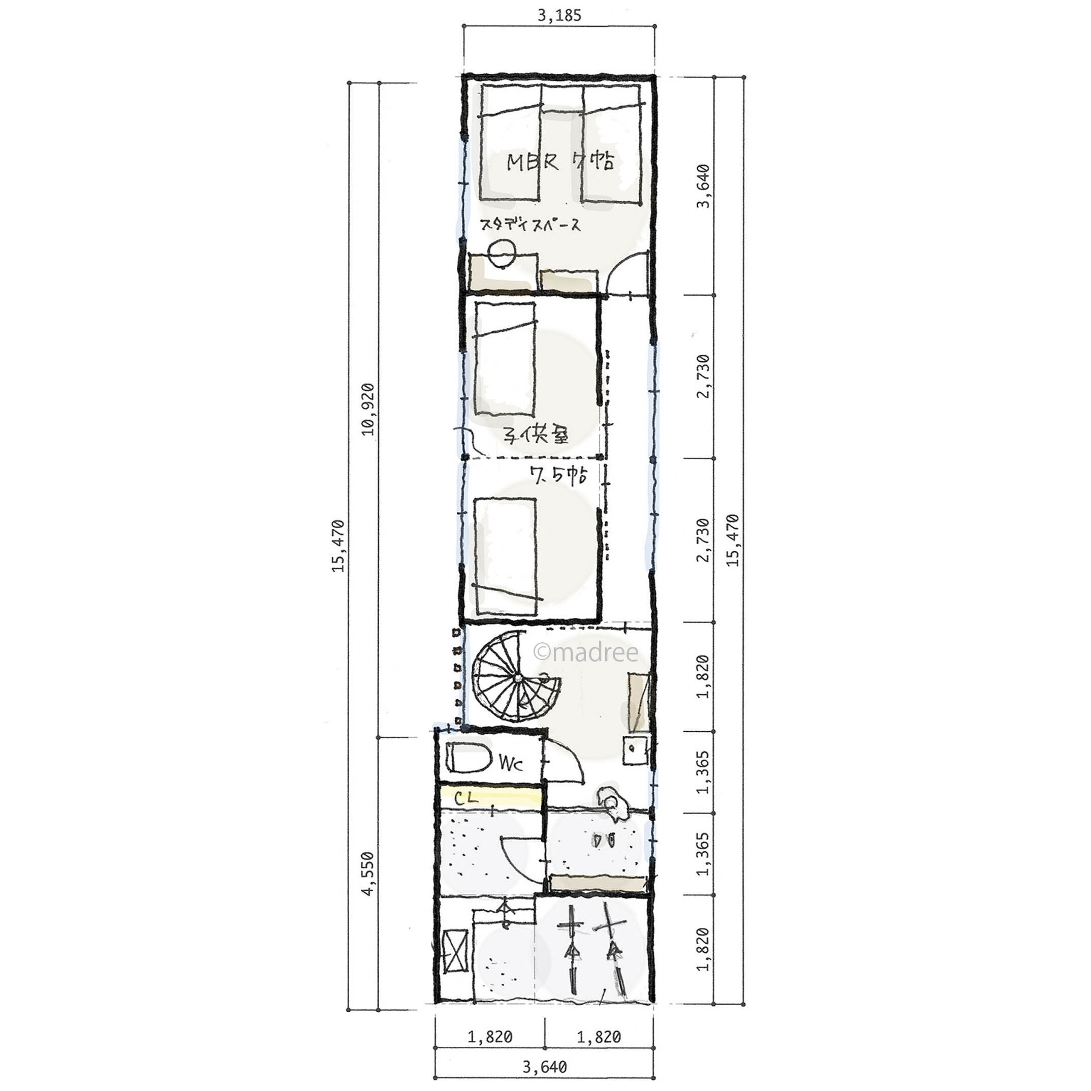
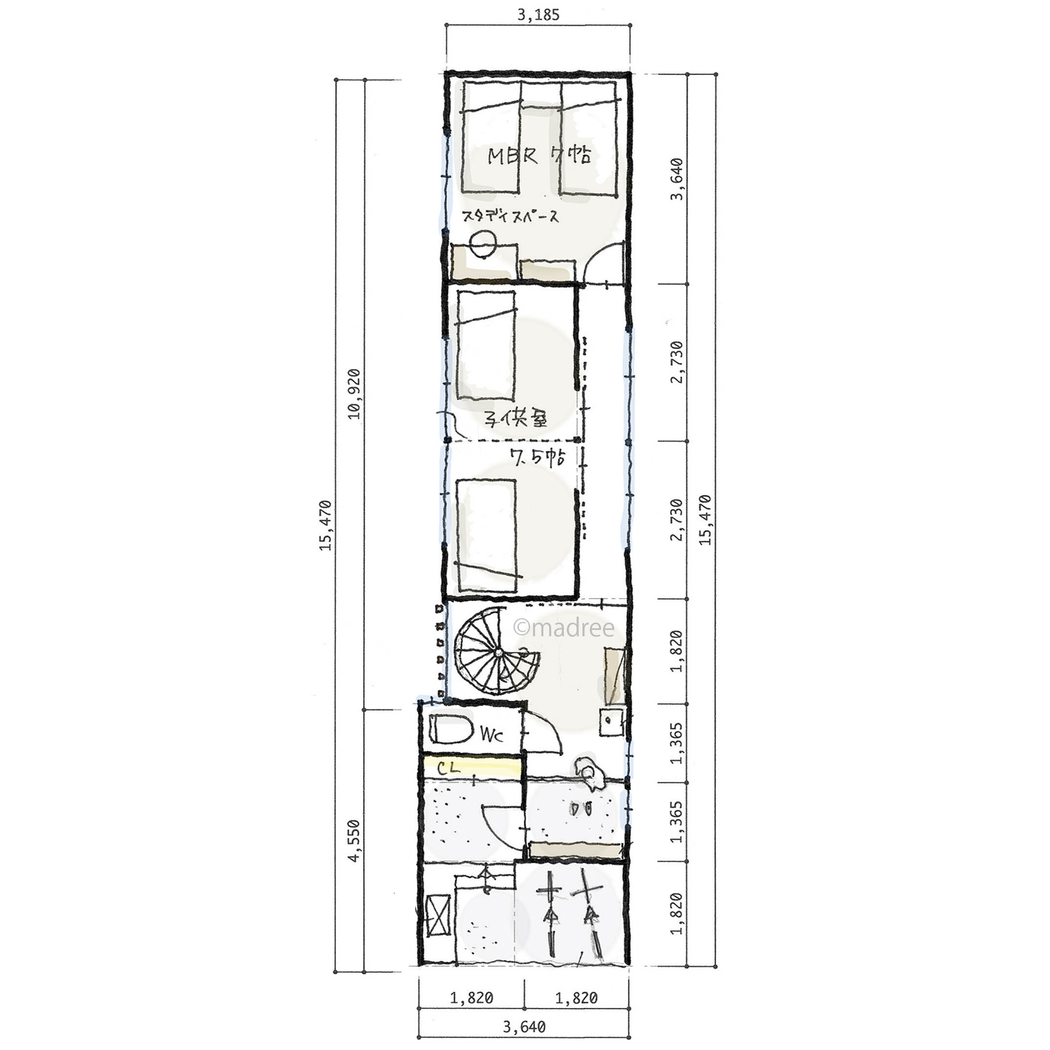
【全体のコンセプト】
・家族が揃って楽しくくつろげるLDK空間の家。
【こだわりのポイント】
・北側にバックヤードを設けて、暗くなりがちな玄関ホールに光が注ぎ込むようにしました。
・南北にサッシがある事でリビングに風が通り、心地良く過ごせます。
・和室は普段はリビングと一体的に、来客の際は障子で仕切る事ができます。
・和室はホール側からも直接出入りできます。
・キッチンから全体が見渡せるので、家事をしながら家族とコミュニケーションが取れます。
・広めの脱衣室は、部屋干し、アイロンかけ、ドライルームとして利用できます。
・脱衣室近くにファミリークローゼットを設け、家事動線が楽になるようにしています。
・南側に駐車場2台分を配置しました。車の切り返しがしやすいように、建物の南東側を少し空けています。
37坪 3LDK関連の間取り
マドリー開発の『住宅営業支援ツール』
madreeデータバンク
マドリーの人気間取り4,800プランを接客・提案に活用できる営業支援ツール
- 競合他社と差がつく、スピード提案
- トレンド間取りで、集客・受注数UP
- 建築家のアイデアを参考に、質の高い提案ができる









