[45坪 4LDK] 家事も仕事も景色を楽しみながら過ごす、回遊動線で繋がるデッキテラスのある家の間取り
全国の建築家から間取りが集まるmadree(マドリー)で集まった45坪、4LDKの間取りです。外とつながるLDKやアウトドアリビングが特徴の注文住宅の間取りです。
家事も仕事も景色を楽しみながら過ごす、回遊動線で繋がるデッキテラスのある家はこのような方におすすめです
・50代共働き夫婦、2人兄弟(13歳、9歳)、犬を飼う可能性あり
・趣味:家庭菜園、虫飼育、読書、スポーツ観戦、音楽鑑賞、カラオケ、サッカー
・キッチンの近くにリモートで仕事のできるスペースを設けたい。
・家庭菜園を楽しめる庭にしたい。
家事も仕事も景色を楽しみながら過ごす、回遊動線で繋がるデッキテラスのある家の間取りアイデア
- 屋外で非日常感楽しむ
- ペットと快適に暮らす
- 趣味に夢中になれる部屋
- 子どもが自由に遊べるスペース
- ダイニング学習スペース
- 在宅ワークスーペース
- 見守るワークスペース
- 図書館のような本棚
- ファミリーライブラリー
- 安心して遊べる庭
- 光庭で家中を明るく
- 家族を感じる書斎
- 篭れる書斎
- プライバシー守る脱衣洗面室
- 天気も視線も気にせず物干し
- 部屋干しスペースで家事効率UP
- アレルギーに配慮したランドリールーム
- 帰宅後即シャワーの動線
- 物をLDKに持ち込まない動線
- 片付けしながらの帰宅後動線
- 景観を損ねない部屋干しスペース
- 洗濯仕事が一箇所で完結
- キッチン近くの水廻り動線
- 回遊性のある水廻り
- 屋内外が繋がる回遊動線
- キッチン中心の回遊動線
- 風が抜ける窓の配置
- 家中を心地よく風が抜ける
- 目隠しルーバーで採光確保
- 大きな吹抜で採光確保
- 天窓/高窓から自然の光取り込む
- 吹抜で家族が繋がる
- 隠せるパントリー
- 大人数に対応できるLDK
- 庭の緑に癒されるLDK
- 開口窓で開放的なリビング
- 来客対応しやすい客間配置
- 将来を見据えた1階主寝室
- 来客が気軽に宿泊できる
全国対応になりました
建築家・デザイナー
からのコメント
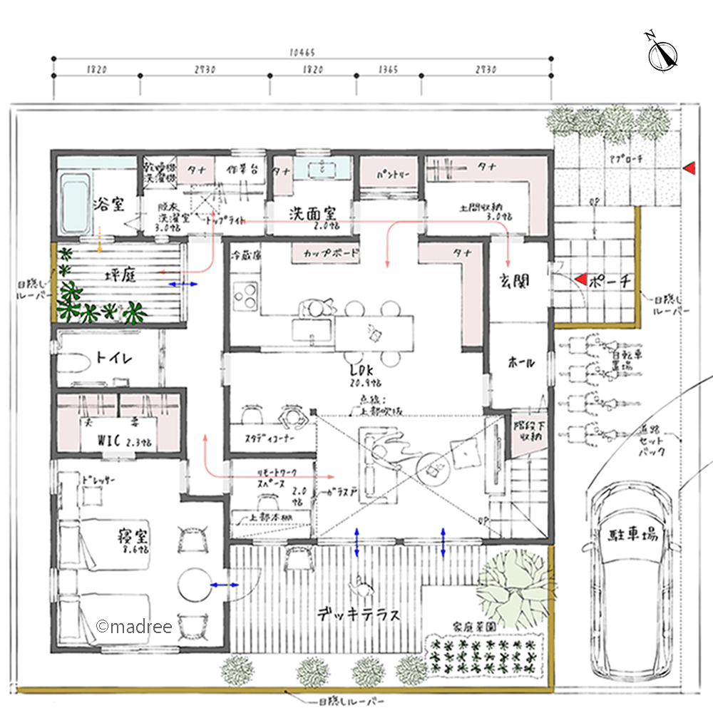
【全体のコンセプト】
・家事動線の良い家。
【こだわりのポイント】
■配置計画
・駐車スペースと駐輪スペースは道路沿いに設けました。
・日当たりの良い南側に、寝室・LDK・吹抜を配置しました。
・北側に水廻りを集約しました。
■玄関
・アプローチをクランクさせて、道路から玄関が直接見えにくくしました。
・土間収納は2WAY動線なので、いつでも玄関がスッキリと片付きます。
・玄関ホールに窓があるので、日中は照明なしでも採光を確保できます。
■LDK
・ゆったり過ごせる20.9帖の一体的空間です。
・リビングに吹抜とオープン階段を設けました。
・吹抜に高窓を設けてリビングに光を取り込みます。
・南側のデッキテラスは、リビングと繋がるので更に広く感じられます。
・リビングの一角に、スタデイコーナーとリモートスペースを設けました。
・スタディコーナーは、キッチンから様子を確認できる配置です。
・リモートスペースは、リビングとガラス戸で仕切り、独立しながらも様子が分かるようにしました。
・キッチンからLDが見渡せます。
・キッチン背面にカップボードと冷蔵庫が並び、近くにパントリーも備えました。
■水廻り
・洗面室と脱衣洗濯室は、廊下からもキッチン側からもアクセスできる回遊動線です。
・脱衣洗濯室のトップライトから、自然光で明るさを確保できます。
・近くに坪庭を設けて、浴室から景色を楽しめるようにしました。
・坪庭は物干しスペースとしても利用できます。
■主寝室
・1階の南側に配置しました。
・デッキテラスへ直接出る事が可能です。
■子ども部屋
・2階の北側に配置しました。
・可動間仕切りで仕切っているので、一体的に利用したり、壁で仕切る事も可能です。
■図書スペース
・2階の吹抜に面して配置しました。
・吹抜を眺めながらゆっくりと読書できます。
45坪 4LDK関連の間取り
マドリー開発の『住宅営業支援ツール』
madreeデータバンク
マドリーの人気間取り4,800プランを接客・提案に活用できる営業支援ツール
- 競合他社と差がつく、スピード提案
- トレンド間取りで、集客・受注数UP
- 建築家のアイデアを参考に、質の高い提案ができる









