[40坪 4LDK] 繋がるインナーテラスで愛犬も快適、明るいLDKに自然と家族が集まる家の間取り
全国の建築家から間取りが集まるmadree(マドリー)で集まった40坪、4LDKの間取りです。外とつながるLDKやアウトドアリビングが特徴の注文住宅の間取りです。
繋がるインナーテラスで愛犬も快適、明るいLDKに自然と家族が集まる家はこのような方におすすめです
・30代共働き夫婦、子どもは2人の予定、犬を1匹飼いたい
・趣味:ゴルフ、スノーボード、キャンプをしてみたい
・寝る事以外は1階で用事が済むようにしたい。
・夕食後はリビングで家族とのんびり過ごしたい。
繋がるインナーテラスで愛犬も快適、明るいLDKに自然と家族が集まる家の間取りアイデア
- 屋外で非日常感楽しむ
- ペットと快適に暮らす
- 趣味に夢中になれる部屋
- 子どもが自由に遊べるスペース
- ダイニング学習スペース
- 在宅ワークスーペース
- 見守るワークスペース
- 安心して遊べる庭
- 家族を感じる書斎
- プライバシー守る脱衣洗面室
- テラスとしても過ごせるサンルーム
- 天気も視線も気にせず物干し
- 部屋干しスペースで家事効率UP
- アレルギーに配慮したランドリールーム
- 物をLDKに持ち込まない動線
- 片付けしながらの帰宅後動線
- バルコニーで楽々布団干し
- 景観を損ねない部屋干しスペース
- 洗濯仕事が一箇所で完結
- シンプルな家事動線
- キッチン近くの水廻り動線
- 階段周囲の回遊動線
- ウォークスルークローゼット
- 玄関近くのファミクロ
- 適所収納で使いやすく片付ける
- 壁面収納で収納量確保
- 隠せるパントリー
- 大人数に対応できるLDK
- 開口窓で開放的なリビング
- 来客対応しやすい客間配置
- 寝るだけの小さな子ども部屋
- 来客が気軽に宿泊できる
- 子どものプライベート守る個室の配置
全国対応になりました
建築家・デザイナー
からのコメント
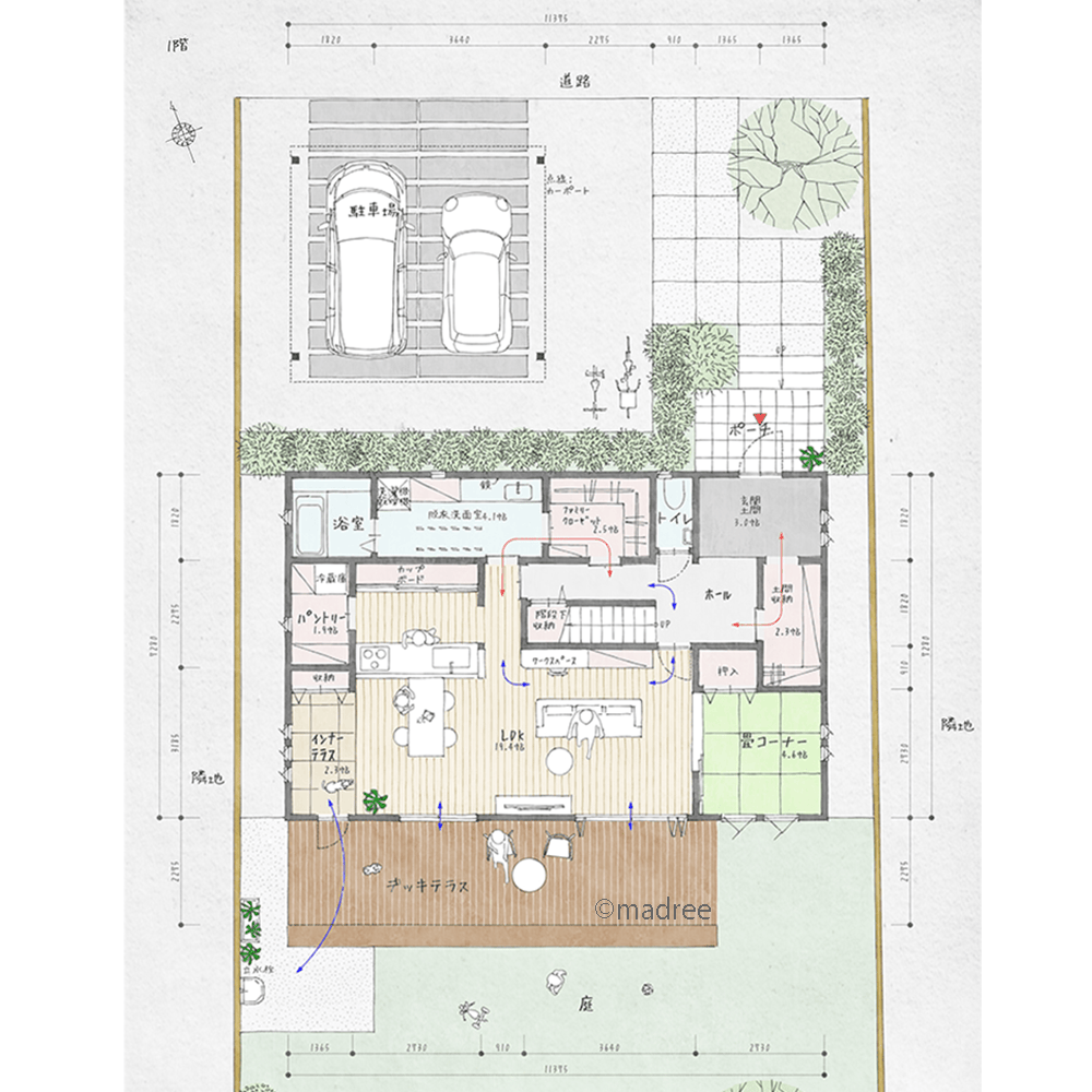
【全体のコンセプト】
・効率的な動線でゆとりの時間の生まれる家。
【こだわりのポイント】
■LDK/インナーテラス
・家族みんなでゆったりと過ごせる一体的空間です。
・南側にデッキテラス、西側に犬のスペースとなるインナーテラスを設けました。
・インナーテラスから、デッキテラスや庭へ出れます。
・途中に立水栓を設けて、外で遊んだ後の犬を洗えます。
■LDK/畳コーナー
・LDの南側に大きな窓を設けました。窓を開けるとウッドデッキと繋がります。
・リビングの一角にある和室は引き込み戸で、開放すると一体的に、来客の際は仕切れます。
・リビングの北側にワークカウンターを設けました。棚には勉強道具などを収納できます。
・LDが見渡せるオープンなキッチンにしました。
・カップボードとパントリーを別々に配置しました。買い置きや使用頻度の少ない調理器具を収納できます。
・冷蔵庫をパントリー内に配置したり、カップボードを引き戸で隠すなど、スッキリ見えるようにしました。
■寝室/子ども部屋
・どの部屋も南側に大きな窓があるので、明るく気持ち良い空間となります。
・寝室は朝日が入るように東南角としました。
■納戸
・寝室と繋がり、廊下からも入れる北側に設けました。
・回遊動線となっておりますので使いやすくなっております。
■水廻り
・キッチンの近くに集約して配置しました。
・洗面脱衣とFCLがウォークスルーできるので、洗濯作業がスムーズに行えます。
■玄関
・3.0帖の広さのある土間空間です。
・土間収納で靴やアウターを脱いでから、ホールへ出られる2WAY動線になっています。
40坪 4LDK関連の間取り
マドリー開発の『住宅営業支援ツール』
madreeデータバンク
マドリーの人気間取り4,800プランを接客・提案に活用できる営業支援ツール
- 競合他社と差がつく、スピード提案
- トレンド間取りで、集客・受注数UP
- 建築家のアイデアを参考に、質の高い提案ができる









