[35坪 2LDK] 天気も時間も気にせず毎日快適に洗濯仕事、共働きに嬉しい採光サンルームのある家の間取り
全国の建築家から間取りが集まるmadree(マドリー)で集まった35坪、2LDKの間取りです。L+DKやプライバシー守るが特徴の注文住宅の間取りです。
天気も時間も気にせず毎日快適に洗濯仕事、共働きに嬉しい採光サンルームのある家はこのような方におすすめです
・30代共働き夫婦、子どもを1〜2人予定、犬を1匹飼う予定
・趣味:革製品の手入れ、筋トレ、料理、映画やドラマ鑑賞
・部屋干しをする機会が多いので、サンルームを設けて洗濯をスムーズに行いたい。
・家族が増えてもスッキリ片付けられるように、小屋裏収納を設けたい。
天気も時間も気にせず毎日快適に洗濯仕事、共働きに嬉しい採光サンルームのある家の間取りアイデア
- ペットと快適に暮らす
- 趣味に夢中になれる部屋
- 思い出を飾るギャラリー
- 子どもが自由に遊べるスペース
- 在宅ワークスーペース
- 見守るワークスペース
- 篭れる書斎
- 天気も視線も気にせず物干し
- 部屋干しスペースで家事効率UP
- 物をLDKに持ち込まない動線
- 片付けしながらの帰宅後動線
- バルコニーで楽々布団干し
- 景観を損ねない部屋干しスペース
- 洗濯仕事が一箇所で完結
- キッチン近くの水廻り動線
- 風が抜ける窓の配置
- 家中を心地よく風が抜ける
- 天窓/高窓から自然の光取り込む
- 適所収納で使いやすく片付ける
- 壁面収納で収納量確保
- まとめ買い安心大容量パントリー
- 隠せるパントリー
- 庭の緑に癒されるLDK
- 緩やかに区切られたLDK
- 来客が気軽に宿泊できる
全国対応になりました
建築家・デザイナー
からのコメント
【全体のコンセプト】
・広々リビングとたっぷりの収納がある家。
【こだわりのポイント】
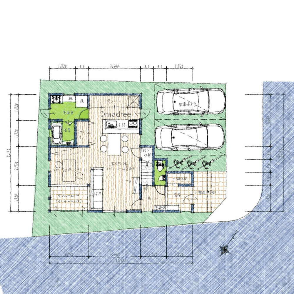
■1階
・北側に駐車スペース、南側にアプローチを配置しています。
・玄関北側に土間収納を配置する事で、南側からの陽光を取り込む明るい玄関となっています。土間収納は1帖で計画していますが、北側に広げて2帖取る事も可能です。
・階段とトイレは廊下に配置しました。
・北側にキッチンと洗濯スペースを集約しました。
・キッチンに勝手口があるので、ゴミの仮置きや駐車場からのアクセスも良好です。
・サンルーム部分も含めて、23.5帖の広々したLDKとなっています。
・サンルームは、天窓を持つインナーテラスで計画しています。室内干しの際は、半透明の引き戸でリビングと区画するる事ができます。
■2階
・収納式の梯子でアクセスできる9.5帖の小屋裏収納と4.5帖のWICを設けました。
・子ども室は合計10.5帖で、間仕切りは設置せず、家具などで成長に合わせた使い方ができる計画としました。
・主寝室からバルコニーと書斎へアクセスできます。
35坪 2LDK関連の間取り
マドリー開発の『住宅営業支援ツール』
madreeデータバンク
マドリーの人気間取り4,800プランを接客・提案に活用できる営業支援ツール
- 競合他社と差がつく、スピード提案
- トレンド間取りで、集客・受注数UP
- 建築家のアイデアを参考に、質の高い提案ができる









