[26坪 3LDK] 旗竿地を生かして回転駐車、アプローチが屋外プライベート場になる家の間取り
全国の建築家から間取りが集まるmadree(マドリー)で集まった26坪、3LDKの間取りです。リビング吹抜やリビング一体の畳が特徴の注文住宅の間取りです。
旗竿地を生かして回転駐車、アプローチが屋外プライベート場になる家はこのような方におすすめです
・共働き夫婦、猫3匹
・趣味:ゲーム、車、バイク、カヌー
・リビングにTVを2台置けるようにして、各々で趣味を楽しみたい。
・物が多いので、収納場所に困らないように、小屋裏収納を設けたい。
旗竿地を生かして回転駐車、アプローチが屋外プライベート場になる家の間取りアイデア
- ペットと快適に暮らす
- 趣味に夢中になれる部屋
- 子どもが自由に遊べるスペース
- ダイニング学習スペース
- 在宅ワークスーペース
- 見守るワークスペース
- 安心して遊べる庭
- プライバシー守る脱衣洗面室
- テラスとしても過ごせるサンルーム
- 天気も視線も気にせず物干し
- 部屋干しスペースで家事効率UP
- アレルギーに配慮したランドリールーム
- 帰宅後即シャワーの動線
- 物をLDKに持ち込まない動線
- 片付けしながらの帰宅後動線
- 景観を損ねない部屋干しスペース
- 洗濯仕事が一箇所で完結
- キッチン近くの水廻り動線
- 風が抜ける窓の配置
- 家中を心地よく風が抜ける
- 天窓/高窓から自然の光取り込む
- 吹抜で家族が繋がる
- 適所収納で使いやすく片付ける
- 隠せるパントリー
- 来客が気軽に宿泊できる
- 屋外で非日常感楽しむ
- 壁面収納で収納量確保
全国対応になりました
| 広さ | |
|---|---|
| 土地特徴 | |
| 階数 | |
| 部屋数 | |
| 家族人数 | |
| 特徴 |
|
| 担当建築家・デザイナー |
建築家・デザイナー
からのコメント
【こだわりのポイント】
■配置計画
・行き止りの道路に面した敷地のため、乗用車が方向転回して駐車できる配置を考えました。
・入口部に小型の電気自動車等も配置できます。
・アプローチを兼ねた転回部分は、バーべキューなどにも利用可能です。
■1階
・引き戸の玄関から、土間へ抜ける2wayとしました。
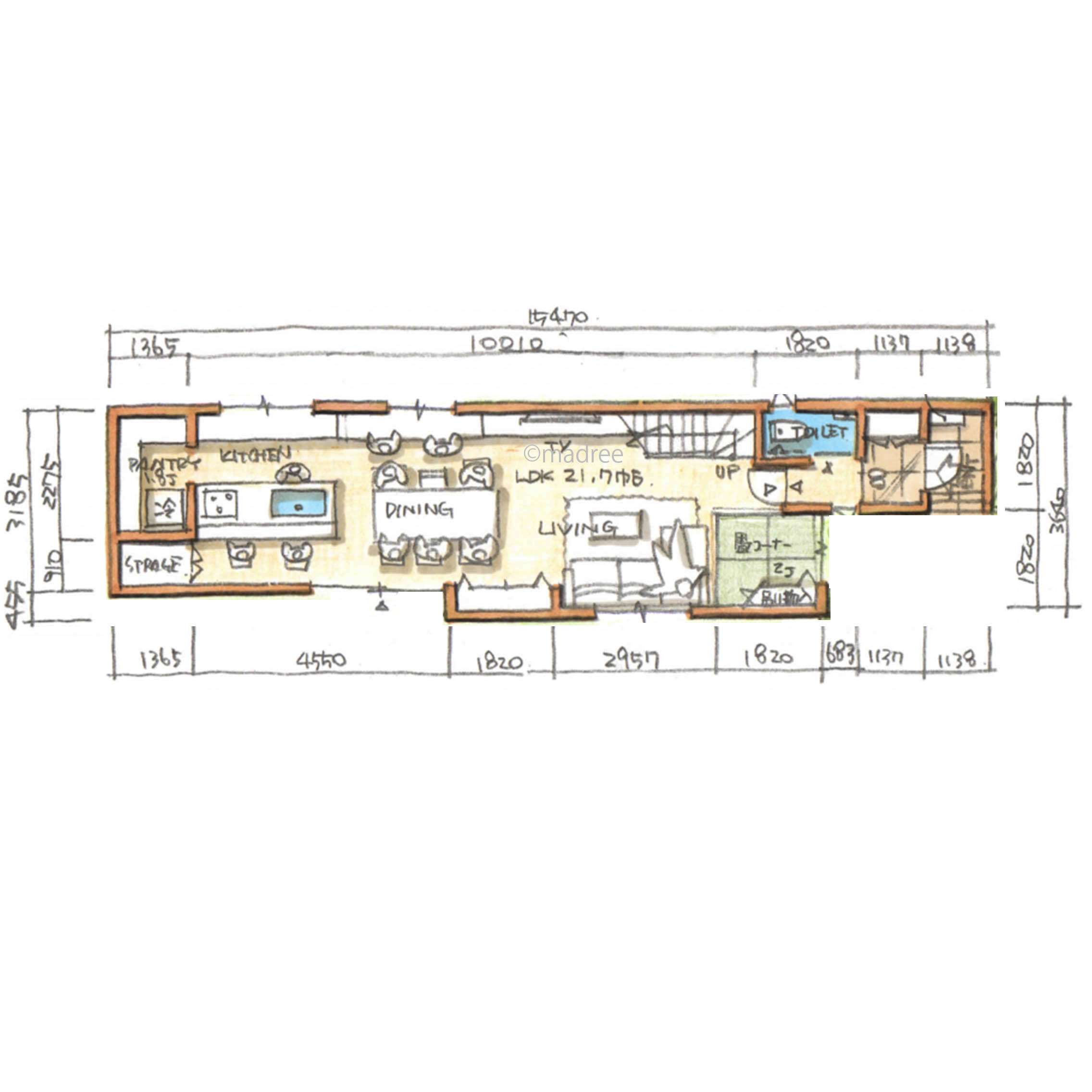
・浴室→脱衣→FCL→ランドリールームと南北に並び、家事動線を簡略にしました。
・LDに2箇所TVを配置しました。1つは壁掛け、もう1つは収納に入れて設置しています。
・続き間として3畳の和室を設けました。
・リビング階段から2階へと上がります。
・リビング上部は吹抜とし、天窓を設けました。
■2階
・寝室と洋室の2室でコンパクトにまとめました。
・階段で上がる屋根裏収納を設け、天井高は1.4m未満としました。
26坪 3LDK関連の間取り
マドリー開発の『住宅営業支援ツール』
madreeデータバンク
マドリーの人気間取り4,800プランを接客・提案に活用できる営業支援ツール
- 競合他社と差がつく、スピード提案
- トレンド間取りで、集客・受注数UP
- 建築家のアイデアを参考に、質の高い提案ができる









