[44坪 5LDK] 眺望と採光をバランス良く、向かい合う庭と空間繋がる縦長LDKの家の間取り
全国の建築家から間取りが集まるmadree(マドリー)で集まった44坪、5LDKの間取りです。外とつながるLDKや広く感じるLDKが特徴の注文住宅の間取りです。
眺望と採光をバランス良く、向かい合う庭と空間繋がる縦長LDKの家はこのような方におすすめです
・共働き夫婦、長男1歳(子どもは3人の予定)
・趣味:自転車
・外干しはしないので、脱衣所兼ランドリールームで洗濯を完結させたい。
・自転車は屋外に置くのではなく、土間にスペースを確保したい。
眺望と採光をバランス良く、向かい合う庭と空間繋がる縦長LDKの家の間取りアイデア
- 屋外で非日常感楽しむ
- 縦列駐車可能な駐車場
- 趣味に夢中になれる部屋
- 子どもが自由に遊べるスペース
- ダイニング学習スペース
- 開放的なスタディースペース
- 在宅ワークスーペース
- 見守るワークスペース
- 安心して遊べる庭
- プライバシー守る脱衣洗面室
- 天気も視線も気にせず物干し
- 部屋干しスペースで家事効率UP
- アレルギーに配慮したランドリールーム
- 帰宅後即シャワーの動線
- 物をLDKに持ち込まない動線
- 片付けしながらの帰宅後動線
- 景観を損ねない部屋干しスペース
- 洗濯仕事が一箇所で完結
- 生活音に配慮した水廻り動線
- キッチン近くの水廻り動線
- 回遊性のある水廻り
- 風が抜ける窓の配置
- 家中を心地よく風が抜ける
- 天窓/高窓から自然の光取り込む
- 適所収納で使いやすく片付ける
- 隠せるパントリー
- 大人数に対応できるLDK
- 庭の緑に癒されるLDK
- 緩やかに区切られたLDK
- 来客対応しやすい客間配置
- 土間の自転車/バイク置き場
- 寝るだけの小さな子ども部屋
- 来客が気軽に宿泊できる
- 子どものプライベート守る個室の配置
全国対応になりました
建築家・デザイナー
からのコメント
【全体のコンセプト】
・LDKと庭が東西に延びる家。
・庭との繋がりを大切に、眺めや採光がバランス良く確保できる家。
・機能性のある快適な住まい。
■建物/敷地計画
・耐震等級に配慮し、バランスよく壁を確保するため、建物形状はベーシックな四角形としました。
・採光を効率よく確保するため、東西に延びた計画としています。
・建物を北側へ寄せ、南側に庭を配置しました。
・道路沿って駐車スペースを確保しています。
・道路からの視界に配慮し、玄関は北側に設け、アプローチは予備の駐車スペース兼用としました。
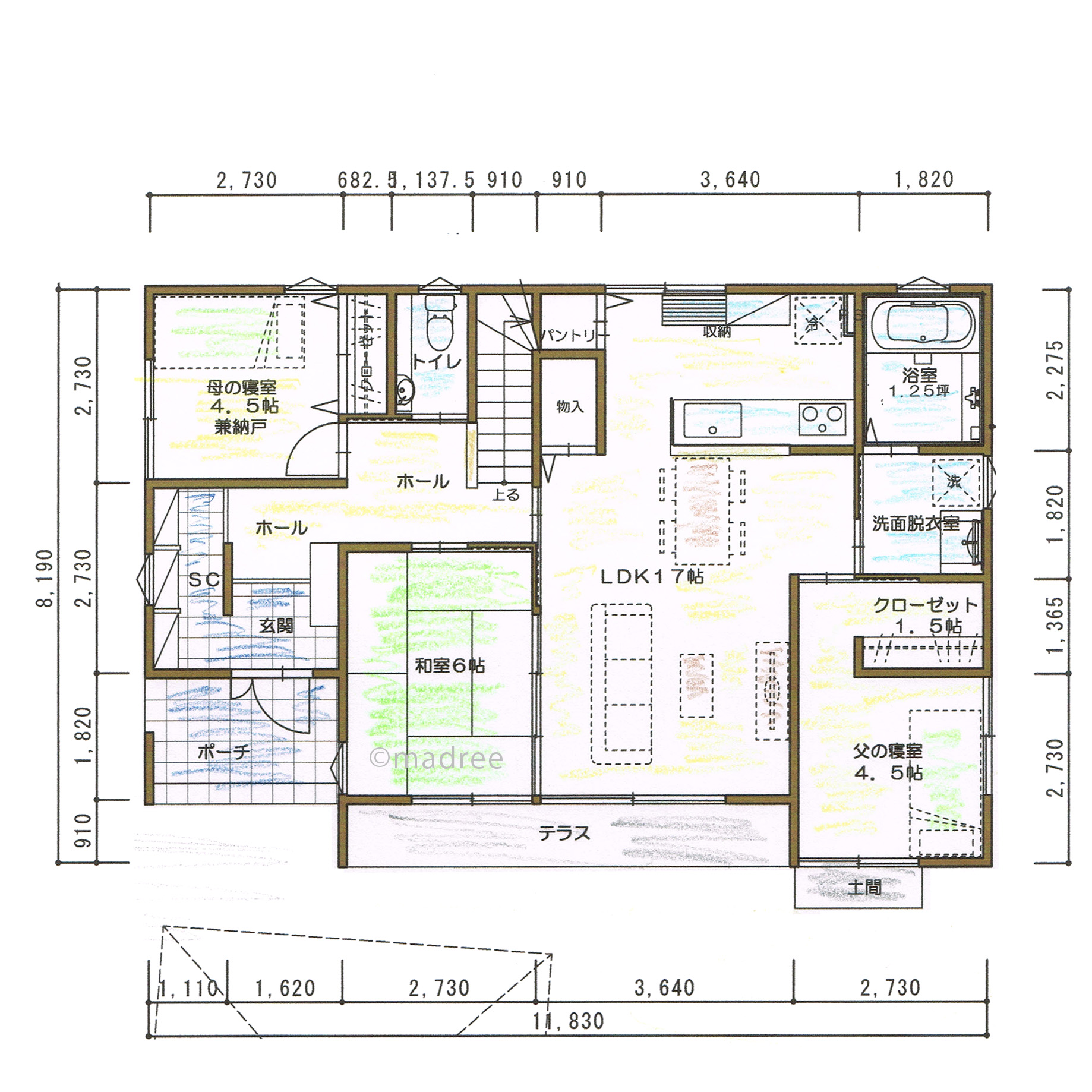
■1階
・玄関に土間を隣接させ、自転車などの収納スペースを確保しました。
・ホールにカバンやコート掛け等の収納を確保しました。
・LDKは東西に延びる長方形のワンルームとし、空間全体がストレートに見渡せるようにしました。
・庭と連動して、屋外へ視界が通りやすくなっています。
・キッチンを含めた水廻りを西側に集め、家事のしやすい回遊動線を計画しました。
・和室はリビングと繋がりながらも、客間としても利用可能な配置です。
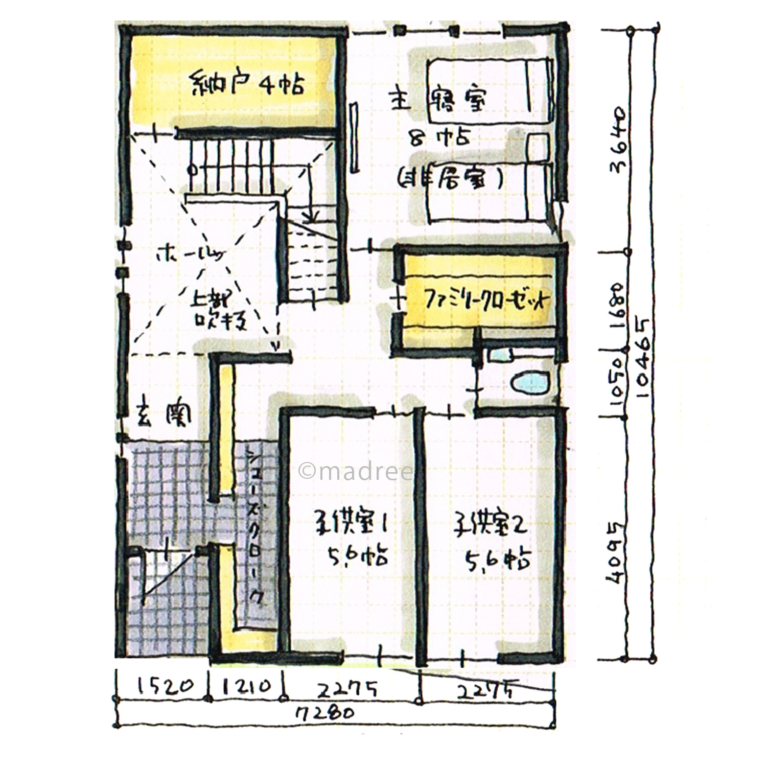
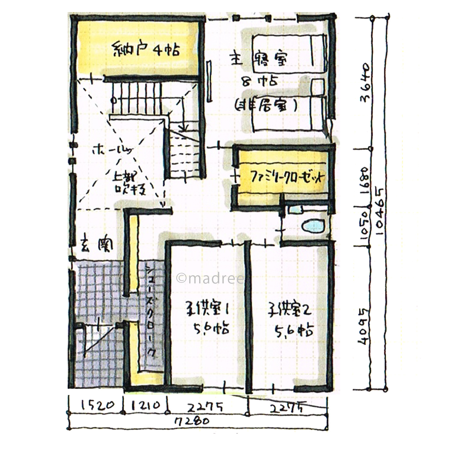
■2階
・プライバシー確保のため、各個室の間に収納を設け、生活音が届きにくい計画としました。
・主寝室にWICを隣接しています。
・子ども部屋3つは、それぞれ同等の広さ・形状・収納とし、コンパクトでも使いやすくなっています。
・セカンドリビングは敢えて間仕切りを設けず、生活の中で家族同士が顔を合わせられるようにしました。
44坪 5LDK関連の間取り
マドリー開発の『住宅営業支援ツール』
madreeデータバンク
マドリーの人気間取り4,800プランを接客・提案に活用できる営業支援ツール
- 競合他社と差がつく、スピード提案
- トレンド間取りで、集客・受注数UP
- 建築家のアイデアを参考に、質の高い提案ができる









