[30坪 2LDK] 土間から庭まで一直線、広々土間収納から趣味も家事も楽に繋がる家の間取り
全国の建築家から間取りが集まるmadree(マドリー)で集まった30坪、2LDKの間取りです。外とつながるLDKやリビング中心の動線が特徴の注文住宅の間取りです。
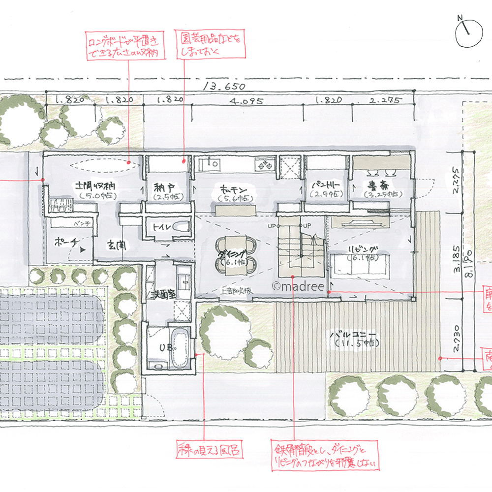
土間から庭まで一直線、広々土間収納から趣味も家事も楽に繋がる家はこのような方におすすめです
・夫:60代会社員、妻:50代専業主婦、大型犬1匹
・趣味:サーフィン、ヨット、園芸
・1階を土間のようにして、庭で飼っている犬が入れるようにしたい。
・ベッドではなく、畳の部屋で寝起きしたい。
土間から庭まで一直線、広々土間収納から趣味も家事も楽に繋がる家の間取りアイデア
- 屋外で非日常感楽しむ
- 趣味に夢中になれる部屋
- 子どもが自由に遊べるスペース
- ダイニング学習スペース
- 在宅ワークスーペース
- 見守るワークスペース
- 安心して遊べる庭
- 家族を感じる書斎
- 篭れる書斎
- 海帰りの帰宅後動線
- 帰宅後即シャワーの動線
- 物をLDKに持ち込まない動線
- 片付けしながらの帰宅後動線
- バルコニーで楽々布団干し
- 屋内外が繋がる回遊動線
- 風が抜ける窓の配置
- 家中を心地よく風が抜ける
- 大きな吹抜で採光確保
- 天窓/高窓から自然の光取り込む
- 吹抜で家族が繋がる
- ウォークスルークローゼット
- 部屋を繋ぐウォークインクローゼット
- 適所収納で使いやすく片付ける
- 壁面収納で収納量確保
- まとめ買い安心大容量パントリー
- 隠せるパントリー
- 大人数に対応できるLDK
- 庭の緑に癒されるLDK
- 緩やかに区切られたLDK
- 来客が気軽に宿泊できる
全国対応になりました
建築家・デザイナー
からのコメント
【全体のコンセプト】
・土間とデッキの広がる、外との繋がりを大切にする家。
■1階
・北側を家事と趣味の動線とするため、キッチンと収納を集約しました。
・土間収納から書斎の勝手口までを一直線で繋げ、庭へ出やすくしました。
・LDは吹抜の一体空間で、生活空間が南向きに明るく広がります。
■2階
・吹抜と繋がったホールから、寝室や客間へ繋がります。
・寝室からWICを介してバルコニーへ出られます。
・バルコニーは壁に囲まれた中庭形状で、大きな開口から1階のバルコニーを望めます。
30坪 2LDK関連の間取り
マドリー開発の『住宅営業支援ツール』
madreeデータバンク
マドリーの人気間取り4,800プランを接客・提案に活用できる営業支援ツール
- 競合他社と差がつく、スピード提案
- トレンド間取りで、集客・受注数UP
- 建築家のアイデアを参考に、質の高い提案ができる









