[30坪 2LDK] 中庭デッキから明るさ取り込む、縦長敷地で快適に暮らす家の間取り
全国の建築家から間取りが集まるmadree(マドリー)で集まった30坪、2LDKの間取りです。浴室1坪や外とつながるLDKが特徴の注文住宅の間取りです。
中庭デッキから明るさ取り込む、縦長敷地で快適に暮らす家はこのような方におすすめです
・30代共働き夫婦、子ども2人(長男6歳、長女3歳)
・趣味:アウトドア
・部屋に篭らず、リビングに家族が集まりやすくなるようにしたい。
・家事動線をまとめて配置し、別階の静かな寝室でリラックスしたい。
中庭デッキから明るさ取り込む、縦長敷地で快適に暮らす家の間取りアイデア
全国対応になりました
| 広さ | |
|---|---|
| 土地特徴 | |
| 特徴 |
|
| 階数 | |
| 部屋数 | |
| 家族人数 | |
| 担当建築家・デザイナー |
建築家・デザイナー
からのコメント
【全体のコンセプト】
・縦長の土地で快適に住む家。
・縦長敷地に、内側から明かりを取り込む家。
■レイアウト
・大きめの自動車1台、バイク2台、自転車2台の駐車スペースを確保しました。緑を楽しみながら、玄関に向かうアプローチとなっています。
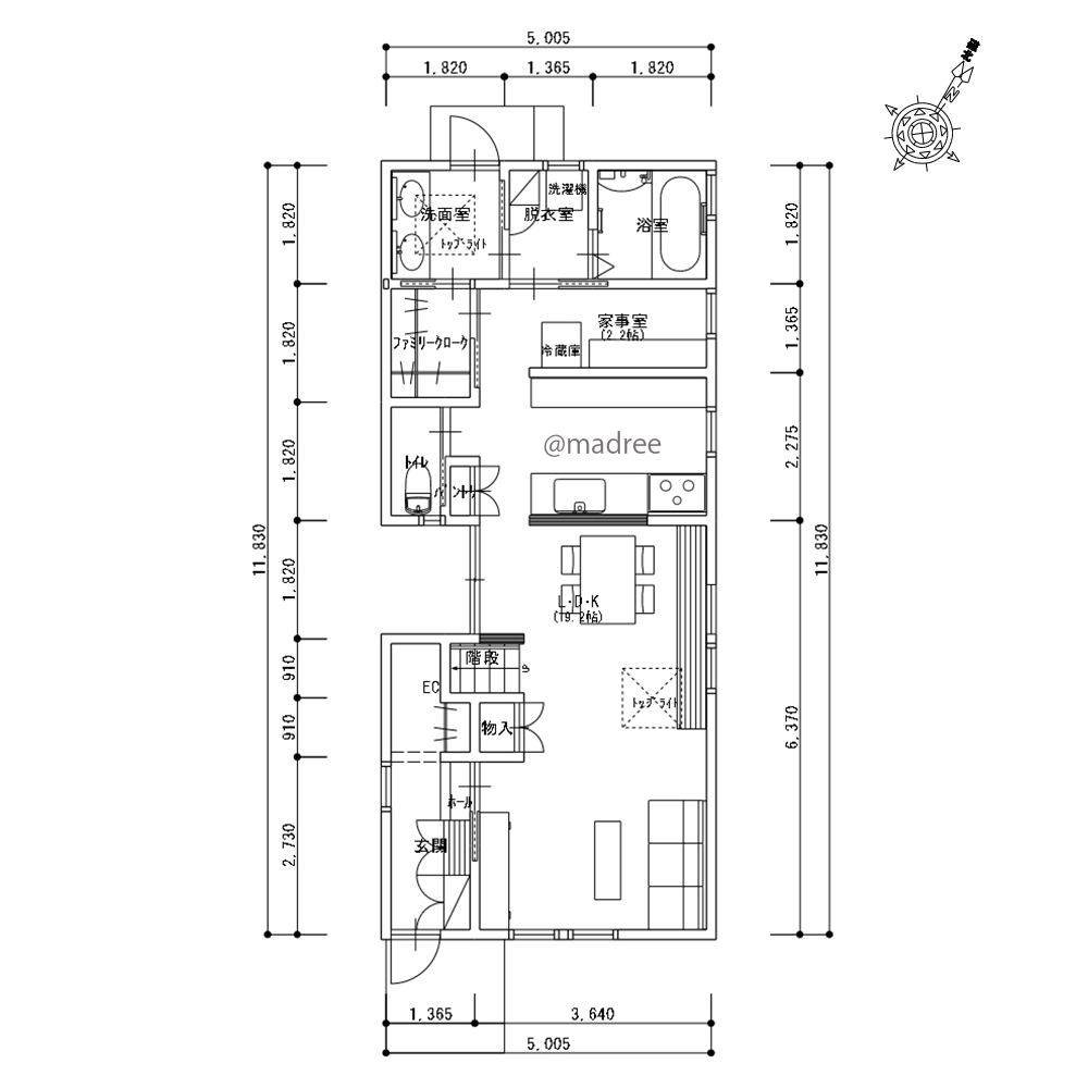
■1階
・階段下を利用し、エントランスクロークを設けました。
・玄関からリビングに入ると、南北に長いLDKとなります。大きめのトップライトを設け、上部からの採光を確保しました。
・玄関横に収納を設け、ランドセルなどを隠して収納できます。
・リビング内階段となっているので、2階へ上がる家族の様子が良く分かります。
・ダイニング横にカウンターを設置し、勉強やパソコンなどに利用できるようにしました。
・ダイニング西側にウッドデッキを設置しました。目の届く場所で、外部からの視線を気にする事なく、外遊びや家族団欒の時間に利用できます。
・庭を設ける事で、LDKに更に明るさを取り込みました。
・キッチンは対面式とし、背面にカウンタータイプのカップボードを配置しました。
・キッチン裏の家事室に、冷蔵庫やレンジなど、見せたくない物を収納できます。
・水廻りは、浴室→脱衣室→洗面室→ファミリークロークという繋がる動線計画としました。
・洗面室は部屋干しに利用できるよう、トップライトを設けています。
■2階
・階段を上がると、目の前に大きな窓から視界が開けます。
・ホールは東にも西にも開けており、開放感のある空間となっています。
・南側に主寝室を設け、隣接してウォークインクローゼットを設置しました。衣類や季節外の物も収納できます。
・北側に子ども部屋を2つ続けて配置しました。将来間仕切り出来るようになっています。
・トイレを少し多きめに計画し、手洗い場も設けました。
・ホールに面して物入れを設け、掃除機など家族共用の収納スペースとして利用できます。
・ホール上部に小屋裏収納を設けました。階段で登る計画です。
30坪 2LDK関連の間取り
マドリー開発の『住宅営業支援ツール』
madreeデータバンク
マドリーの人気間取り4,800プランを接客・提案に活用できる営業支援ツール
- 競合他社と差がつく、スピード提案
- トレンド間取りで、集客・受注数UP
- 建築家のアイデアを参考に、質の高い提案ができる









