[35坪 4LDK] 三世帯どこからもアクセス良好、明るいLDKに自然と家族の足が向かう家の間取り
全国の建築家から間取りが集まるmadree(マドリー)で集まった35坪、4LDKの間取りです。外とつながるLDKやアウトドアリビングが特徴の注文住宅の間取りです。
三世帯どこからもアクセス良好、明るいLDKに自然と家族の足が向かう家はこのような方におすすめです
・40代共働き夫婦、2人姉妹(6歳、5歳)、犬1匹
・立て替え後同居予定:妻祖母92歳、妻母70歳、猫1匹
・趣味:オートキャンプ、読書、料理、お皿収集
・花粉症でほとんど室内干しするので、家族の邪魔にならない物干しスペースを設けたい。
・女比率が高いので、2人並んで身支度できる広さの洗面台にしたい。
三世帯どこからもアクセス良好、明るいLDKに自然と家族の足が向かう家の間取りアイデア
- 屋外で非日常感楽しむ
- 思い出を飾るギャラリー
- 子どもが自由に遊べるスペース
- ダイニング学習スペース
- 在宅ワークスーペース
- 見守るワークスペース
- 安心して遊べる庭
- プライバシー守る脱衣洗面室
- 天気も視線も気にせず物干し
- 部屋干しスペースで家事効率UP
- 物をLDKに持ち込まない動線
- 片付けしながらの帰宅後動線
- バルコニーで楽々布団干し
- 景観を損ねない部屋干しスペース
- キッチン近くの水廻り動線
- 一列に並んだ水廻り
- 回遊性のある水廻り
- 屋内外が繋がる回遊動線
- キッチン中心の回遊動線
- 風が抜ける窓の配置
- 家中を心地よく風が抜ける
- 大きな吹抜で採光確保
- 天窓/高窓から自然の光取り込む
- 吹抜で家族が繋がる
- 適所収納で使いやすく片付ける
- 壁面収納で収納量確保
- 隠せるパントリー
- 大人数に対応できるLDK
- 庭の緑に癒されるLDK
- 子どものプライベート守る個室の配置
全国対応になりました
建築家・デザイナー
からのコメント
【全体のコンセプト】
・家族を感じながら、プライバシーもある明るい家。
■全体配置
・建物を隣地の東側に寄せ、西側の採光と眺望を確保しました。
・園芸エリアを高低差のある陽当たりの良い南側に設けました。
・駐車場2台を北側に配置しました。
・シンプルな形状で、コストも抑えられる構造です。
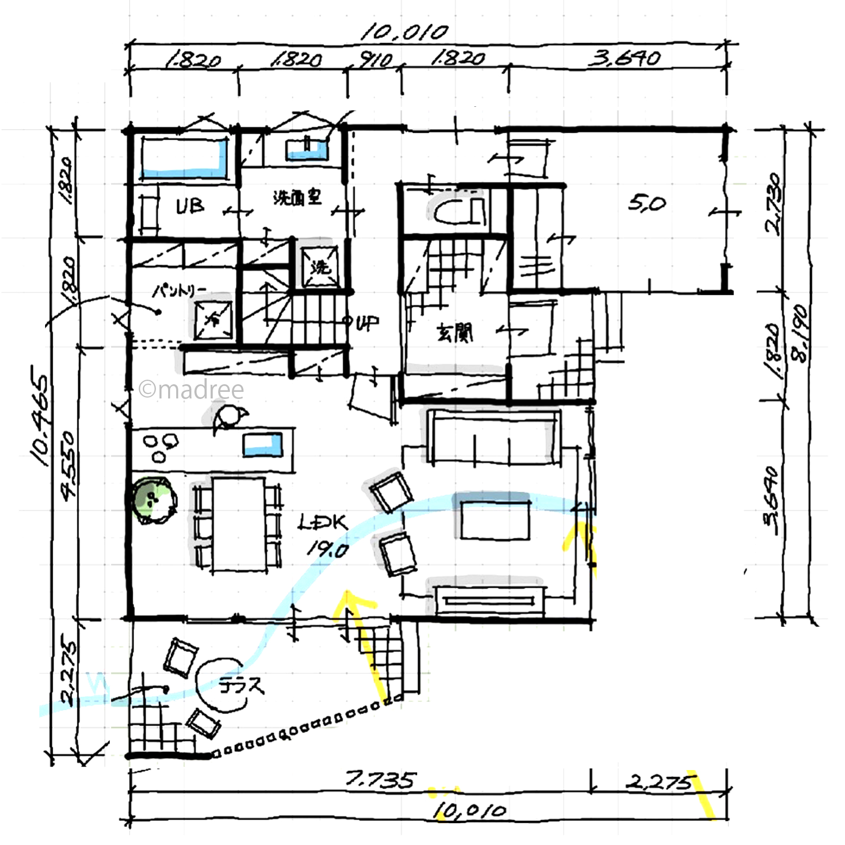
■1階
・LDKとウッドデッキを繋げ、広がりを演出しました。
・リビング上部の吹抜により、更に空間が広く感じられます。
・キッチンから屋外を見渡せます。
・LDK周りに、本棚や皿を飾れるスペースを長く設置しました。
・キッチン・パントリー・水廻りが一直線で、家事を効率良く行えます。
・3人並んでもゆったり使える洗面スペースとしました。ミラー収納を壁一面に設置しています。
・祖母部屋に、本棚と寛げる縁側を配置しました。
■2階
・母部屋を南側に配置し、吹抜と繋げる事で採光を確保しました。
・主寝室にWICを備えました。
・子ども部屋にバルコニーを隣接させ、隣家との距離と取りつつ、採光を確保しました。
・階段昇降の際、インナーバルコニーから外が見え、リビングでの様子を感じられます。
35坪 4LDK関連の間取り
マドリー開発の『住宅営業支援ツール』
madreeデータバンク
マドリーの人気間取り4,800プランを接客・提案に活用できる営業支援ツール
- 競合他社と差がつく、スピード提案
- トレンド間取りで、集客・受注数UP
- 建築家のアイデアを参考に、質の高い提案ができる









