[32坪 4LDK] 四季を感じるワークスペースで、気持ち穏やかに在宅時間過ごす家の間取り
全国の建築家から間取りが集まるmadree(マドリー)で集まった32坪、4LDKの間取りです。外とつながるLDKやアウトドアリビングが特徴の注文住宅の間取りです。
四季を感じるワークスペースで、気持ち穏やかに在宅時間過ごす家はこのような方におすすめです
・30代共働き夫婦(子ども1〜2人予定)
・趣味:読書、研究、料理、庭いじり、山登り
・収納スペースに扉を設けて、中が見えないようにしたい。
・景色を楽しめるように、景観を活かした庭や窓の配置にしたい。
四季を感じるワークスペースで、気持ち穏やかに在宅時間過ごす家の間取りアイデア
- 屋外で非日常感楽しむ
- 趣味に夢中になれる部屋
- 子どもが自由に遊べるスペース
- ダイニング学習スペース
- 開放的なスタディースペース
- 在宅ワークスーペース
- 見守るワークスペース
- 図書館のような本棚
- 安心して遊べる庭
- 篭れる書斎
- プライバシー守る脱衣洗面室
- 天気も視線も気にせず物干し
- 部屋干しスペースで家事効率UP
- 帰宅後即シャワーの動線
- 物をLDKに持ち込まない動線
- 片付けしながらの帰宅後動線
- バルコニーで楽々布団干し
- 景観を損ねない部屋干しスペース
- 洗濯仕事が一箇所で完結
- シンプルな家事動線
- 一列に並んだ水廻り
- 回遊性のある水廻り
- 屋内外が繋がる回遊動線
- 風が抜ける窓の配置
- 家中を心地よく風が抜ける
- 天窓/高窓から自然の光取り込む
- 適所収納で使いやすく片付ける
- 片付けが苦手でもスッキリ魅せる
- 隠せるパントリー
- 庭の緑に癒されるLDK
- 寝るだけの小さな子ども部屋
- 子どものプライベート守る個室の配置
全国対応になりました
建築家・デザイナー
からのコメント
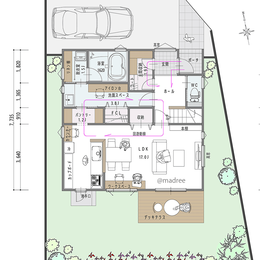
【全体のコンセプト】
・読書と家庭菜園を楽しむ家。
■1階
・玄関を道路から見えない位置に配置しました。大きな窓のある明るい空間です。
・帰宅の際、土間収納を経由してホールに出られる2WAY動線です。玄関を綺麗にキープしやすくしています。
・LDK全体が陽当たりの良い南側に面していて、明るく緑に囲まれるような空間となっています。
・リビングがデッキテラスに段差なしで繋がるので、広さや開放感を感じられます。
・日用品などをサッと片付けられる、便利なリビング収納を設けました。
・キッチンカウンターで、簡単に食事をしたり、料理の合間に本を読んだりできます。
・勝手口を設け、キッチンから庭に出られるようにしました。
・洗面室へは、玄関ホールとパントリー両方からアクセスできます。
・カウンター付きの洗面室にFCLを設け、洗濯仕事が楽に行えるうようにしました。
・トイレは来客の使用も考慮し、ファミリースペースではなく玄関ホールに単独で計画しました。
■2階
・眺望の良い南東角に、廊下と主寝室から出入りできる書斎を設けました。2人で使用しても窮屈にならない広さです。
・主寝室に広いWICを設けました。
・子ども部屋は広くありませんが、ベッドと勉強机が置けるスペースと収納を備えています。
・歯磨きができる洗面台を配置しました。
・布団が干せる程度のバルコニーを設けました。屋根にする変更する事や、バルコニーを広げる事も可能です。
32坪 4LDK関連の間取り
マドリー開発の『住宅営業支援ツール』
madreeデータバンク
マドリーの人気間取り4,800プランを接客・提案に活用できる営業支援ツール
- 競合他社と差がつく、スピード提案
- トレンド間取りで、集客・受注数UP
- 建築家のアイデアを参考に、質の高い提案ができる









