[33坪 2LDK] 来客いつでもウェルカム、生活感をキッチン裏にまとめた縦長の家の間取り
全国の建築家から間取りが集まるmadree(マドリー)で集まった33坪、2LDKの間取りです。外とつながるLDKやリビング吹抜が特徴の注文住宅の間取りです。
来客いつでもウェルカム、生活感をキッチン裏にまとめた縦長の家はこのような方におすすめです
・夫婦、0歳娘と3人家族/あと1人子ども予定
・趣味:旅行、映画鑑賞
・リビングはダイニングとはゆるくわけて、落ち着く心地よいリビングにしたい。
・友人を招くことが多いので、生活感が隠したい。
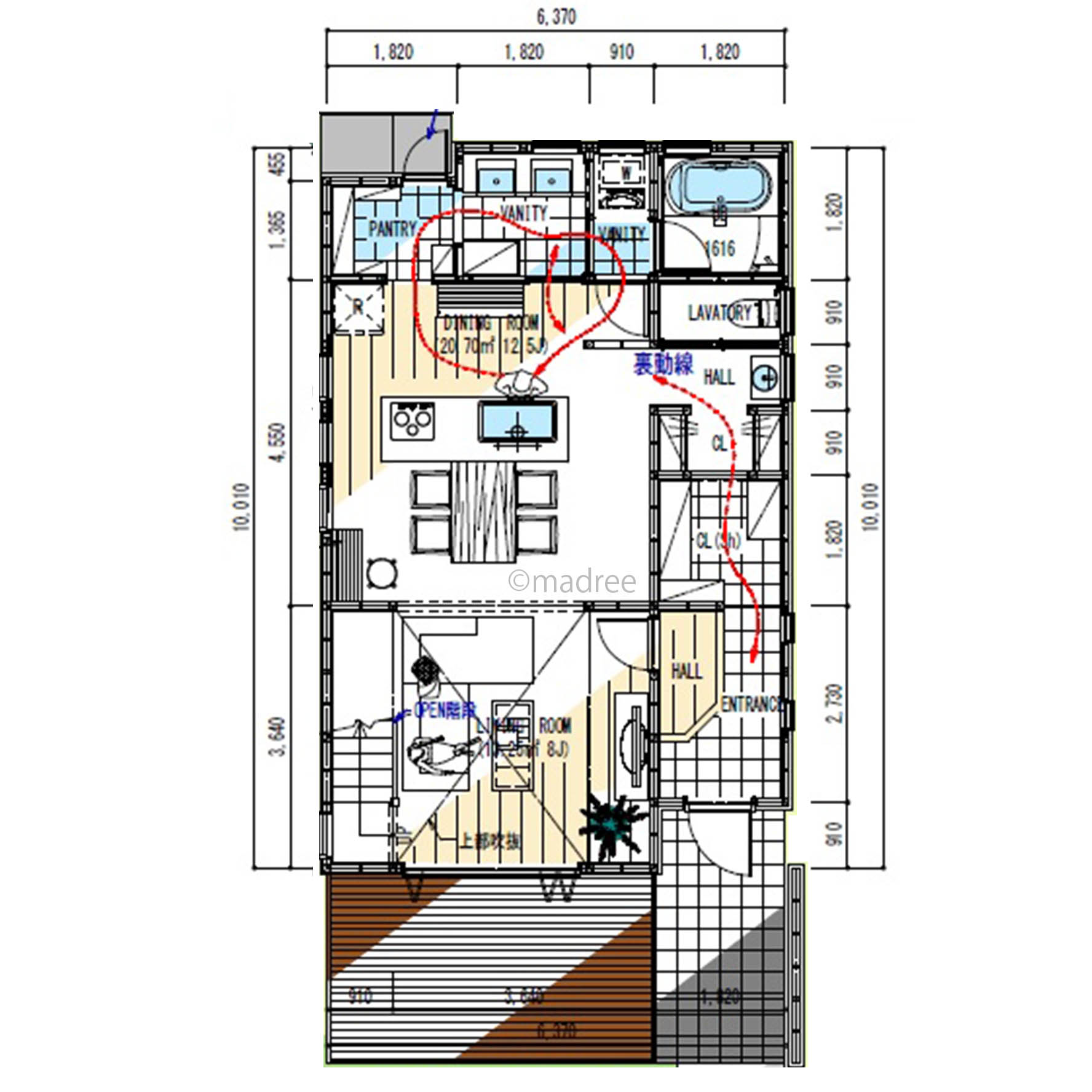
来客いつでもウェルカム、生活感をキッチン裏にまとめた縦長の家の間取りアイデア
全国対応になりました
| 広さ | |
|---|---|
| 階数 | |
| 部屋数 | |
| 家族人数 | |
| 土地特徴 | |
| 特徴 | |
| 担当建築家・デザイナー |
建築家・デザイナー
からのコメント
【全体のコンセプト】
・縦長の敷地形状を生かし工夫されたプランを考えてみました。敷地が角地と言う良い条件なので、道路にそうようにLDKを配置し、室内へ光を取り入れるようにしました。そしてなるべく南側にスペースを作り、そこへサンデッキを備えた庭とカースペースを設けました。
【こだわりのポイント】
■1階
・明るさを考慮して2階LDK案も考えてみましたが、2面が道路なので、道路に面してLDKを配置することにより、自然光が入ってくるのと、水廻り動線と玄関からの裏動線をスムーズにする事を考えて1階にLDKを配置するゾーニングとなりました。
・リビングとDKをキッチリ分けることも出来ますし、南側フォールディングドアをオーブンしてLDKからサンデッキまでの中と外の空間を一体で楽しむ事も出来ます。初夏の気持ちいい天気の時、お友達を大勢呼んでBBQなんかも楽しいと思います。
・玄関は2WAYにしまして、一つはリビングへ、もう一つは土間+クローゼットを通りキッチンへ向かいます。そのキッチンはアイランド型にして開放感と広がりを感じれるようにしました。
・ダイニングでは家族団らんでお食事や、お友達を招いてお料理の披露、そしてお子様が宿題や奥様がパソコン作業を出来るようにスモールデスクを設けました。 また、キッチンにいて、パントリー、洗面所、洗濯機と動線を一筆書きになるように工夫しまして、更にパントリー奥の勝手口からゴミを搬出出来るようにしました。
・玄関横の土間収納は、お部屋に持ち込みたくないベビーカーや、お外遊び道具なども収納出来ます。
・リビングは上部に吹抜を設け、更に階段をストリップ階段にする事により空間を装飾的に、開放的に楽しめるかと思います。
■2階
・2階へ上がるとまず吹抜からの下階への空間を感じる事が出来ます。
・お子様のお部屋は北側へ配置し、将来的に間仕切りするようにして当面は1部屋使いになっております。
・南側へ主寝室とその室内へWIC、そして主寝室から使えるバルコニーは壁を付けて軒を深くし、多少の雨でも洗濯物が干せるよう考えました。
・2階へもトイレを設置し、その中にはコンパクトな洗面所も設けました。
33坪 2LDK関連の間取り
マドリー開発の『住宅営業支援ツール』
madreeデータバンク
マドリーの人気間取り4,800プランを接客・提案に活用できる営業支援ツール
- 競合他社と差がつく、スピード提案
- トレンド間取りで、集客・受注数UP
- 建築家のアイデアを参考に、質の高い提案ができる









