[52坪 4LDK] 憧れのガレージでつくる趣味空間と、将来同居を見据えた家事ラク動線の家の間取り
全国の建築家から間取りが集まるmadree(マドリー)で集まった52坪、4LDKの間取りです。外とつながるLDKやアウトドアリビングが特徴の注文住宅の間取りです。
憧れのガレージでつくる趣味空間と、将来同居を見据えた家事ラク動線の家はこのような方におすすめです
・母と姉と暮らす30代男性/結婚したらこちらの家に同居予定
・趣味:車、バイク、庭いじり
・将来的に2.5世帯住宅としたいので、個々の時間も大切にできるスペースを確保したい。
・家事負担が最低限になるよう、キッチン中心の家事動線を希望。
憧れのガレージでつくる趣味空間と、将来同居を見据えた家事ラク動線の家の間取りアイデア
- 屋外で非日常感楽しむ
- 縦列駐車可能な駐車場
- キッチン近くのサービスヤード
- プライバシー守る脱衣洗面室
- 天気も視線も気にせず物干し
- 部屋干しスペースで家事効率UP
- 物をLDKに持ち込まない動線
- 片付けしながらの帰宅後動線
- バルコニーで楽々布団干し
- 景観を損ねない部屋干しスペース
- 洗濯仕事が一箇所で完結
- 分担しやすい家事動線
- シンプルな家事動線
- 生活音に配慮した水廻り動線
- キッチン近くの水廻り動線
- 回遊性のある水廻り
- 行き止まりない回遊動線
- 屋内外が繋がる回遊動線
- 天窓/高窓から自然の光取り込む
- まとめ買い安心大容量パントリー
- ステップダウンフロアでゆるく空間仕切る
- 庭の緑に癒されるLDK
- 緩やかに区切られたLDK
- 開口窓で開放的なリビング
- 土間の自転車/バイク置き場
- 来客が気軽に宿泊できる
全国対応になりました
| 広さ | |
|---|---|
| 階数 | |
| 土地特徴 | |
| 部屋数 | |
| 家族人数 | |
| 特徴 |
|
| 担当建築家・デザイナー |
建築家・デザイナー
からのコメント
【こだわりのポイント】
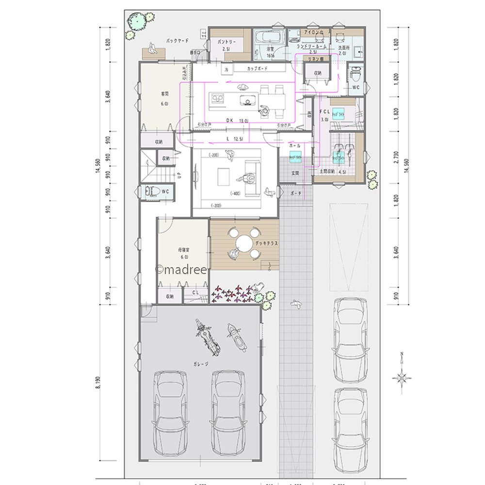
■1階
・ビルトインガレージは車いじりなどの作業ができる広さにし、ビルトイン以外の車は並列でも縦列でも止められるような配置計画にしました。
・玄関は防犯のため、あえて道路から見える位置にし、自転車を止められる土間収納とファミクロを設けました。トップライトより風や光を取り込みます。
・帰宅後はファミクロの奥の洗面所にて手洗いやうがいができます。隣はランドリールームには、アイロン掛けや洗濯を畳むカウンターを設け、室内干しもできるようにしました。
・キッチン側からも水廻りにアクセスできる回遊動線なので、料理をしながら洗う・干す・畳む・収納が簡単な家事ラク動線になっています。
・リビングとDKの間は引き分け戸にして、その時々で独立させたり、一体的に広く使用したりできます。
・リビングはダウンリビングにして、デッキテラスに繋げ、広く開放感をもたせました。天井高を20cm程度上げたいとことので、階段は一般より一段多くしました。
・ダイニングは配膳が楽なキッチン横並びにして、左右両方が通り抜けられる回遊性をもたせました。
・パントリーは2.5畳とし、食材や日用品のストックをたっぷりと収納でき、勝手口よりバックスペースに出られるようにしました。ゴミや泥付き野菜の一時置きに便利かと思います。
・お母さまの部屋は2階の足音などが気にならないよう、上に居室をのせず、布団収納やクローゼットを作って、デッキテラスに出られるようにしました。小さな庭スペースがあるので、好きな花や植木の手入れもでき、将来万一車椅子など必要になった際も、大きな窓から出入りできるようにしました。また、広い家なのでお母さまの寝室の近くにもトイレを設置しました。不要でしたら収納に変更可能です。
・客間は普段扉を開けてDKと一体的に使用できますが、廊下からも出入りができるので、壁にしてふさいでしまっても大丈夫です。こちらにも布団収納があります。
■2階
・バルコニーはホールから出られるので、洗濯を干したり主寝室からの布団干しに便利です。
・WICのあるお姉さまの部屋と、将来パートナーさまと同居になったときに困らないよう少し大きめの主寝室を設けました。
・2階は面積に余裕があるので、増やしたり減らしたり色々なアレンジが可能です。
■その他
・ガレージと家を廊下で繋げて中から行き来ができるようにしましたが、不要でしたら廊下部分をカットできます。
52坪 4LDK関連の間取り
マドリー開発の『住宅営業支援ツール』
madreeデータバンク
マドリーの人気間取り4,800プランを接客・提案に活用できる営業支援ツール
- 競合他社と差がつく、スピード提案
- トレンド間取りで、集客・受注数UP
- 建築家のアイデアを参考に、質の高い提案ができる









