[50坪 3LDK] 廊下をなくして裏動線を充実、空間にゆとり生まれるリラックスハウスの間取り
全国の建築家から間取りが集まるmadree(マドリー)で集まった50坪、3LDKの間取りです。外とつながるLDKやアウトドアリビングが特徴の注文住宅の間取りです。
廊下をなくして裏動線を充実、空間にゆとり生まれるリラックスハウスはこのような方におすすめです
・20代夫婦、娘1歳/あと2人子ども希望
・趣味:釣り、ゴルフ、漫画
・子どもが自由に遊ばせたいので、キッチンから外の様子も把握しやすいようにしたい。
・よく来客があるので、洗濯物は見えない位置に外干ししたい。
廊下をなくして裏動線を充実、空間にゆとり生まれるリラックスハウスの間取りアイデア
- 屋外で非日常感楽しむ
- 子どもが自由に遊べるスペース
- 開放的なスタディースペース
- 在宅ワークスーペース
- 見守るワークスペース
- 安心して遊べる庭
- プライバシー守る脱衣洗面室
- 身支度に便利な2ボウル洗面台
- 天気も視線も気にせず物干し
- 部屋干しスペースで家事効率UP
- アレルギーに配慮したランドリールーム
- 物をLDKに持ち込まない動線
- 片付けしながらの帰宅後動線
- バルコニーで楽々布団干し
- 景観を損ねない部屋干しスペース
- キッチン近くの水廻り動線
- 一列に並んだ水廻り
- 行き止まりない回遊動線
- 屋内外が繋がる回遊動線
- キッチン中心の回遊動線
- 家中を心地よく風が抜ける
- 大きな吹抜で採光確保
- 天窓/高窓から自然の光取り込む
- 吹抜で家族が繋がる
- 廊下なしコンパクトな生活動線
- 適所収納で使いやすく片付ける
- 片付けが苦手でもスッキリ魅せる
- まとめ買い安心大容量パントリー
- 大人数に対応できるLDK
- 庭の緑に癒されるLDK
- 開口窓で開放的なリビング
- 将来を見据えた1階主寝室
- 来客が気軽に宿泊できる
- ウッドデッキを家事用と家族用に分ける
全国対応になりました
建築家・デザイナー
からのコメント
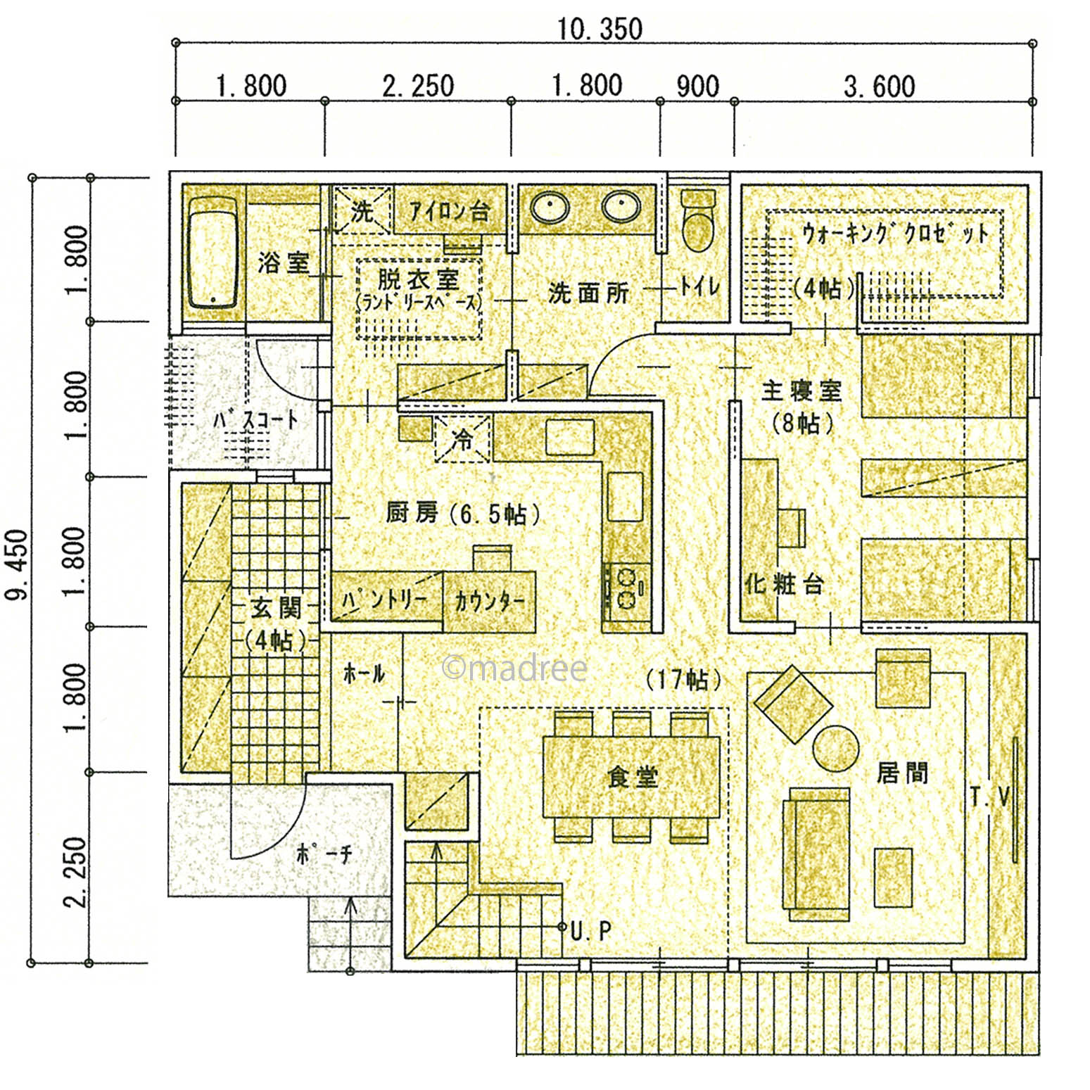
【全体のコンセプト】
周囲からのプライバシーを守りながら使い勝手のいい水廻り動線、坪数に見合った明るくて遊び心のある家を目指してプランニングしました。
【各所のポイント】
■1階
・玄関は軒の深いポーチで雨風を防ぎ、玄関扉は道路から見えにくい位置にあり、家族のプライバシーも守れます。
・玄関ホールを入るとゆとりのある壁面が眼前に広がります。壁面装飾などもオススメです。直接見えにくい位置にトイレを配置し、帰宅後に便利な手洗いを設けました。
・裏動線として大容量の土間収納~ファミリークロークと使い勝手のいい収納スペースが続きます。
・LDKはI型で約26帖(キッチン収納込み)にしました。
・階段途中にスキップフロア形状(1階床+60cm)のスタディ・PCコーナーを設けました。LDKを見渡しながら、作業や勉強のできる楽しいスペースです。和室は奥様の目の届く程よい位置で南側吊押入下部から美しい光を取込みます。
・アイランドキッチンを起点に使いやすくゆとりのある直線形状の水廻りや収納スペースをまとめました。
・ランドリー室と和室に囲まれる外部スペースをデッキ敷としました。南側隣地に目隠しの壁を建て、プライバシーの守られるスペースです。晴れた日の洗濯物干しとしても使用できます。上部に可動式のオーニング屋根もオススメです。
■2階
・吹抜を起点に寝室ゾーンと子どもゾーンに分けました。リビングのメインの吹抜と中二階の吹抜けの間の渡り廊下が、歩くだけでも楽しい空間になると思います。
50坪 3LDK関連の間取り
マドリー開発の『住宅営業支援ツール』
madreeデータバンク
マドリーの人気間取り4,800プランを接客・提案に活用できる営業支援ツール
- 競合他社と差がつく、スピード提案
- トレンド間取りで、集客・受注数UP
- 建築家のアイデアを参考に、質の高い提案ができる









