[37坪 2LDK] ウォークスルーのファミクロと水廻りで朝もラクラク、緑に癒される回遊動線の平屋の間取り
全国の建築家から間取りが集まるmadree(マドリー)で集まった37坪、2LDKの間取りです。外とつながるLDKやアウトドアリビングが特徴の注文住宅の間取りです。
ウォークスルーのファミクロと水廻りで朝もラクラク、緑に癒される回遊動線の平屋はこのような方におすすめです
・30代共働き夫婦、娘0歳
・趣味:
・生活感が出ないようにしたいので、リビング収納を設けたい。
・朝の準備がはかどるよう、ファミクロと水廻りは回遊性をもたせたい。
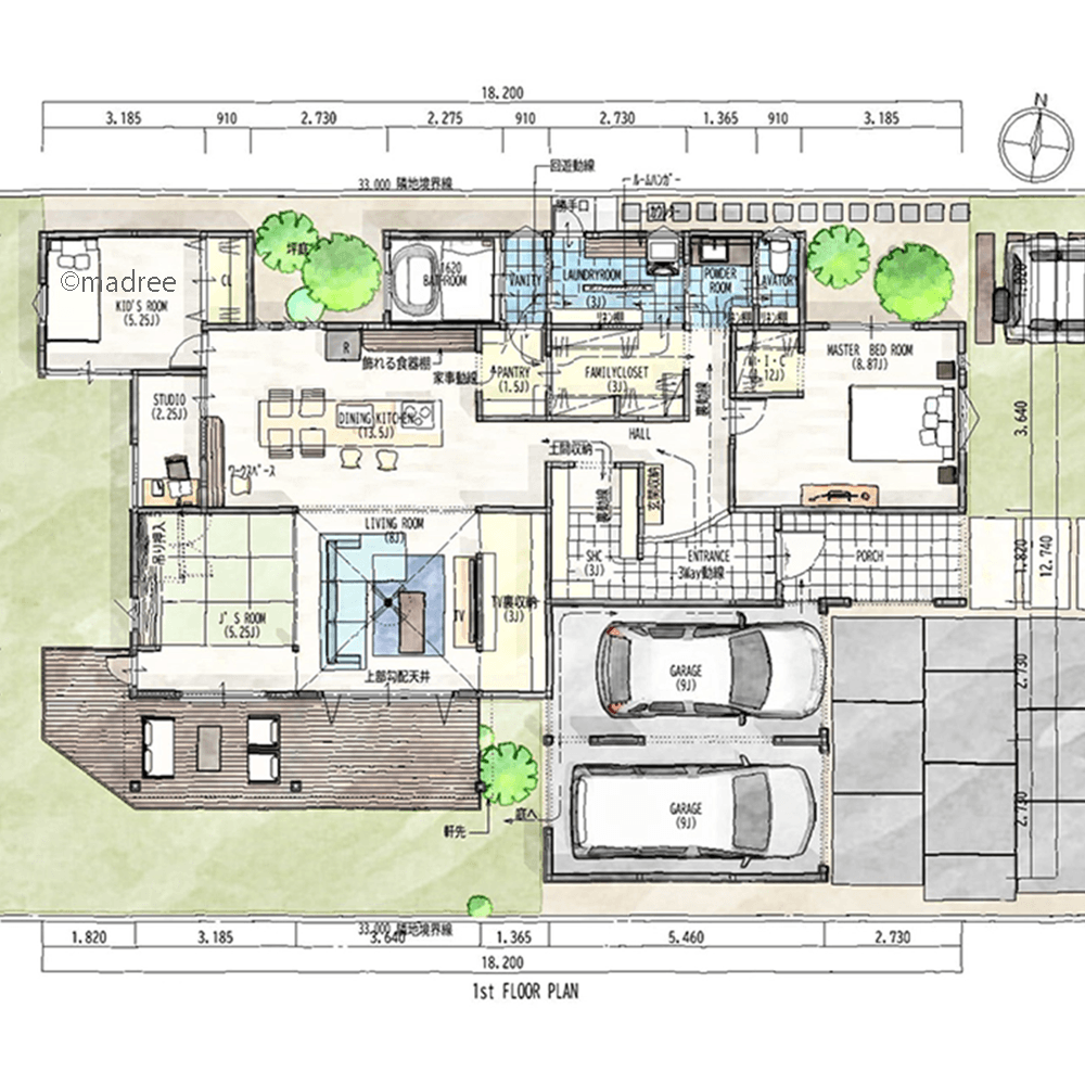
ウォークスルーのファミクロと水廻りで朝もラクラク、緑に癒される回遊動線の平屋の間取りアイデア
全国対応になりました
建築家・デザイナー
からのコメント
【全体のコンセプト】
「理想を追い求める家」
【こだわりのポイント】
・LDKを一体的空間で建物の中心に配置し、リビングと繋がるように畳コーナーを持ってきました。
・リビング上部は、屋根形状に合わせ勾配天井とし、開放感を味わえるようにしました。
・リビングの壁掛けテレビの裏側に収納を設け、LDKに散らばりやすい物を隠せればとも思います。
・畳コーナーは、洋間に置かれた“和“と言うイメージで、南側の角に化粧柱のみ設けました。また、宙に浮くように押入れを吊り、下部と左となりは飾り物スペースとしました。
・キッチンは、フルフラットのアイランド型とし、作業性の良い横並びのダイニングテーブルを設定しました。
・キッチンの隣にはパントリー、ファミリークローゼット、洗面、トイレ、ランドリールーム、脱衣室、浴室が回遊出来るように並びます。洗濯物を洗って、干して、畳んで収納すると言う一連の作業がシンプルに行えるようになるかと思います。
・ファミリークローゼットは主寝室とエントランスから近い位置に配置させ、忙しい朝の身支度がスムーズにいくよう配慮しました。
・ランドリールーム内へは、カウンター、下着やタオル等のリネン棚、天井にルームハンガー、勝手口を設けました。
・エントランスは、土間収納を介する動線、直接ホールよりLDKへ誘導される動線、更に、洗面スペース、ランドリールーム等を介してキッチンへ誘導される裏動線3wayとしました。エントランスの近い位置に洗面スペースを配置させた事で、昨今のウィルス対策にも考慮しました。
・外部はリビングの外に屋根付きでウッドデッキを設け、BBQやアフタヌーンティーを楽しめるようにしました。
・ガレージはビルトインガレージを2台分確保しました。
37坪 2LDK関連の間取り
マドリー開発の『住宅営業支援ツール』
madreeデータバンク
マドリーの人気間取り4,800プランを接客・提案に活用できる営業支援ツール
- 競合他社と差がつく、スピード提案
- トレンド間取りで、集客・受注数UP
- 建築家のアイデアを参考に、質の高い提案ができる









