[22坪 2LDK] 圧迫感のない自然光が入るLDK、小屋裏まで空間を活用した狭小地住宅の間取り
全国の建築家から間取りが集まるmadree(マドリー)で集まった22坪、2LDKの間取りです。外とつながるLDKや広く感じるLDKが特徴の注文住宅の間取りです。
圧迫感のない自然光が入るLDK、小屋裏まで空間を活用した狭小地住宅はこのような方におすすめです
・30代共働き夫婦、幼児男1人、乳児女1人
・趣味:読書、料理
・階段をリビングから見える配置にしたい。
・敷地が狭いので、小屋裏収納で収納量を確保したい。
圧迫感のない自然光が入るLDK、小屋裏まで空間を活用した狭小地住宅の間取りアイデア
全国対応になりました
| 広さ | |
|---|---|
| 土地特徴 | |
| 階数 | |
| 部屋数 | |
| 家族人数 | |
| 特徴 |
|
| 担当建築家・デザイナー |
建築家・デザイナー
からのコメント
【全体のコンセプト】
・目一杯の建坪で建物を設定。
・明るく暮らしやすい、南向き1階LDK。
・無駄なスペースのない間取り。
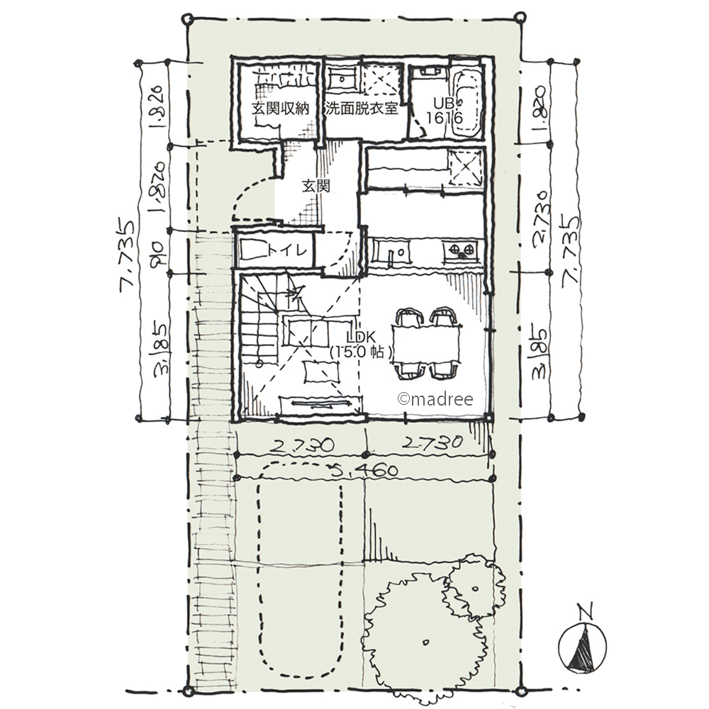
■1階
・西側を広めに確保し、その部分にアプローチ兼駐車場を配置しました。
・玄関ホールに、大容量の土間収納を設けました。使いやすい2WAY動線としています。
・縦長LDKは、開放的な風通しの良い空間です。
・リビングを経由して2階に上がる配置としました。家族がいつでも顔を合わせる事ができます。
■2階
・ホール、各個室、小屋裏に収納スペースを設けました。
・主寝室の空間を邪魔しない位置に、造作ドレッサーを設けました。
22坪 2LDK関連の間取り
マドリー開発の『住宅営業支援ツール』
madreeデータバンク
マドリーの人気間取り4,800プランを接客・提案に活用できる営業支援ツール
- 競合他社と差がつく、スピード提案
- トレンド間取りで、集客・受注数UP
- 建築家のアイデアを参考に、質の高い提案ができる









