[40坪 4LDK] 大きな吹抜で光呼び込む、採光と風通し良いL字型の家の間取り
全国の建築家から間取りが集まるmadree(マドリー)で集まった40坪、4LDKの間取りです。外とつながるLDKやリビング吹抜が特徴の注文住宅の間取りです。
大きな吹抜で光呼び込む、採光と風通し良いL字型の家はこのような方におすすめです
・40代夫婦と、歳の離れた三姉妹
・夫はPC好きで週末はメンテナンスを行う、子ども達もインドア派
・片付けが苦手なので、急な来客に対応できるようにしたい
・子どもが好きな場所で好きな事をできるようなリビングが理想
大きな吹抜で光呼び込む、採光と風通し良いL字型の家の間取りアイデア
全国対応になりました
| 広さ | |
|---|---|
| 階数 | |
| 部屋数 | |
| 家族人数 | |
| 土地特徴 | |
| 特徴 |
|
| 担当建築家・デザイナー |
建築家・デザイナー
からのコメント
●全体コンセプト
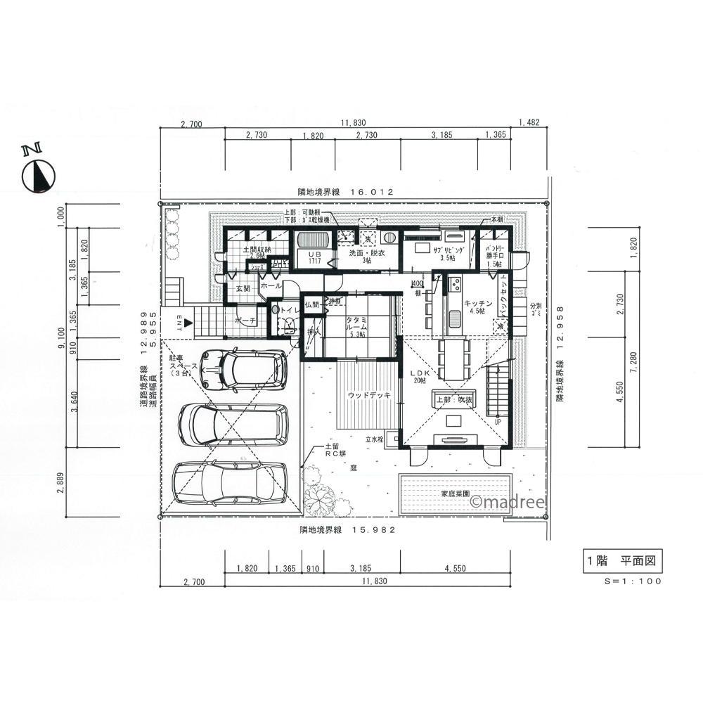
西側からの日差しを取り入れられるように、西側南西に開いたL字型にしました。 LDK、タタミルームには東西南北に窓を設け、風通し良くしました。リビング、ダイニングに当たるスペース上部には12帖分の吹抜にし、その天井にはシーリングファンを設置し、空気を回すことで快適な空間になるようにプランニングしました。
●1階
キッチンは半独立空間にし、壁と腰壁を設け、直接流し台を見られないようにしました。 タタミルームをLDKに隣接させ、来客時にはLDKを 通らず北側の入り口から出入りできます。将来を考え、タタミルームは小上がりとせず、バリアフリーでフラットと考えています。子どもの多様性を育むためにも「好きなことを好きな場所で」と思い、サブリビングを設け、更にキッチンカウンターでも工作や勉強もできればと思います。
●2階
吹抜の東西南側には採光用の窓を設けてあります。西側には長女、次女の部屋、サブルーム、納戸を設けています。 書斎は作業が捗るよう独立した部屋にしました。のちにサブルームが使用用途としてなかった場合は、衣装部屋と利用されても良いと思います。
40坪 4LDK関連の間取り
マドリー開発の『住宅営業支援ツール』
madreeデータバンク
マドリーの人気間取り4,800プランを接客・提案に活用できる営業支援ツール
- 競合他社と差がつく、スピード提案
- トレンド間取りで、集客・受注数UP
- 建築家のアイデアを参考に、質の高い提案ができる









