[36坪 4LDK] L字型デッキと吹抜から光を取り込む、屋内外で過ごす家族を明るいLDKから見守る家の間取り
全国の建築家から間取りが集まるmadree(マドリー)で集まった36坪、4LDKの間取りです。外とつながるLDKやアウトドアリビングが特徴の注文住宅の間取りです。
L字型デッキと吹抜から光を取り込む、屋内外で過ごす家族を明るいLDKから見守る家はこのような方におすすめです
・夫20代:会社員、妻20代:専業主婦、長男1歳、もう1人子どもが増える予定
・趣味:スポーツ、スノーボード
・朝の身支度がスムーズに行えるよう、各階に洗面台を設けたい。
・冷暖房効率を良くするため、階段に扉を付けたい。
L字型デッキと吹抜から光を取り込む、屋内外で過ごす家族を明るいLDKから見守る家の間取りアイデア
- 屋外で非日常感楽しむ
- 子どもが自由に遊べるスペース
- ダイニング学習スペース
- 在宅ワークスーペース
- 見守るワークスペース
- 安心して遊べる庭
- 天気も視線も気にせず物干し
- 部屋干しスペースで家事効率UP
- アレルギーに配慮したランドリールーム
- 物をLDKに持ち込まない動線
- 片付けしながらの帰宅後動線
- バルコニーで楽々布団干し
- 景観を損ねない部屋干しスペース
- 洗濯仕事が一箇所で完結
- シンプルな家事動線
- 屋内外が繋がる回遊動線
- キッチン中心の回遊動線
- 風が抜ける窓の配置
- 家中を心地よく風が抜ける
- 大きな吹抜で採光確保
- 天窓/高窓から自然の光取り込む
- 部屋を繋ぐウォークインクローゼット
- 適所収納で使いやすく片付ける
- 壁面収納で収納量確保
- 片付けが苦手でもスッキリ魅せる
- 隠せるパントリー
- 庭の緑に癒されるLDK
- 来客対応しやすい客間配置
- 視線遮る玄関アプローチ
- 玄関近くの廊下に洗面カウンター
- 来客が気軽に宿泊できる
- 子どものプライベート守る個室の配置
- キッチン近くの水廻り動線
- 一列に並んだ水廻り
- 大人数に対応できるLDK
全国対応になりました
建築家・デザイナー
からのコメント
【全体のコンセプト】
・リビングに自然と集まり、居心地よく過ごせる空間の家。
【こだわりのポイント】
■配置計画
・駐車場は道路側に並列に取り、なるべく南側に空地を確保しました。
・玄関近くに、自転車などが置ける スペースを設けました。
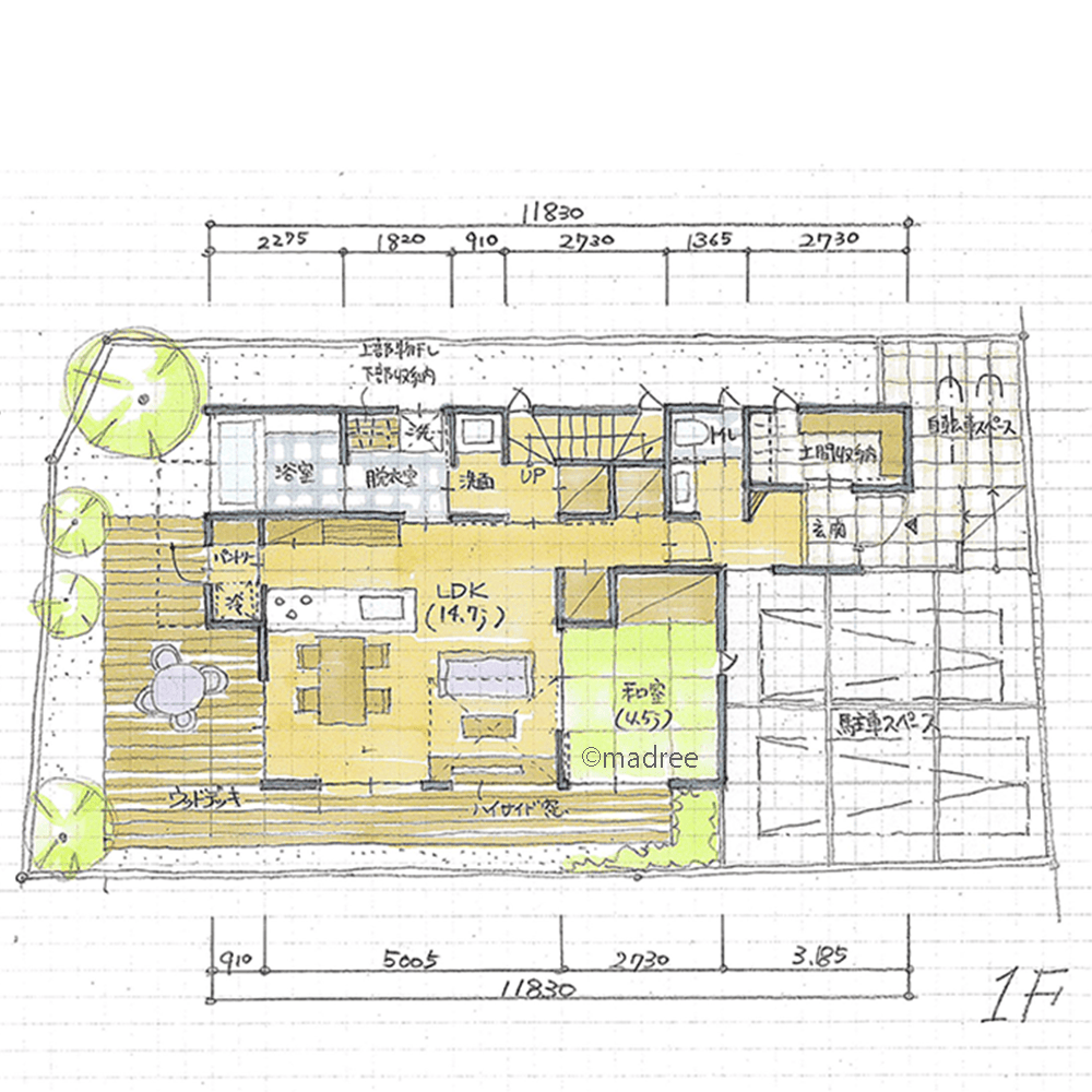
■1階
・玄関に、土間収納とコート掛けスペースを設けました。
・玄関脇に洗面台とトイレがあるので、帰宅後すぐ手洗いうがいをできます。
・LDKから、引き戸で和室と繋がるようにしています。
・階段まわり収納を多く設けました。
・キッチン奥にパントリーと勝手口を設けて、外干しの際はそこから出られるようにしました。
・LDKと和室はウッドデッキと繋がるので、外遊びの様子をキッチンから確認できます。
・LDKに光を取り込めるよう、南側に空地を取りました。
・採光対策として、リビング上部に吹抜、1階はハイサイドサッシ、2階は上部に大きな窓を設置する計画です。
■2階
・主寝室、子ども室2部屋、ストックルームを配置しました。
・トイレと洗面スペースを確保しています。
・子ども室は吹抜を挟んで配置し、室内窓からリビングの様子が分かるようにしています。
・LDKから2階の子ども達の気配を感じ取れます。
・吹抜に面した場所にフリースペースを設けました。
36坪 4LDK関連の間取り
マドリー開発の『住宅営業支援ツール』
madreeデータバンク
マドリーの人気間取り4,800プランを接客・提案に活用できる営業支援ツール
- 競合他社と差がつく、スピード提案
- トレンド間取りで、集客・受注数UP
- 建築家のアイデアを参考に、質の高い提案ができる









