[63坪 2LDK] 裏動線に生活感隠して来客ウェルカム、おもてなし上手な土間リビングのある家の間取り
全国の建築家から間取りが集まるmadree(マドリー)で集まった63坪、2LDKの間取りです。外とつながるLDKやアウトドアリビングが特徴の注文住宅の間取りです。
裏動線に生活感隠して来客ウェルカム、おもてなし上手な土間リビングのある家はこのような方におすすめです
・自営業の40代夫婦
・趣味:ファッション、料理、野球
・来客が多いので靴のままお茶ができる、土間リビングを設けたい。
・服やカバン、趣味の物が多いので大容量の収納で生活感を隠したい。
裏動線に生活感隠して来客ウェルカム、おもてなし上手な土間リビングのある家の間取りアイデア
- 屋外で非日常感楽しむ
- 在宅ワークスーペース
- プライバシー守る脱衣洗面室
- 天気も視線も気にせず物干し
- 部屋干しスペースで家事効率UP
- アレルギーに配慮したランドリールーム
- 物をLDKに持ち込まない動線
- バルコニーで楽々布団干し
- 景観を損ねない部屋干しスペース
- 洗濯仕事が一箇所で完結
- 回遊性のある水廻り
- 行き止まりない回遊動線
- 屋内外が繋がる回遊動線
- キッチン中心の回遊動線
- 家中を心地よく風が抜ける
- 大きな吹抜で採光確保
- 天窓/高窓から自然の光取り込む
- 適所収納で使いやすく片付ける
- まとめ買い安心大容量パントリー
- 隠せるパントリー
- 大人数に対応できるLDK
- 緩やかに区切られたLDK
- 開口窓で開放的なリビング
- 来客対応しやすい客間配置
- 来客が気軽に宿泊できる
- ウッドデッキを家事用と家族用に分ける
全国対応になりました
| 広さ | |
|---|---|
| 階数 | |
| 土地特徴 | |
| 部屋数 | |
| 家族人数 | |
| 特徴 |
|
| 担当建築家・デザイナー |
建築家・デザイナー
からのコメント
【コンセプト】
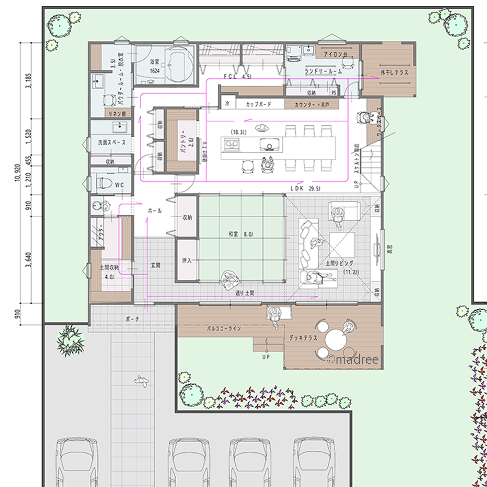
広い家なので生活が快適になるよう突き当りのない便利な回遊動線、収納、通り土間のあるお洒落で使いやすい家をイメージしてプランしました。
【こだわりのポイント】
■1階
・玄関は横幅も奥行きも広く、家に入った時に素敵な邸宅に入ったように感じられるようにしました。ホールからLDKに入る来客動線と、家族が土間収納で靴やアウターを脱いで手洗いをしてからホールに出られるファミリー動線、そして和室前の通り土間から直接リビングに行くことができる3WAY動線になっています。
・リビングや通り土間は横幅2.5mの大開口サッシでデッキテラスと繋がる明るい空間で、更にリビング上部は吹抜になっていて南と東の上部から光が注がれるので開放感があります。リビングだけで11.2畳と広く、お客様の荷物やコートなど置ける壁面収納を東側に作ると便利かと思います。
・デッキテラス上部はバルコニーを載せて庇代わりにし、雨の日や日差しの強い日でものんびり食事やBBQを楽しめるようにしました。
・ダイニングは配膳が楽なキッチン横並びにしました。左右両方から通り抜けられる広さなので、家族や友人と一緒に料理をしながらホームパーティーをしてもスムーズに動くことができます。
・東側スケルトン階段下はワークスペースとし、ちょっとしたパソコン作業などできるようにしました。
・トイレはお客様が使いやすいように玄関ホールに設け、広めのスペースにしています。
・洗面・脱衣室・ファミリークローゼット・ランドリールームはホールから流れるようにウォークスルーできます。また、DK側2か所からもアクセスできる回遊動線になっているので、生活動線としても便利です。
・屋根付きの外干しテラスはランドリールームから出られるようにして、料理をしながら洗う・干す・畳む・収納が簡単な家事ラク動線となっています。
・浴室は1.5坪タイプです。
■2階
・フリースペースは吹抜横の明るい場所にしています。壁を作って6畳の個室にすることもできますし、オープンのまま7.5畳の空間として使用できます。
・主寝室は13畳と広くしました。ただ広いだけですと物が置けずに使いづらいので、高さ1.8~2m位のヘッドボードを作りその西側をウォークスルーの壁面収納にする計画です。WICも夫婦で使用できるよう広くし、その他に書斎と納戸収納を設けました。
63坪 2LDK関連の間取り
マドリー開発の『住宅営業支援ツール』
madreeデータバンク
マドリーの人気間取り4,800プランを接客・提案に活用できる営業支援ツール
- 競合他社と差がつく、スピード提案
- トレンド間取りで、集客・受注数UP
- 建築家のアイデアを参考に、質の高い提案ができる









