[50坪 2LDK] さくっと片付く家事動線と収納で、テラス越しに外界を取り込むのびやかな家の間取り
全国の建築家から間取りが集まるmadree(マドリー)で集まった50坪、2LDKの間取りです。外とつながるLDKやアウトドアリビングが特徴の注文住宅の間取りです。
さくっと片付く家事動線と収納で、テラス越しに外界を取り込むのびやかな家はこのような方におすすめです
・30代共働き夫婦、異性の子ども3人(4歳,2歳0歳)
・趣味:キャンプ、ピクニック
・家事時短のため、普段使いの衣類はファミクロで家族全員分管理したい。
・子どもがワクワクするような、滑り台など遊び心あるリビングにしたい。
さくっと片付く家事動線と収納で、テラス越しに外界を取り込むのびやかな家の間取りアイデア
- 屋外で非日常感楽しむ
- 子どもが自由に遊べるスペース
- 開放的なスタディースペース
- 在宅ワークスーペース
- 安心して遊べる庭
- プライバシー守る脱衣洗面室
- 身支度に便利な2ボウル洗面台
- 天気も視線も気にせず物干し
- 部屋干しスペースで家事効率UP
- 物をLDKに持ち込まない動線
- 片付けしながらの帰宅後動線
- 景観を損ねない部屋干しスペース
- 洗濯仕事が一箇所で完結
- 分担しやすい家事動線
- シンプルな家事動線
- 屋内外が繋がる回遊動線
- 大きな吹抜で採光確保
- 天窓/高窓から自然の光取り込む
- 吹抜で家族が繋がる
- 大人数に対応できるLDK
- 庭の緑に癒されるLDK
- 開口窓で開放的なリビング
- 将来を見据えた1階主寝室
- ウッドデッキを家事用と家族用に分ける
全国対応になりました
| 広さ | |
|---|---|
| 階数 | |
| 土地特徴 | |
| 部屋数 | |
| 家族人数 | |
| 特徴 | |
| 担当建築家・デザイナー |
建築家・デザイナー
からのコメント
【全体のコンセプト】
「大テラスに面した吹抜のリビング」
大きな敷地の南側を開け、開放的な庭とした。開放的なリビングから庭に向かって大きなテラスを設けた。
【こだわりのポイント】
■1階
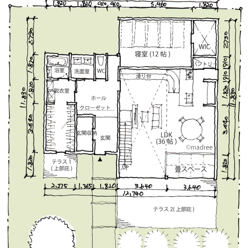
・玄関を入ると大きなホールがあり、西側は水廻り、東側はリビングと居室という構成とした。
・水廻りは洗面+脱衣室を別々とし、脱衣室には大きなクローゼットを兼ねたランドリースペースを確保した。
・リビングは畳スペースと一体の大きな吹抜のある空間とした。
・寝室は5人がベッドを並べられる広さを確保、押入れを兼ねたクローゼットを設けた。
■2階
・ホール兼書斎と吹抜が繋げ、家族を感じられるようにした。
・子ども部屋は広々16帖、将来的に3つに区切れるように配慮した。
50坪 2LDK関連の間取り
マドリー開発の『住宅営業支援ツール』
madreeデータバンク
マドリーの人気間取り4,800プランを接客・提案に活用できる営業支援ツール
- 競合他社と差がつく、スピード提案
- トレンド間取りで、集客・受注数UP
- 建築家のアイデアを参考に、質の高い提案ができる









