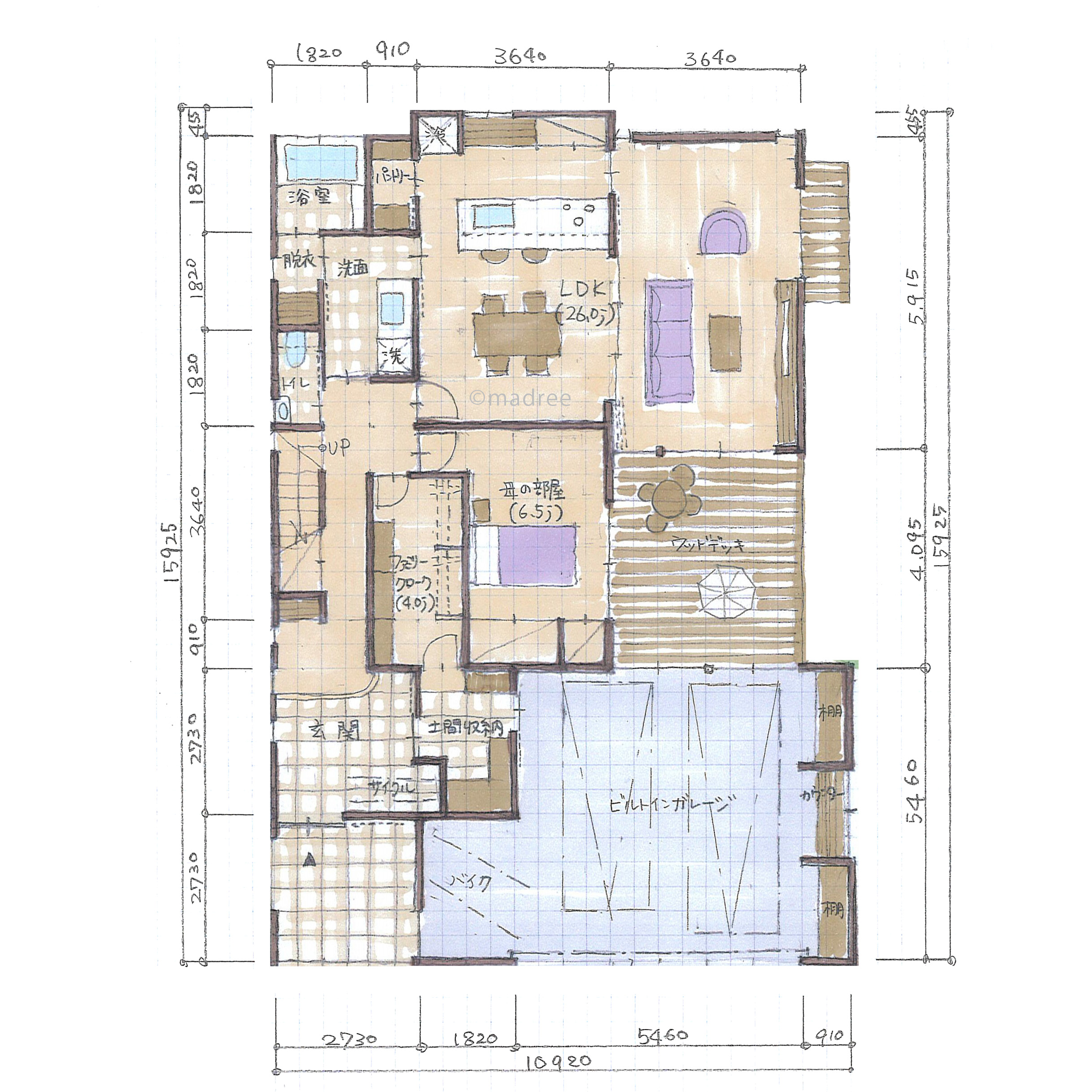
[76坪 6LDK] 目的に合わせて別階フロアで過ごせる、ビルトインガレージのある3階建ての家の間取り
全国の建築家から間取りが集まるmadree(マドリー)で集まった76坪、6LDKの間取りです。外とつながるLDKやアウトドアリビングが特徴の注文住宅の間取りです。
目的に合わせて別階フロアで過ごせる、ビルトインガレージのある3階建ての家はこのような方におすすめです
・40代自営業夫婦、子ども3人(長男15、長女13、次男11)、室内犬2匹
・趣味:サーフィン、スノーボード、キャンプ、山登り、ゴルフ
・2階のバルコニーを広くして、ホームパーティーができるようにしたい。
・玄関に犬用ゲージを置いても窮屈にならないようにしたい。
目的に合わせて別階フロアで過ごせる、ビルトインガレージのある3階建ての家の間取りアイデア
- 屋外で非日常感楽しむ
- ペットと快適に暮らす
- 趣味に夢中になれる部屋
- 思い出を飾るギャラリー
- 子どもが自由に遊べるスペース
- ダイニング学習スペース
- 在宅ワークスーペース
- 見守るワークスペース
- プライバシー守る脱衣洗面室
- 身支度に便利な2ボウル洗面台
- 天気も視線も気にせず物干し
- 部屋干しスペースで家事効率UP
- 物をLDKに持ち込まない動線
- 片付けしながらの帰宅後動線
- バルコニーで楽々布団干し
- 景観を損ねない部屋干しスペース
- 洗濯仕事が一箇所で完結
- 2階にまとめた家事動線
- 2階にまとめた水廻り動線
- 風が抜ける窓の配置
- 家中を心地よく風が抜ける
- 大きな吹抜で採光確保
- 天窓/高窓から自然の光取り込む
- 吹抜で家族が繋がる
- ウォークスルークローゼット
- 壁面収納で収納量確保
- 隠せるパントリー
- 土間の自転車/バイク置き場
- 子どものプライベート守る個室の配置
- ウッドデッキを家事用と家族用に分ける
全国対応になりました
建築家・デザイナー
からのコメント
【全体のコンセプト】
・趣味を大切にする家。
【こだわりのポイント】
■外構
・アウトドア関連物品の水洗いなどができるように、趣味部屋に隣接してメンテナンス用スペースを設けました。
・2階北側は坪庭代わりのテラスで、緑のスペースと物干しスペースを確保しています。
■1階
・掃除のしやすさを考慮し、土間とフローリングの床を別素材にしてゾーンを明確にしました。
・各室の関連性を踏まえ、回遊性のある動線計画としています。
■2階
・居間・食堂・台所は、テラスと一体的に利用しやすい配置です。
・北側に集約した水廻りは、家事を考慮した動線計画です。
・ランドリーやFCLは、上部にハンガーパイプ、下部に収納を置く事のできる設えとしています。
■3階
・生活音が伝わりにくいよう、主寝室と子ども室の間に収納を設けています。
・WCや階下の水廻りにもアクセスしやすい配置で計画しました。
76坪 6LDK関連の間取り
マドリー開発の『住宅営業支援ツール』
madreeデータバンク
マドリーの人気間取り4,800プランを接客・提案に活用できる営業支援ツール
- 競合他社と差がつく、スピード提案
- トレンド間取りで、集客・受注数UP
- 建築家のアイデアを参考に、質の高い提案ができる









