[37坪 3LDK] 充実の収納量で常にスッキリ、キッチン経由で家事に繋がりを持つ家の間取り
全国の建築家から間取りが集まるmadree(マドリー)で集まった37坪、3LDKの間取りです。リビング吹抜やコンパクトLDKが特徴の注文住宅の間取りです。
充実の収納量で常にスッキリ、キッチン経由で家事に繋がりを持つ家はこのような方におすすめです
・40代共働き夫婦、2人兄弟(15歳、13歳)
・趣味:映画鑑賞、靴やDVD収集、音楽鑑賞、ダンス、アクセサリーや雑貨作り
・リビングはテレビも収納できるくらいスッキリさせたい。
・靴が多いので玄関に家族だけの動線と収納を設けたい。
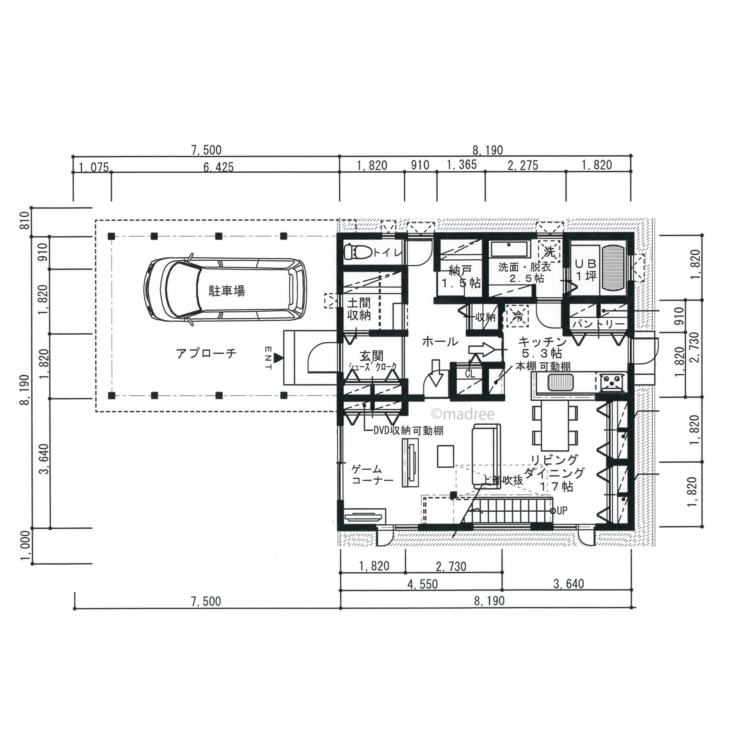
充実の収納量で常にスッキリ、キッチン経由で家事に繋がりを持つ家の間取りアイデア
全国対応になりました
建築家・デザイナー
からのコメント
【全体のコンセプト】
・収納力のある家。
【こだわりのポイント】
■1階
・キッチンからLDと洗面脱衣室へ行き来しやすくなっています。
・玄関前に納戸があるので、LDKに入らずも荷物が整います。
・LDKに天井まで使える収納を設けました。
・リビングをテレビで空間分けして、映画やゲームを楽しむスペースを設けました。
■2階
・主寝室、洋室2部屋、書斎を設けました。
・バルコニーは、階段上の北西側に配置しています。
37坪 3LDK関連の間取り
マドリー開発の『住宅営業支援ツール』
madreeデータバンク
マドリーの人気間取り4,800プランを接客・提案に活用できる営業支援ツール
- 競合他社と差がつく、スピード提案
- トレンド間取りで、集客・受注数UP
- 建築家のアイデアを参考に、質の高い提案ができる









