[35坪 4LDK] 庭2つより自然の景色取り入れる、のびやかな空間ながらもミニマル家事の家の間取り
全国の建築家から間取りが集まるmadree(マドリー)で集まった35坪、4LDKの間取りです。外とつながるLDKやアウトドアリビングが特徴の注文住宅の間取りです。
庭2つより自然の景色取り入れる、のびやかな空間ながらもミニマル家事の家はこのような方におすすめです
・30代共働き夫婦、息子1歳/あと1人子ども希望
・趣味:音楽、ライブ、読書
・自然を感じながら子育てしたいので、植栽豊かな家にしたい。
・キッチン中心に家族を見渡せるよう、家事動線をぎゅっとまとめたい。
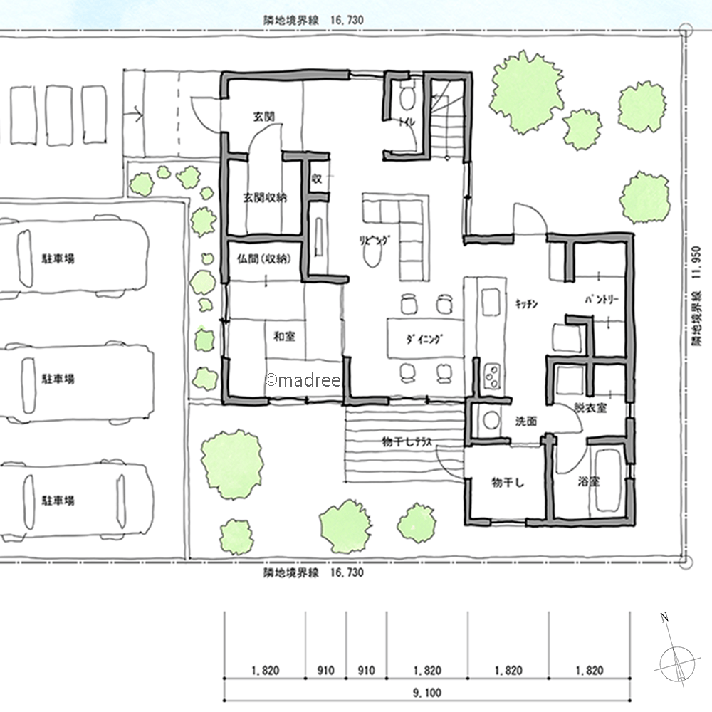
庭2つより自然の景色取り入れる、のびやかな空間ながらもミニマル家事の家の間取りアイデア
全国対応になりました
| 広さ | |
|---|---|
| 階数 | |
| 土地特徴 | |
| 部屋数 | |
| 家族人数 | |
| 特徴 | |
| 担当建築家・デザイナー |
建築家・デザイナー
からのコメント
【全体のコンセプト】
・要求面積から考えて、敷地に余裕があることが分かりました。家の中や外にたくさんの風景を作りたいので、庭をできるだけ多く作りたいと考えました。
・コスト面を考え、ある程度整形で、庭をたくさん作るには、二つの長方形をずらした平面がいいのではないかと思いました。 北東の庭はバーベキュー用、南西の庭は物干し用の庭です。
【こだわったポイント】
■1階
・リビング・ダイニング・和室・キッチンは、無駄の無いように配置し、コンパクトにまとめました。
・一番こだわったのが、奥様の動線です。脱衣室で洗濯して、物干し場で乾かし、パントリーで食材を取り出し、キッチンで料理する。この動線が短くなるように工夫して配置しました。
■2階
・寝室と子ども室を必要最低限の大きさの部屋にまとめ、その間にファミリークローゼット、トイレ、納戸を配置しました。
35坪 4LDK関連の間取り
マドリー開発の『住宅営業支援ツール』
madreeデータバンク
マドリーの人気間取り4,800プランを接客・提案に活用できる営業支援ツール
- 競合他社と差がつく、スピード提案
- トレンド間取りで、集客・受注数UP
- 建築家のアイデアを参考に、質の高い提案ができる









