[38坪 3LDK] 少ない廊下で空間を有効活用、階段中心の回遊動線で家事がコンパクトに繋がる家の間取り
全国の建築家から間取りが集まるmadree(マドリー)で集まった38坪、3LDKの間取りです。外とつながるLDKや広く感じるLDKが特徴の注文住宅の間取りです。
少ない廊下で空間を有効活用、階段中心の回遊動線で家事がコンパクトに繋がる家はこのような方におすすめです
・共働き夫婦、子ども3人(長男9歳、次男7歳、長女1歳)、猫1匹
・趣味:アウトドア、庭いじり、バーベキュー、ゲーム
・猫がストレスの溜まらないよう、外と中を自由に行き来できるようにしてあげたい。
・廊下を極力なくして、動線よく家中を動けるようにしたい。
少ない廊下で空間を有効活用、階段中心の回遊動線で家事がコンパクトに繋がる家の間取りアイデア
- 屋外で非日常感楽しむ
 - ペットと快適に暮らす
 - 子どもが自由に遊べるスペース
 - ダイニング学習スペース
 - 在宅ワークスーペース
 - 見守るワークスペース
 - 安心して遊べる庭
 - プライバシー守る脱衣洗面室
 - 天気も視線も気にせず物干し
 - バルコニーで楽々布団干し
 - シンプルな家事動線
 - キッチン近くの水廻り動線
 - 風が抜ける窓の配置
 - 家中を心地よく風が抜ける
 - 天窓/高窓から自然の光取り込む
 - 壁面収納で収納量確保
 - 隠せるパントリー
 - 庭の緑に癒されるLDK
 - 開口窓で開放的なリビング
 - 来客対応しやすい客間配置
 - 視線遮る玄関アプローチ
 - 来客が気軽に宿泊できる
 - 子どものプライベート守る個室の配置
 - 階段周囲の回遊動線
 - 洗濯仕事が一箇所で完結
 
全国対応になりました
建築家・デザイナー
からのコメント
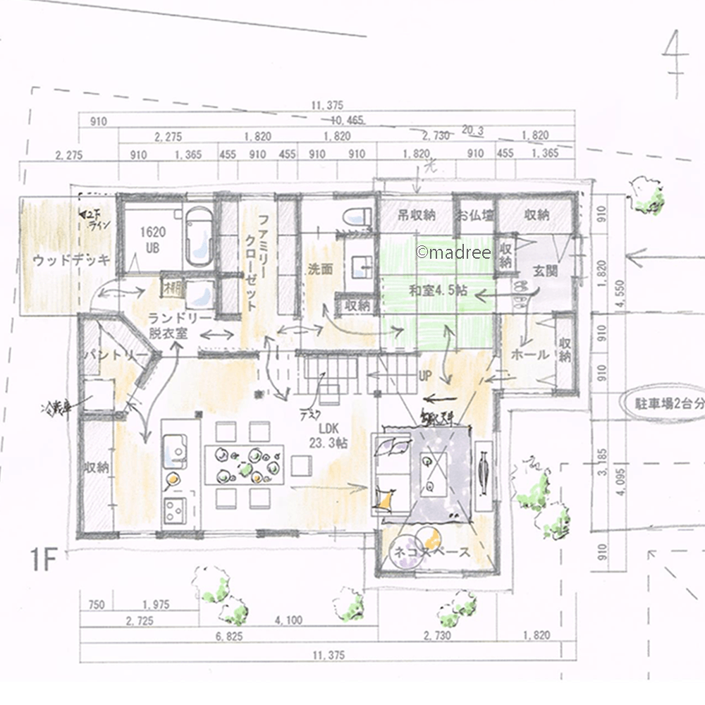
                【全体にコンセプト】
・広々リビングで、家族5人がのびのび生活できる家。
【こだわりのポイント】
■1階
・玄関から、すぐに和室に入れるよう配置しています。
・吊収納の下に窓を設けています。
・和室から、トイレへ行きやすい位置にしています。
・リビングは勾配天井とし、東側と南側からの光を取り込む計画としました。
・南の一番温かそうな位置に、猫スペース設けています。
・帰宅後は、リビング→FCL・着替え→ランドリーと動線がスムーズです。
・洗面やトイレも隣接しているで、手洗いもしやすくなっています。
・家事動線として、キッチン→パントリー→ランドリーを近くに配置しました。
・ランドリーから直接ウッドデッキへ出られます。
・東側道路からの目線に配慮し、洗濯干しスペースは北の奥に配置しています。
・雨が心配な時でも、2階の一部が屋根代わりになるので安心です。
・洗濯後はすぐFCLに収納できます。
・リビングから見える位置に階段を配置しました。
・階段下のスペースは、仕事や勉強のワークスペースとしています。
■2階
・シンプルにまとめて配置しています。
・バルコニーは南側で日当たりが良く、東側の道路からは見えにくい位置に配置しました。
38坪 3LDK関連の間取り
マドリー開発の『住宅営業支援ツール』
          madreeデータバンク
            
マドリーの人気間取り4,800プランを接客・提案に活用できる営業支援ツール
- 競合他社と差がつく、スピード提案
 - トレンド間取りで、集客・受注数UP
 - 建築家のアイデアを参考に、質の高い提案ができる
 

                                                      
                                                  







