[42坪 3LDK] ダウンフロアのキッチンとリビングで、空間を緩やかにゾーニングした家の間取り
全国の建築家から間取りが集まるmadree(マドリー)で集まった42坪、3LDKの間取りです。オープンキッチンやアイランドキッチンが特徴の注文住宅の間取りです。
ダウンフロアのキッチンとリビングで、空間を緩やかにゾーニングした家はこのような方におすすめです
・家族構成:20代共働き夫婦、長男0歳
・趣味:BBQ
ダウンフロアのキッチンとリビングで、空間を緩やかにゾーニングした家の間取りアイデア
全国対応になりました
| 階数 | |
|---|---|
| 部屋数 | |
| 家族人数 | |
| 土地特徴 | |
| 特徴 | |
| 広さ | |
| 担当建築家・デザイナー |
建築家・デザイナー
からのコメント
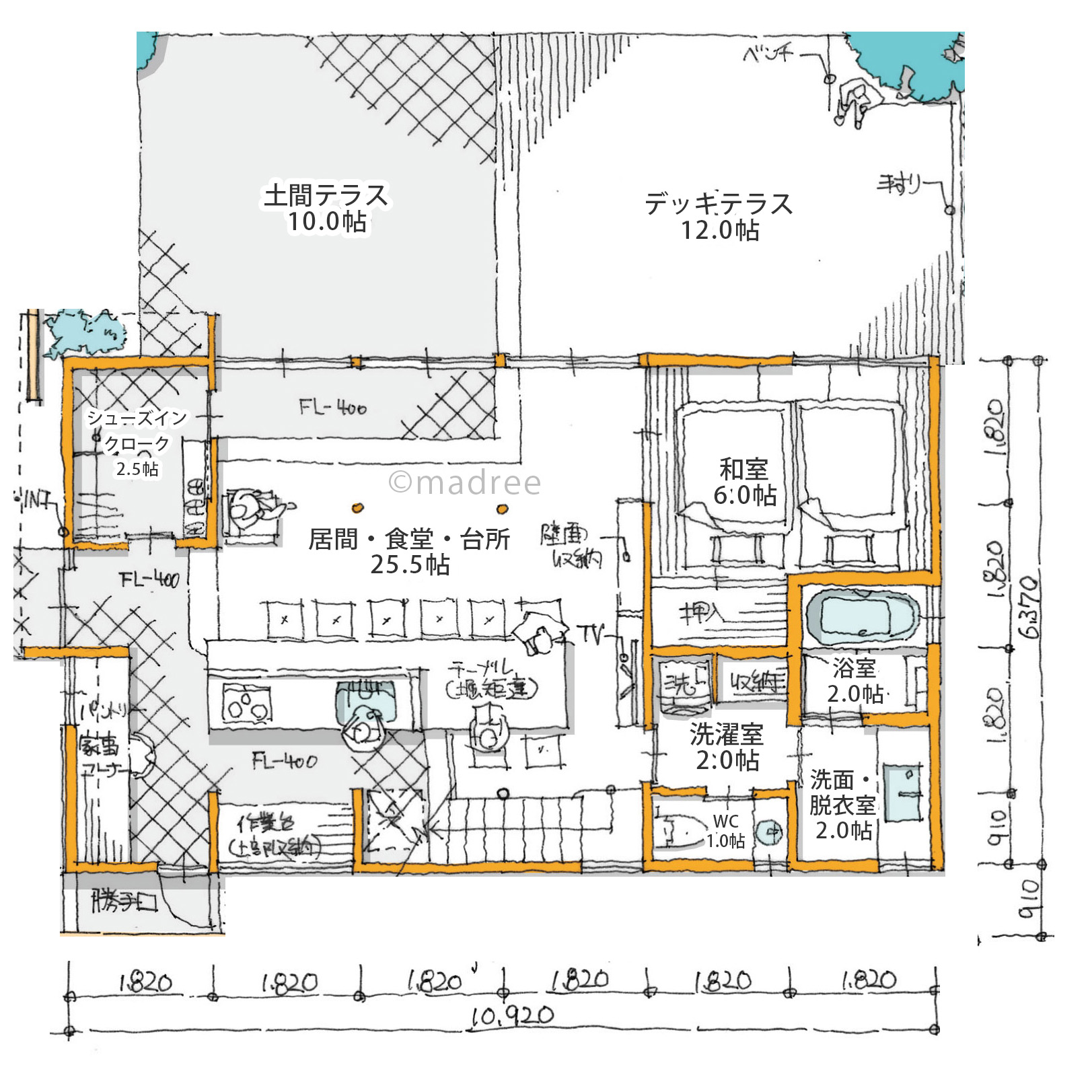
【全体のコンセプト】
・どこでも明るい、庭も広間の家
・南面からの日差しを吹き抜け越しに1Fまで落とすして部屋中どこでも明るくしながら、庭も部屋の延長として活用できる家づくり。
【こだわりのポイント】
■1階
・外構
西側道路面に、来客用含めて3台の駐車スペースを確保
北側のテラスと道路の間に、植え込みと塀を設ける事で、街並みに鮮やかさを持たせながらも子供も安全に遊べる庭に。
友人を招いたバーベキューにも対応できる広々とした庭としても活用できる。
玄関前には小庇をつけることで、雨天の出入りでも傘を出し入れする余裕を持たせている。
・玄関
玄関から台所、シューズインクロークとテラスへ続く土間は水仕事や外の汚れに対して強い仕上げ。
玄関脇のクロークには外套や家族の靴だけでなく、庭仕事や車の清掃用具なども収納可能な広さ。
・パントリー、家事コーナー
台所脇の家事コーナーは、奥さんの帳簿つけを行いながら窓から外の様子も確認できるミニコーナー。
可動棚を用いる事で、食材置き場としてのパントリー機能も果たす。
勝手口は台所側にあるので、ゴミ捨てや食材の持ち込み動線をコンパクトに。
・LDK
台所は居間より床が低いので、リビングでくつろぐ家族と目線の差が少ない。
北面には庭の借景を、東面には家族と共にTVを眺められる対面式の台所。
ダイニングテーブルは掘り炬燵形式かつ畳床なので、そのまま寝転びくつろぐこともできる。
階段と吹き抜け越しに2階から日差しが降りてくるので1Fのなかではもっとも暖かく、明るい場所である。
テラスへ続く土間はサンルームとしても活躍。
・和室
来客時の就寝用としても十分な広さをもち、庭からもアクセスがしやすい位置取りである。
・水周り
洗面所の前に洗濯室を設ける事で、家族が洗面所や浴室を使っていても、洗濯を行うことができる。
浴室は1坪タイプを採用。
■2階
・サンルーム
南に面した高窓から日差しを取り入れることができるため、隣家の形状に関わらず暖かく明るい部屋となっている。
また南面の高窓は熱された空気の抜け道にもなるため、風通しのよい家となる。
・予備室
子供が小さい時は第二のリビングとして活用し、個室が必要になれば8畳二間の子供室になれる。
・寝室
奥さんのお化粧や、家族と離れて静かに仕事ができるワークデスクを北面に設置。
42坪 3LDK関連の間取り
マドリー開発の『住宅営業支援ツール』
madreeデータバンク
マドリーの人気間取り4,800プランを接客・提案に活用できる営業支援ツール
- 競合他社と差がつく、スピード提案
- トレンド間取りで、集客・受注数UP
- 建築家のアイデアを参考に、質の高い提案ができる









