[39坪~42坪 3LDK] 廊下の代わりにウォークスルーのファミクロ!収納充実で家中スッキリ間取り以上に広く感じる家の間取り
全国の建築家から間取りが集まるmadree(マドリー)で集まった39坪~42坪、3LDKの間取りです。オープンキッチンやペニンシュラキッチンが特徴の注文住宅の間取りです。
廊下の代わりにウォークスルーのファミクロ!収納充実で家中スッキリ間取り以上に広く感じる家はこのような方におすすめです
家族構成:夫40代会社員、妻30代会社員、子供2人
趣味:趣味があまりないので、家でゆっくり過ごすのが好きです。
廊下の代わりにウォークスルーのファミクロ!収納充実で家中スッキリ間取り以上に広く感じる家の間取りアイデア
全国対応になりました
| 階数 | |
|---|---|
| 部屋数 | |
| 家族人数 | |
| 土地特徴 | |
| 特徴 | |
| 広さ | |
| 担当建築家・デザイナー |
建築家・デザイナー
からのコメント
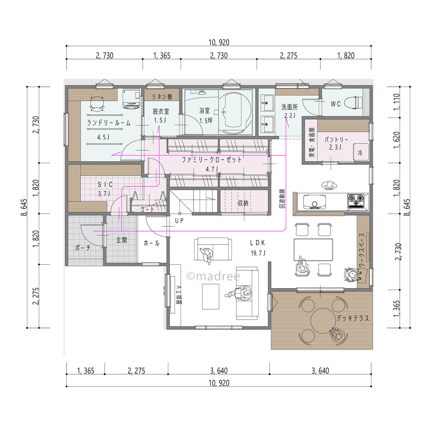
【全体のコンセプト】
・収納を充実させることで余分な家具など置かずにシンプルにスッキリと暮らす「間取り以上に広く感じる家」をイメージしてプランしました。
【こだわりのポイント】
■1階
・ご主人様がお好みの間取りを参考に、シューズクロークからウォークスルーのファミリークローゼット→洗面所への帰宅動線を大切にしています。
・ファミリークローゼットからは4.5畳のランドリールームへも繋がり、脱衣室→1.5坪の大きな浴室へとアクセスできます。
・1階全体が流れるような回遊動線になっているので、行き止まりがなく生活動線がスムーズになります。
・天井高を高くしたいとのことでしたので、階段は一般的な住宅より2段多くしています。
・最初の回り階段を3段にして更にもう一段増やすこともできます。
・冷蔵庫や家電などはパントリー内に収納して、お料理の時だけ扉を開けて使用するプランにしました。
・1階トイレは横幅を少し広めにしてゆとりを持たせています。
■2階
・2階バルコニーは廊下から出入りできるようにしました。
・暗くなりがちな廊下が明るくなり、各室からのお布団干しにも便利です。
・子供部屋は南向きで、各個室すべて角部屋になっているので、風が通り抜ける気持ち良い生活環境になっています。
39坪~42坪 3LDK関連の間取り
マドリー開発の『住宅営業支援ツール』
madreeデータバンク
マドリーの人気間取り4,800プランを接客・提案に活用できる営業支援ツール
- 競合他社と差がつく、スピード提案
- トレンド間取りで、集客・受注数UP
- 建築家のアイデアを参考に、質の高い提案ができる









