[33坪~36坪 4LDK] 仕事も暮らしも快適に過ごせる屋上のある3階建ての間取りの間取り
全国の建築家から間取りが集まるmadree(マドリー)で集まった33坪~36坪、4LDKの間取りです。オープンキッチンや壁付けキッチンが特徴の注文住宅の間取りです。
仕事も暮らしも快適に過ごせる屋上のある3階建ての間取りはこのような方におすすめです
仕事も暮らしも快適に過ごせる屋上のある3階建ての間取りの間取りアイデア
全国対応になりました
| 階数 | |
|---|---|
| 部屋数 | |
| 家族人数 | |
| 土地特徴 | |
| 特徴 | |
| 広さ | |
| 担当建築家・デザイナー |
建築家・デザイナー
からのコメント
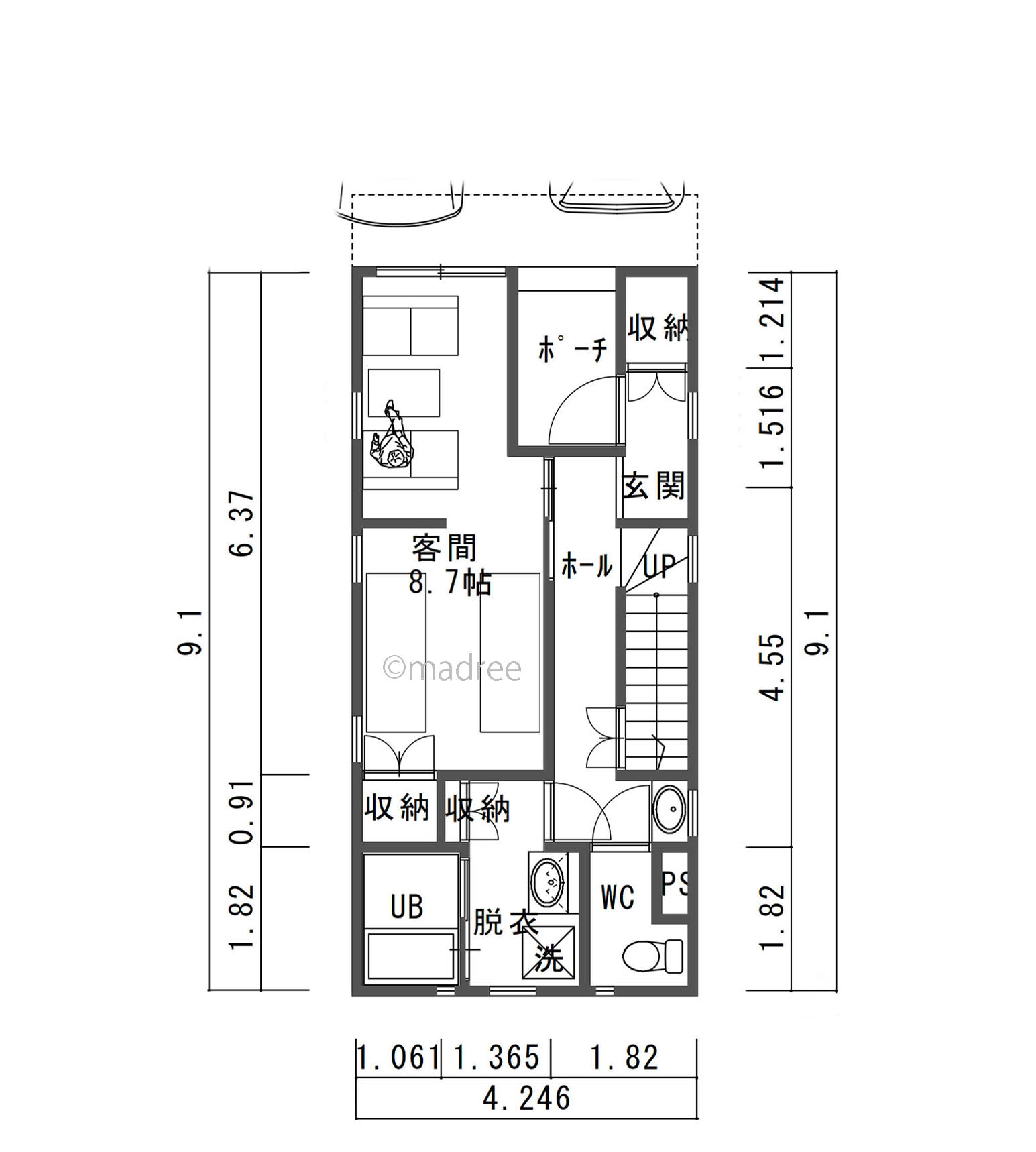
【全体のコンセプト】
・北側道路沿いに、駐車スペースを2台設けました。
・2台の駐車スペースの間を通り、玄関に入るアプローチとなります。
・建物は、南側に寄せて配置しました。
・1階は、客間兼奥様の仕事部屋と水回りを配置しました。
・2階は、LDKとご主人のワークスペースを設けました。
・3階は、寝室と子供部屋を設け、屋上にでれるように階段室を設置しました。
・お庭スペースが取れなかったので、屋上利用をご提案します。
33坪~36坪 4LDK関連の間取り
マドリー開発の『住宅営業支援ツール』
madreeデータバンク
マドリーの人気間取り4,800プランを接客・提案に活用できる営業支援ツール
- 競合他社と差がつく、スピード提案
- トレンド間取りで、集客・受注数UP
- 建築家のアイデアを参考に、質の高い提案ができる








