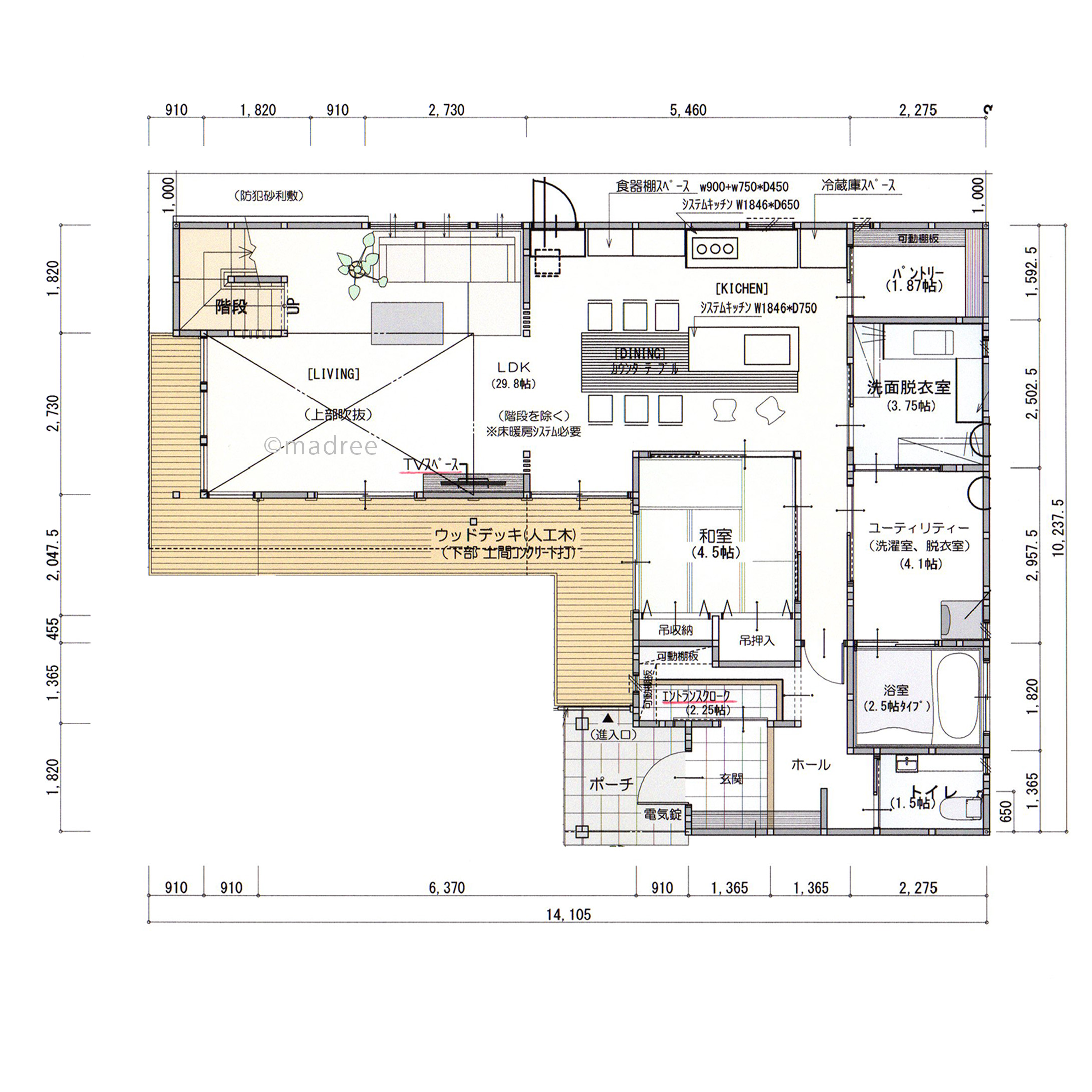
[54坪 3LDK] 風や光をたっぷり取り込むLDKと、実用的なBBQスペースのある家の間取り
全国の建築家から間取りが集まるmadree(マドリー)で集まった54坪、3LDKの間取りです。オープンキッチンやⅡ型キッチンが特徴の注文住宅の間取りです。
風や光をたっぷり取り込むLDKと、実用的なBBQスペースのある家はこのような方におすすめです
・家族構成:20代共働き夫婦、息子0歳/あと2人子ども予定
・趣味:BBQ
風や光をたっぷり取り込むLDKと、実用的なBBQスペースのある家の間取りアイデア
全国対応になりました
| 階数 | |
|---|---|
| 部屋数 | |
| 家族人数 | |
| 土地特徴 | |
| 特徴 | |
| 広さ | |
| 担当建築家・デザイナー |
建築家・デザイナー
からのコメント
【全体のコンセプト】
採光と換気、風・空気の流れに気を配り、御家族の成長に合わせての空間スタイルの変化への対応を可能にする為、基本空間対応の柔軟性、空間の暖かさや日当たりを重視し、御要望のサンルームの提案を、あえて省いています。
(室内に独立空間を固定設置する事で、日当たり、換気機能への柔軟性を邪魔するものをつくってしまう恐れがある。)
【こだわりのポイント】
■1階
・ユーティリティー
室内にも物干しスペースを設置
・駐車スペース
3台対応(車種による:普通2台+軽1台)
■2階
・子供室
将来性を考慮
3室対応
・2階階段踊り場スペース
子供スペースを設け、溜まり場対応
54坪 3LDK関連の間取り
マドリー開発の『住宅営業支援ツール』
madreeデータバンク
マドリーの人気間取り4,800プランを接客・提案に活用できる営業支援ツール
- 競合他社と差がつく、スピード提案
- トレンド間取りで、集客・受注数UP
- 建築家のアイデアを参考に、質の高い提案ができる









